知末
知末
创作上传
VIP
收藏下载
登录 | 注册有礼

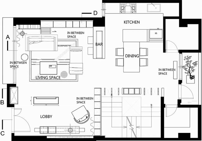
可随意变化的”弹性“居家空间

2017/07/21 22:21:00
查看完整案例
微信扫一扫
收藏
下载
可随意变化的”弹性“居家空间-0
可随意变化的”弹性“居家空间-1
可随意变化的”弹性“居家空间-2
可随意变化的”弹性“居家空间-3
可随意变化的”弹性“居家空间-4
可随意变化的”弹性“居家空间-5
可随意变化的”弹性“居家空间-6
可随意变化的”弹性“居家空间-7
可随意变化的”弹性“居家空间-8
可随意变化的”弹性“居家空间-9
可随意变化的”弹性“居家空间-10
南京喵熊网络科技有限公司 苏ICP备18050492号-4知末 © 2018—2020 . All photos and trademark graphics are copyrighted by their owners.增值电信业务经营许可证(ICP)苏B2-20201444苏公网安备 32011302321234号
客服
消息
收藏
下载
最近