查看完整案例

收藏

下载
科普兰协会建筑师最新的社区项目是为三国王联合足球俱乐部。这座位于纽西兰奥克兰公园(Auckland NZ)凸起平台上的单层展馆,将成为新西兰最大的足球俱乐部(约有2500名成员)的新总部,并将为其他社区团体和活动提供设施。
建筑师( architect的名词复数 ):
科普兰协会建筑师
位置,场所:
新西兰奥克兰
项目组:
Barry Copeland,Franklin Mwanza,Marco Duthie
900平方米
项目年
2016 - 2017
科普兰协会建筑师
建筑与工地的关系:
基思·海伊公园被奥克兰罗斯基尔山地区的住宅开发所包围。这座新建筑位于公园北侧所有足球场的中心位置,毗邻俱乐部新的一号球场。这座建筑的战略位置是连接到拟议中的公园通道系统,并允许从集群扫帚和观景甲板上的全方位景观,但不能阻挡整个公园的重要景观。
设计原理:
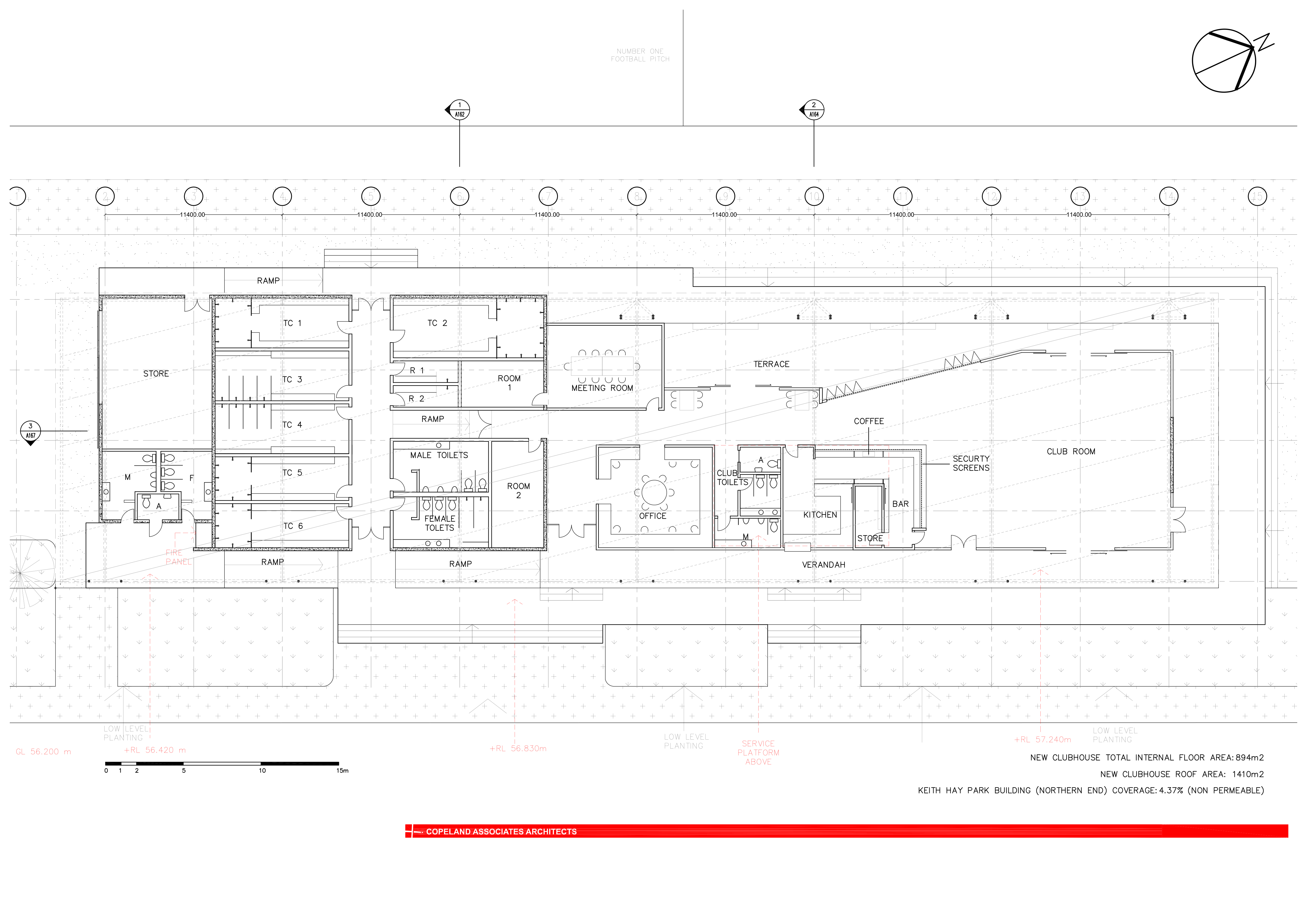
这座建筑被认为是一个单层的亭子,轻轻地坐落在一个精致的混凝土桥墩上。
展馆表现为一个浮雕屋顶,坐落在一系列从台阶上升起的11个三角钢支架上。封闭的建筑空间被安置在屋檐下和这些支撑的后面,从而在建筑物的各个侧面形成了几个宽敞的阳台,台阶式的观景台从下面出现。
大楼的桥墩有几个功能:
作为一种有效的地基支撑方式,它是作为蜂窝式钢筋混凝土筏板基础而建造的。
它延伸到建筑物的内部区域之外,以提供大量的凸起的露台,观众可以看到许多足球场,它将建筑物的主要空间提高到高于泛滥平原。
这座建筑主要是由重量轻的预制组件组成的。这座通风的、类似帐篷的建筑由更衣室的预制混凝土外壳固定在南端,北端则由预制混凝土壁炉板固定,外面是三王联合足球俱乐部的会徽。
屋顶的形状最初是由一片叶子漂浮在公园上空并休息的想法所启发的。从这一想法出发,这种形式不仅是根据经济和职能要求而演变的,而且也是从反映俱乐部精神和愿望的愿望演变而来的。
Firm Copeland Associates Architects
Type Government + Health › Community Center Hospitality + Sport › Sports Center
STATUS Concept
SIZE 10,000 sqft - 25,000 sqft
BUDGET $1M - 5M
keywords:architecture, architecture news, interiors, interior design, portfolio, spec, brands, marketplace, products TKU FOOTBALL CLUB
关键词:建筑、建筑、新闻、室内、室内设计、组合、规格、品牌、市场、产品TKU足球俱乐部
客服
消息
收藏
下载
最近















