查看完整案例

收藏

下载
© José Hevia
(JoséHevia)
架构师提供的文本描述。这项建议是为了进行一项小规模的预算干预,尽量减少拆迁,以充分利用现有的特点,目的是将第二套房屋与季节性租金结合起来。然而,家庭目前的平面图已经过时,不能满足新的功能要求和需求。
Text description provided by the architects. The proposal is for a small budget intervention in which demolition is minimized to make the most of existing features, aimed at combining a second home with seasonal rentals. However, the home's current floor plan is outdated and does not meet the new functional requirements and needs.
© José Hevia
(JoséHevia)
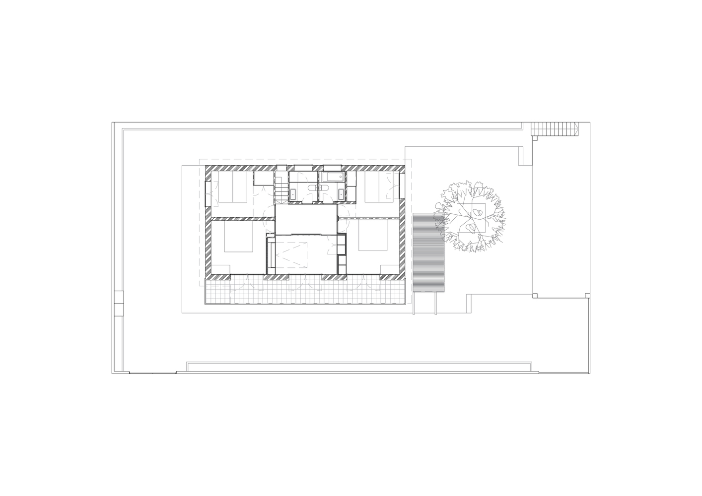
Ground floor plan
© José Hevia
(JoséHevia)
只要做一些改变,这个想法就是改变房子的生活方式。在底层,厨房很小,与其他空间没有什么关系;虽然新的厨房项目保持目前的位置,以利用现有的管道和排水系统,但它现在通过隔开这两个空间的墙的开口向起居室开放,这是一个承重墙,因此需要加固。在这种加固下,在客厅和厨房之间增加了一个新的弧形隔板,形成了一个用餐区。但这个隔板没有达到天花板,因为它只有180厘米高,它的目的是创造一个独特的区域,但不分裂空间,增加了内部循环的复杂性和空间丰富性。底层的其他内部干预措施侧重于创造一个没有物理分离的空间连续体,但使用具体要素根据其功能界定不同的区域。
With a few changes, the idea is to change the way the house is lived in. On the ground floor, the kitchen is small and has little relation to the other spaces; although the new kitchen project maintains its current location to take advantage of the existing plumbing and drain systems, it now opens up to the living room through an opening in the wall that separates these two spaces, which is a load-bearing wall and thus requires reinforcing. Under this reinforcement, a new curved partition is added between the living room and the kitchen, creating a dining area. But this partition does not reach the ceiling as it is only 180 cm tall, and its purpose is to create a distinct area but without splitting the space, adding interior circulation complexity and spatial richness. The rest of the interior interventions on the ground floor are focused on creating a space continuum without physical separation but using specific elements to define the different areas based on their function.
Axonometry of gorund floor plan
猩猩平面图的轴测
在一楼,也是为了保护大部分元素和尽量减少拆迁,五卧室的布局保持不变,但中央卧室的特征完全改变了:它的不透明的门道变得透明,可以通过两个大的滑动门把这个房间完全打开到走廊。这样,这个房间的功能就变得灵活了,因为它可以作为卧室(通过不透明的窗帘)、游戏或阅览室,或者作为走廊延伸到室外露台而与其他房间分开。隐蔽的内置壁橱隐藏折叠床和存储表面,使这些房间有不同的用途。更换地板,以及新的墙面衬里,有助于加强这一新战略。对于底层,一个新的黑色陶瓷地板的人字形图案统一了所有的领域,并再次看到在公共区域的第一层。
On the first floor, again with the aim of preserving most elements and minimizing demolition, the five-bedroom layout is kept, but the features of the central bedroom are completely changed: its opaque doorway becomes transparent, with the possibility of opening this room completely to the hallway through two large sliding doors. This way, this room's function becomes flexible, as it can be separated from the rest as a bedroom (by means of an opaque curtain), as a game or reading room, or as the extension of the hallway into the outdoor terrace. Concealed built-in closets hide folding beds and storage surfaces, enabling different uses for these rooms. Replacing the floors, as well as the new wall lining, helps reinforce this new strategy. For the ground floor, a new black ceramic floor in a herringbone pattern unifying all areas and seen again in the common areas on the first floor is selected.
© José Hevia
(JoséHevia)
对底层(白天生活区)和第一层(夜间生活区)的干预可以理解为一种辩证的游戏:在底层,空间是物理连接的,但在视觉上和功能上是分开的,而在第一层,主房间在视觉上是相连的,但在物理上是分开的。橡木单板加强这一作用,衬里分离元素在底层(弯曲隔板),统一元素在第一层(走廊和中央房间连续体)。
The intervention on the ground floor (daytime living areas) and the first floor (nighttime living areas) can be read as a dialectical play: on the ground floor, the spaces are physically connected but visually and functionally separated, while on the first floor, the main room is visually connected but physically separated. The oak veneer boards reinforce this play, lining the separating element on the ground floor (the curved partition), and the unifying element on the first floor (the hallway and central room continuum).
© José Hevia
(JoséHevia)
所有外部木工都已更换,在立面的外面安装固定的窗户,在内部安装可打开的门窗,显示每个开口的外墙厚度。
All external carpentry has been replaced, with fixed windows fitted on the outside of the façade's plane, and openable windows and doors on the inside, showing the thickness of the façade wall in each opening.
© José Hevia
(JoséHevia)
© José Hevia
(JoséHevia)
第二个室外装修阶段,包括一个新的游泳池,一个外高丽,新的人行道和一个额外的卧室,将完成整个项目。
A second outdoor renovation phase, including a new pool, a pergola, new pavement and an extra bedroom, will complete the overall project.
© José Hevia
(JoséHevia)
Architects Raúl Sánchez
Location Castelldefels, Spain
Category Houses Interiors
Area 180.0 m2
Project Year 2017
Photographs José Hevia
Manufacturers Loading...
客服
消息
收藏
下载
最近























