查看完整案例

收藏

下载
© Andreas Rost - CODE
C.Andreas Rost-代码
架构师提供的文本描述。这座农业学校的建筑是由柏林科技大学帕塞尔教授的建筑设计和建筑系代码开发和实现的。在与致力于在拉丁美洲减贫的玻利维亚基督教基金会的国际合作中,守则在两年的过程中开发和实施了新的学校建筑。在帕塞尔教授和他的团队的监督下,40名学生与当地合作伙伴共同设计、规划和实现了该项目。学校大楼是“Sayarinapaj”职业学校的一部分,该学校向来自安第斯农村地区的玻利维亚青年学生提供该领域的专业观点。第一个设计和施工阶段的结果是一座基于模块化概念的建筑,提供六间灵活的教室。它由三大卷组成,每卷包括两间教室和一个额外的空间,用作综合太阳能发电厂的档案、实验室或安装室。一个连续的棚屋盖整个建筑物,包括两个中间的露天空间之间的体积,以确保自然通风。这些“中间空间”允许将两个教室连接到一个更大的多功能房间。建筑以简单而有效的方式应对极端的气候条件。块状砖砌体补偿了每天温度的波动,从而提供了舒适的室内气候。通风屋顶结构防止教室过热。它的定位确保教室充足的日光供应和屋顶的最佳倾斜,以整合太阳系。
Text description provided by the architects. The agricultural school building has been developed and realised by CODE - the department of architectural design and construction of Prof. Pasel at the Technische Universität Berlin. In an international collaboration with the ecumenical foundation Fundación Cristo Vive Bolivia that works on poverty reduction in Latin America, CODE has developed and implemented the new school building in a two year process. Under supervision of Prof. Pasel and his team 40 students have designed, planned and realised the project together with local partners. The school building is part of the vocational school “Sayarinapaj” that offers young Bolivian students coming from rural Andean areas a professional perspective within the field. Result of the first design and construction phase is a building that is based on a modular concept offering six flexible classrooms. It consists of three massive volumes each of them comprising two classrooms and an additional space that serves as an archive, a laboratory or an installation room for the integrated solar plant. One continuous shed roof structure covers the whole building including two intermediate open air spaces between the volumes to ensure natural ventilation. These ‘in between spaces’ allow for the connection of two classrooms into a larger multi-functional room. With simple but effective means the building responds to the extreme climatic conditions. The massive brick masonry compensates the daily fluctuation of temperature, thus allowing for a comfortable indoor climate. The ventilated roof construction prevents the classrooms from overheating. Its orientation ensures adequate supply of daylight in the classrooms and the optimal declination of the roof for the integration of the solar system.
© Andreas Rost - CODE
C.Andreas Rost-代码
Floor Plan
© Andreas Rost - CODE
C.Andreas Rost-代码
为了传达技能,所有玩家都参与了设计和建造过程。
In order to convey skills all players are integrated in the design and building process.
由于该项目是基于一种综合的建筑方法,相关因素包括建筑产品和其创造的多层过程,考虑到技术、社会、文化和学术方面。由来自德国和玻利维亚的专家、学生和工匠/-妇女进行国际和跨学科合作,因此,学术和实践之间、两种文化之间和不同学科之间的知识相互转让是该项目的一个突出特点。由于它是一个设计建设项目,它还允许理论,研究和实践相结合的项目工作。
As the project is based on an integrative approach to architecture the relevant factors include both the architectural product and the multi-layered process of its creation considering technical, social, cultural and academic aspects. Being developed by an international and interdisciplinary collaboration of experts, students and craftsmen/-women from both Germany and Bolivia the mutual transfer of knowledge between academia and practice, between the two cultures and between the different disciplines is consequently one of the superior characteristics of the project. As it is set up as a design-build project it additionally allows for the combination of theory, research and practice in the project work.
室内气候正在通过调节实心砖结构得到改善.
The indoor climate is being enhanced by the temperature-regulating solid brick structure.
© Andreas Rost - CODE
C.Andreas Rost-代码
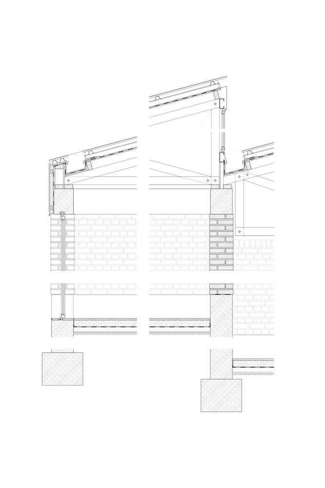
在建筑方面,总体任务是创建一座低成本、节能、对气候敏感和节约资源的建筑,作为一个支持性学习环境,并作为低技术环境、创新和智能低成本建筑方法中可持续建筑发展的案例研究。砖中的特殊施工方法取代了普通的混凝土骨架结构,允许在没有专业企业家的情况下进行建筑过程,既具有成本效益,又具有抗震能力。
In terms of the architecture the overall task was to create a low-cost and energy efficient, climate responsive and resource saving building that would serve as a supportive learning environment and as a case study for sustainable building developments in low-tech environments, innovation and intelligent low-cost construction methods. The Special construction method in brick replaces common concrete skeleton structures and allows for a building process without an professional entrepreneur that is both cost efficient and earthquake proof.
最后但并非最不重要的是,它的设计方式是可以自建,并在“自动建造”的前提下建造,占当地建筑活动的98%。
Last but not least the building was designed in such a way that it could be self-build and constructed under the preconditions of “auto-construction”, which form 98% of the local building activities.
© Andreas Rost - CODE
C.Andreas Rost-代码
知识转移使当地社区和学生获得更多的资格。
Knowledge transfer leads to further qualification of the local community and the students.
该项目的主要社会方面之一是,不仅玻利维亚和德国的学生参与了建筑工作,而且还参与了一个当地的妇女合作社,她们已经成为砖匠。通过这一项目,他们得以扩大自己的技能,并随后将新获得的创新建筑技术知识应用于自己的工作。作为回报,女性将在第二阶段培训下一代学生的技能,这包括为农学校园发展一所寄宿学校。这样,知识转移和服务学习的迭代过程就开始了,这些年将使当地社区和我们的学生都有进一步的资格。
One of the main social aspects of the project is that not only Bolivian and German students were involved into the construction work but also a local cooperative of women working already as bricklayers. With this project they were able to broaden their skills and subsequently apply their newly acquired knowledge of innovative building techniques to their own work. The women will in return train the skills of the next generation of students in the second building phase, that comprise the development of a boarding school for the agronomy campus. By this, an iterative process of knowledge transfer and service learning is commenced that will in the course of years lead to a further qualification of both, the local community and our students.
© Andreas Rost - CODE
C.Andreas Rost-代码
Architects CODE
Location Av. Santa Cruz, km 8, Bella Vista, Quillacollo, Cochabamba, Bolivia
Category Schools
Project Year 2014
Photographs Andreas Rost - CODE
Manufacturers Loading...
客服
消息
收藏
下载
最近





















