查看完整案例

收藏

下载
酒店,房屋,Tambon Nong Nam Daeng,泰国
设计师:Onion
面积:2355 m²
年份:2020
摄影:Wworkspace
负责建筑师:Onion
室内设计:Onion
结构工程师:Post
机械和电气:A&E Developer
承办商:Standard
城市:Tambon Nong Nam Daeng
国家:Thailand
设计师描述 | Designer description:
鲁赫·奇莉·考艾是一家酒店和业主的度假屋。位于考艾国家公园旁边,这里有一个美丽的山的风景。天气很好,有时很冷,这对泰国来说很特别。业主希望逃离城市污染,并在为酒店客人服务的有机水果和蔬菜农场内的健康环境中放松。
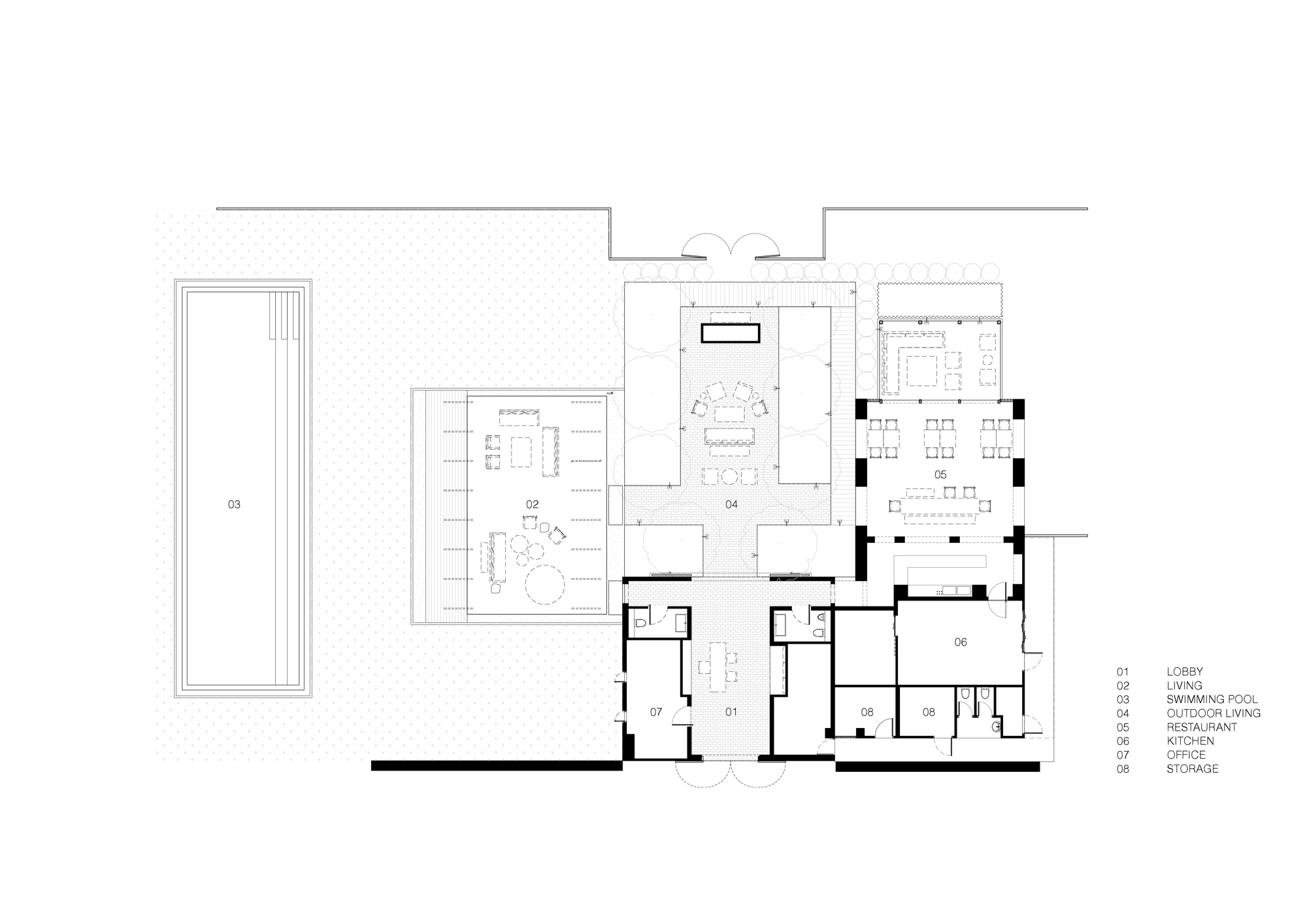
当我们规划鲁赫奇莉的布局时,将自然带入场地是我们的首要任务。该项目有两个区域。第一个区域是公共区域,由大堂、餐厅和生活区三个房间组成。这三栋房子由一个室外座位区连接起来,在主轴上有一个壁炉。我们用坚固的墙壁将入口空间围起来,因为当客人向左转向西时,他们会看到游泳池后面壮丽的山景。游泳池旁边的半室内生活区被设计成一个沙拉,由预制铁结构和藤木制成的骨架框架,带有木瓦屋顶瓦,既能接受风,又能看到项目的第一个迎宾空间。这种意义上的建筑风格与其他实心房屋不同,因为它位于西南风的方向。
第二个区域是私有的。它由11栋客房别墅和业主家庭住宅组成。第二个区域的入口在壁炉后面。公共区域和私人区域之间的过渡空间是隐藏的。每栋别墅都是有机布局。它们似乎是随机的。隐藏的框架是现有的芒果树,它指引着每个空间的方向。他们都面对着山景。它们是为自然通风和空调设计的。七栋客房别墅有一个室外私人游泳池。浴缸空间通过屋顶空间将天空带入室内。屋顶的坡度为31度和48度,适合泰国的降雨。
“农舍”是我们的一般参考。我们喜欢它建筑元素的简洁和亲密的尺度。我们为不同的活动设计独立的区域,专注于必要的功能。业主接受我们的想法。它与他们的“有机农场”相匹配。鳄梨树和柠檬树是新种植的,所以他们不需要从国外进口蔬菜。那些圆形的柠檬和我们农舍的轮廓很协调。我们最初手工绘制农舍,将每个元素简化为纯粹的几何图形,就像一个孩子的画一样,有三角形的房子、圆形的树、小门、栅栏和通向房子的路线。
所有日常生活用品都陈列在我们的客房别墅里。我们正在展示必要的功能。雨伞、帽子、灯,甚至浴缸都是展示的对象。淋浴区在房间中央的位置也是如此。每一件实用的物品都是我们的装饰,所以我们的设计不是装饰性的。我们的意图是使构图看起来随机,即使我们随机的物体被精确地定位。水槽上方的镜子就是一个例子。早上,当我们的客人打开窗帘时,他们会看到自己的倒影和花园的景色。我们展示设计中存在的一切,包括内部和外部空间的材料纹理,如石头、屋顶瓷砖和墙壁纹理。
项目完工照片 | Finished Photos
客服
消息
收藏
下载
最近














































