查看完整案例

收藏

下载
这座小建筑,专为一个希望拥有一个小小的夏季住宅的客户而设计,位于希腊的哈基迪基(Halkidiki)。这是一个维护不佳的家,四周环绕着一大片橄榄树。它对海洋和更远的景色,对著名的修道院阿索斯山。
该项目是高度实验性的,并以创新的方式采用尖端数字CAD/CAM技术。
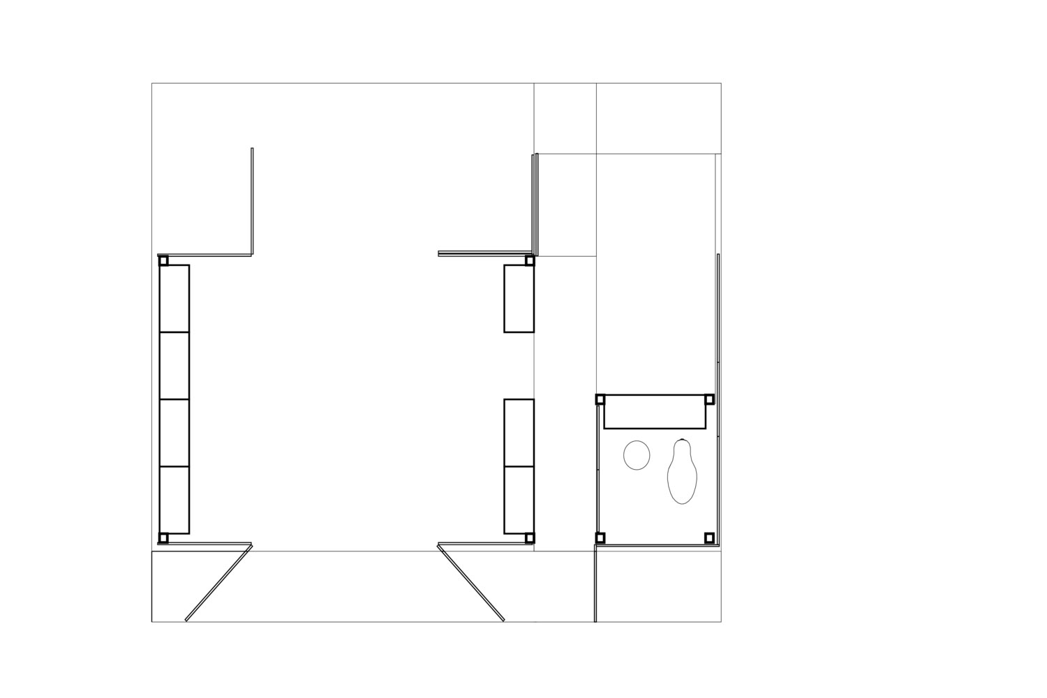
这座建筑长3米乘7米,内部被细分为由走廊连接的小房间。
在它的内部,两张小床形成了休息的区域。在走廊的另一边,一小块架子上的家具充当厨房和炉子,两把椅子和一张小桌子一起充当餐厅,也为我们提供了享受露台的机会。
舱室的外部部分是由金属表面形成的,带有由橄榄树树荫所启发的穿孔的纺织品样图案,这种图案包裹着房子,也适合它,使室内空间具有最大的灵活性。
我们推荐这些项目-由MGXM建筑师设计的豪宅壮观别墅,位于美国西弗吉尼亚山脉的希腊美小屋梅西尼亚。
当太阳在白天移动时,室内空间充满了不断变化的阴影。
无名小卒密闭小屋的廊景
画廊露台区可看到厨房。
在通向卧室的画廊门上观看
在通向卧室的画廊门上观看
在通向卧室的画廊门上观看
在通向卧室的画廊门上观看
穿孔墙的画廊细节视图
穿孔墙的画廊细节视图
穿孔墙的画廊细节视图
穿孔墙的画廊细节视图
画廊中的视图
画廊中的视图
画廊内的小厨房区
有两张小床的画廊卧室
穿孔墙的画廊细节视图
穿孔墙的画廊细节视图
穿孔墙的画廊细节视图
穿孔墙的画廊细节视图
卧室室内画廊的景观
卧室室内画廊的景观
卧室室内画廊的景观
卧室室内画廊的景观
画廊夜景
画廊夜景
画廊中的视图
画廊中的视图
画廊中的视图
keywords:Bedroom Contemporary Interior Design Dining Room Floor Plans Kitchen Landscaping Terrace
关键词:卧室现代室内设计餐厅楼层平面图厨房景观平台
客服
消息
收藏
下载
最近





























