查看完整案例

收藏

下载

翻译
Hello and welcome to Batinova,
A project for the renovation of one of the Ixelles barracks buildings
Before talking about renovation, let's talk about contextualization. Building I occupies a central position within the Ixelles barracks, it has a very strong relationship with the crossing axes and the future new traffic flows. It is on the basis of this very strong relationship that the program will be arranged. Let's talk about it!
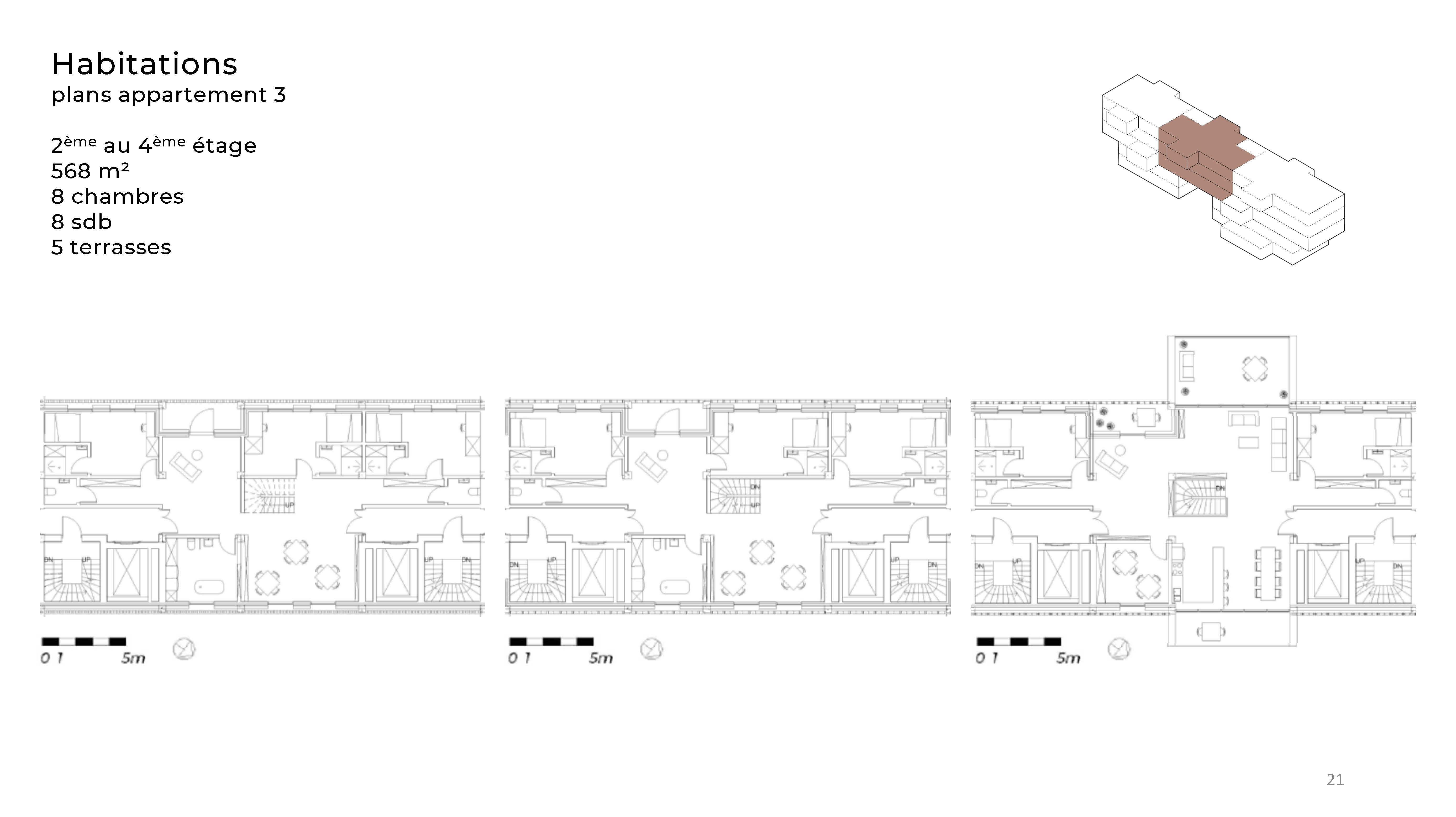
We have been asked to transform the first floor of Building I into a public space, with on the one hand spaces to incorporate the creative associations previously present in the prefabs adjacent to the building, and on the other hand a commercial space. The upper floors will be transformed into housing and student communities.
客服
消息
收藏
下载
最近





























