查看完整案例

收藏

下载
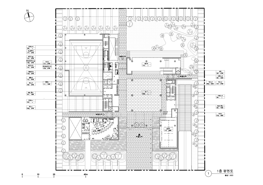
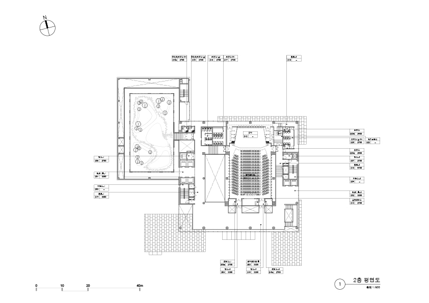
架构师提供的文本描述。大邱银行的项目是设计银行的第二个总部大楼在一个9,638平方米的土地。该遗址位于市中心,曾是代汉纺织和七彩工业的所在地,并已按照分区规划进行了大规模更新。
Text description provided by the architects. Daegu Bank Project is to design the bank’s second head office building in a 9,638m2 lot. Located in the city center, the site used to be the home of Daehan Textile and Cheil Industries and has gone through an extensive renewal in accordance with the district zoning plan.
© Yoon Junhwan
尹俊焕
© Yoon Junhwan
尹俊焕
该银行的金融塔是20世纪70年代和80年代建成时资本积累和先进技术的缩影,而由Junglim Architecture于1978年设计的主要总部被认为是与韩国兴业银行(Industrial Bank Of Korea)主要总部(为韩国现代银行体系结构奠定基础)一起的开创性项目。
The bank’s financial tower epitomized the capital accumulation and advanced technologies when it was built in the 1970s and 1980s, while the main head office which was designed by Junglim Architecture in 1978 is considered a pioneering project together with Industrial Bank of Korea’s main head office that established the foundation of the country’s modern bank architecture.
© Yoon Junhwan
尹俊焕
该项目由一个不寻常的团队设计,该团队由大邱银行第一家总部的最初建筑师和比首席建筑师年轻约50岁的初级设计师组成,试图改写银行体系结构的历史。设计师们旨在传达大邱银行的企业精神和愿景。这座大楼将作为世界银行的新总部而崛起,它代表着当地社区,并促进与之共同的增长,从而为金融建筑的设计提出了一个新的范例。
The project was designed by an unusual team that is composed of the original architect of Daegu Bank’s first head office and junior designers some 50 years younger than the lead architect in an attempt to rewrite the history of bank architecture. The designers intended to convey the corporate spirit and vision of Daegu Bank. The building will rise as the Bank’s new headquarters that represents the local community and promotes shared growth with it, thereby suggesting a new paradigm in the design of financial buildings.
© Yoon Junhwan
尹俊焕
Architects JUNGLIM Architecture
Location Buk-gu, Daegu, South Korea
Category Bank
Lead Architect Lim Jinwoo
Area 37055.0 m2
Project Year 2016
Photographs Yoon Junhwan
Manufacturers Loading...
客服
消息
收藏
下载
最近




























