查看完整案例

收藏

下载
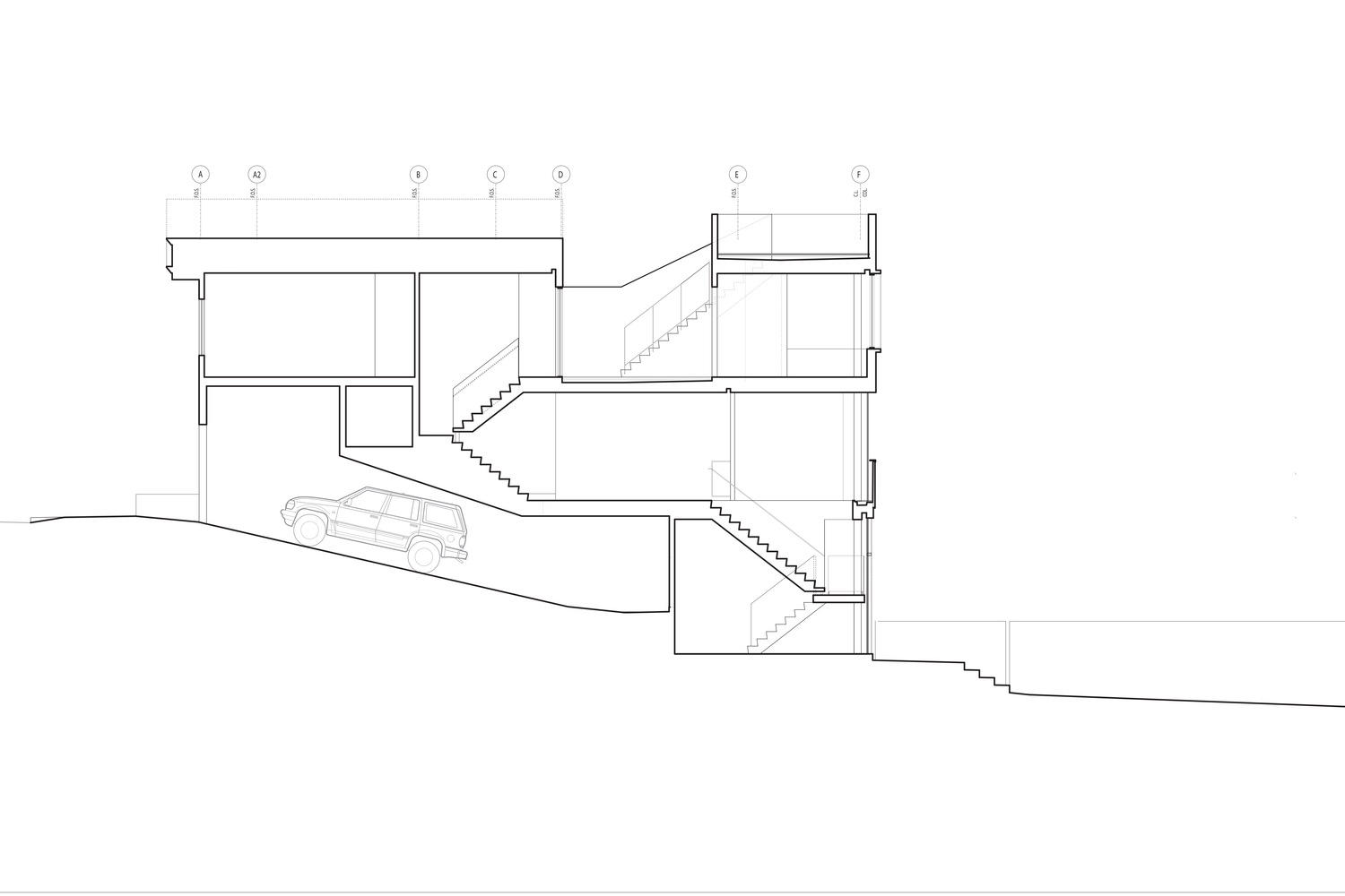
施瓦兹与建筑设计这一层次的城市的家在三藩,加利福尼亚,美国,它的设计是在2016,占地3500平方米的地面。
住宅设计有一个强烈的绿化计划,它反映了阳光加州的文化,一直在寻找户外。
但即使在阴天,我们也能在这个家的内部找到很多可享受的东西。这是一个鲜明的现代风格,充满优雅和温暖,表面用丰富的木材,抛光到一个光泽,复杂的装饰配件。轻,中性色调的家具和厨房柜台,以平衡丰富的木材,创造了一个优雅的组合,增加了室内的别致。
高高的天花板和玻璃墙允许充足的自然光涌入家庭,创造了一个内部不仅优雅和时尚,但也发光和通风。家里的露台再次邀请我们到户外冒险,享受阳光明媚的加州天气。
画廊鸟瞰
我们推荐这些项目-由建筑设计公司设计的家庭住宅和美国旧金山的设计公司-Edmonds Lee建筑设计师在美国加利福尼亚州的旧金山设计了一个现代住宅
房子外部的画廊景观
在画廊,客厅-厨房区域内可看到木制地板。
画廊的景观-现代木屋厨房
画廊的景观-现代木屋厨房
画廊的景观-现代木屋厨房
可在画廊客厅内看到通往露台的景观。
画廊木制楼梯景观
画廊木制楼梯景观
画廊木制楼梯景观
画廊木制楼梯景观
画廊木制楼梯景观
画廊木制楼梯景观
画廊木制楼梯景观
画廊露台的景观
画廊露台的景观
画廊中的视图
可欣赏画廊的木制地板和玻璃栏杆。
可欣赏画廊的木制地板和玻璃栏杆/带玻璃墙和壁炉的卧室
画廊卧室内有玻璃墙和壁炉。
在画廊,浴室,木材的视野
画廊中的视图
在画廊,浴室,木材的视野
画廊夜景的外部景观
画廊夜景的外部景观
画廊夜景的外部景观
画廊中的视图
keywords:Bathroom Bedroom Contemporary Interior Design Decorative Accessory Dining Room Fireplace Glass Walls Kitchen Landscaping Living Room Rug Staircase Terrace Wood Ceilings Wood Floors Wood Walls
关键词:浴室卧室,现代室内设计,装饰附件,餐厅,壁炉,玻璃墙,厨房,景观美化,客厅,地毯,楼梯,木天花板,木地板,木墙
客服
消息
收藏
下载
最近





























