查看完整案例

收藏

下载
架构师提供的文本描述。为了取代旧的小建筑,新建一座新的培训中心,将更好地适应培训的目的。它的发起目标如下:
Text description provided by the architects. To replace demolish the small, old build a new training center will be better suited to the purpose of training. It was launched with the following goals:
1.利用冈家山优越的自然环境。
1. Take advantage of the superior natural environment of Gonjiam.
© Yoon Junhwan
尹俊焕
2.克服在场地边界内可供建造的实际场地的有限大小。
2. Overcome the limited size of the actual site available for building within the boundaries of the site.
© Yoon Junhwan
尹俊焕
3.解决现有培训中心住宿建筑的视觉干扰和景观的狭小性问题。
3. Address the problem of visual interference with the existing training center accommodation building and the cramped nature of the landscape.
© Yoon Junhwan
尹俊焕
© Yoon Junhwan
尹俊焕
4.提高训练中心的立面的可识别性,它已经被现存的树木所减少。
4. Improve the recognizability of the facade of the training center that has been reduced by the existing trees (metasequoia).
© Yoon Junhwan
尹俊焕
该项目的主要目标是在反映上述四个问题的同时,创造一个与周围环境相协调的单一场所。换句话说,该项目旨在避免通常在其他培训中心出现的“夸张的形式”和“华丽的内饰”,并创造一个场所,让学员能够在森林中通过包围周围的森林相互交流。
The main goal of the project was to create a single place in harmony with the surroundings while reflecting the above four issues. In other words, the project aimed to avoid "exaggerated forms" and "showy interiors" which are usually found in other training centers, and create a place in which trainees can communicate with one another in a forest by encompassing the surrounding forest.
© Yoon Junhwan
尹俊焕
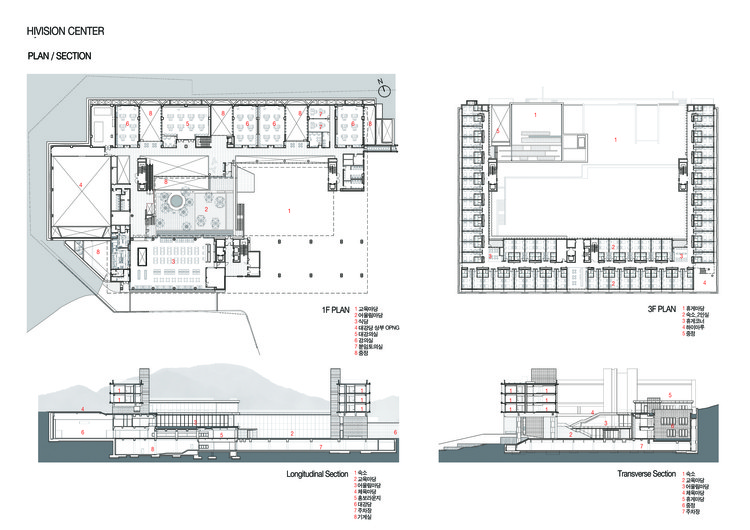
Plan / Section
计划/科
© Yoon Junhwan
尹俊焕
Architects Junglim Architecture
Location Gwangju-si, Gyeonggi-do, South Korea
Category Institutional Buildings
Lead Architects Lim Jinwoo
Area 25400.0 m2
Project Year 2016
Photographs Yoon Junhwan
客服
消息
收藏
下载
最近




















