查看完整案例

收藏

下载
© Ivan Morison
伊万·莫里森
架构师提供的文本描述。看看看看到一个引人注目的雕塑展馆由国际知名艺术家希瑟和伊万莫里森在国家信托的历史贝林顿大厅在赫里福德郡的中央舞台。
Text description provided by the architects. Look! Look! Look! sees a striking sculptural pavilion created by internationally renowned artists Heather and Ivan Morison take centre stage at the National Trust’s historic Berrington Hall in Herefordshire.
Structure Specifications
结构规范
尘土飞扬的粉红结构居住在格鲁吉亚豪宅的围墙花园中,突出了这段“活的历史”作为标志性的格鲁吉亚景观设计师能力布朗的最后杰作的重要性。这些艺术家的灵感来自于花园建筑的流行,或类似于格鲁吉亚时代的“赏心悦目者”。这种折叠的结构形式与大厦内部设计中发现的几何图形相呼应,而且它还与18世纪进口外来水果的菠萝,特别是据说曾在贝林顿种植的菠萝,有着短暂的相似之处。
The dusty pink structure inhabits the walled garden at the Georgian mansion, highlighting the importance of this piece of ‘living history’ as the final masterpiece by iconic Georgian landscape designer Capability Brown. The artists were inspired by the popularity of garden buildings or ‘eye-catchers’ such as these in the Georgian era. The folded form of the structure echoes the geometric shapes found in the interior design of the mansion, and it also bears more than a passing resemblance to a pineapple - inspired by eighteenth- century traditions of importing exotic fruit, particularly pineapples which are thought to have been once grown at Berrington.
© Ivan Morison
伊万·莫里森
艺术家们花了一年多的时间研究贝林顿的格鲁吉亚历史,以及围墙花园的意义。这座花园本来可以作为家族财富、栽培和同时代的象征。由此产生的作品试图与格鲁吉亚花园中存在的一些基本思想、主题和活动重新联系起来,将它们追溯到更广泛的格鲁吉亚生活,特别是回到贝林顿大厅和国家信托基金的收藏中。
The artists spent more than a year researching Berrington’s Georgian history and the significance of the walled garden which would have been used as a symbol of the family’s wealth, cultivation and contemporariness. The resulting work tries to reconnect with some of the fundamental ideas, themes and activities that were present in the Georgian garden, to trace them out to wider Georgian life, and specifically back to Berrington Hall and the National Trust’s collection.
Design Details
艺术家们首先用折纸设计了这个结构,然后与结构工程师阿图拉合作,让这些设计活了下来。这座展馆的建造使用的是一个凹下来的金属基础框架,用螺丝钉固定,木结构上覆盖着一种特殊的机织织物,它可以抵御所有的天气-粉红色是从传统的格鲁吉亚调色板中选择的。
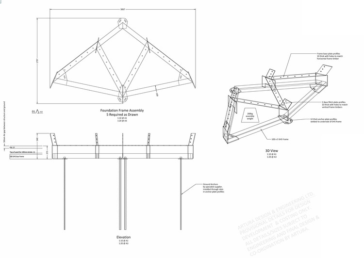
The artists first designed the structure in paper using origami, then worked with structural engineers, Artura, to bring the designs to life. The pavilion is built using a sunked metal foundation frame, held with screw anchors, with a timber structure over-laid with a special woven fabric which can withstand all weathers – in a pink colour chosen from a traditionally Georgian palette.
© Ivan Morison
伊万·莫里森
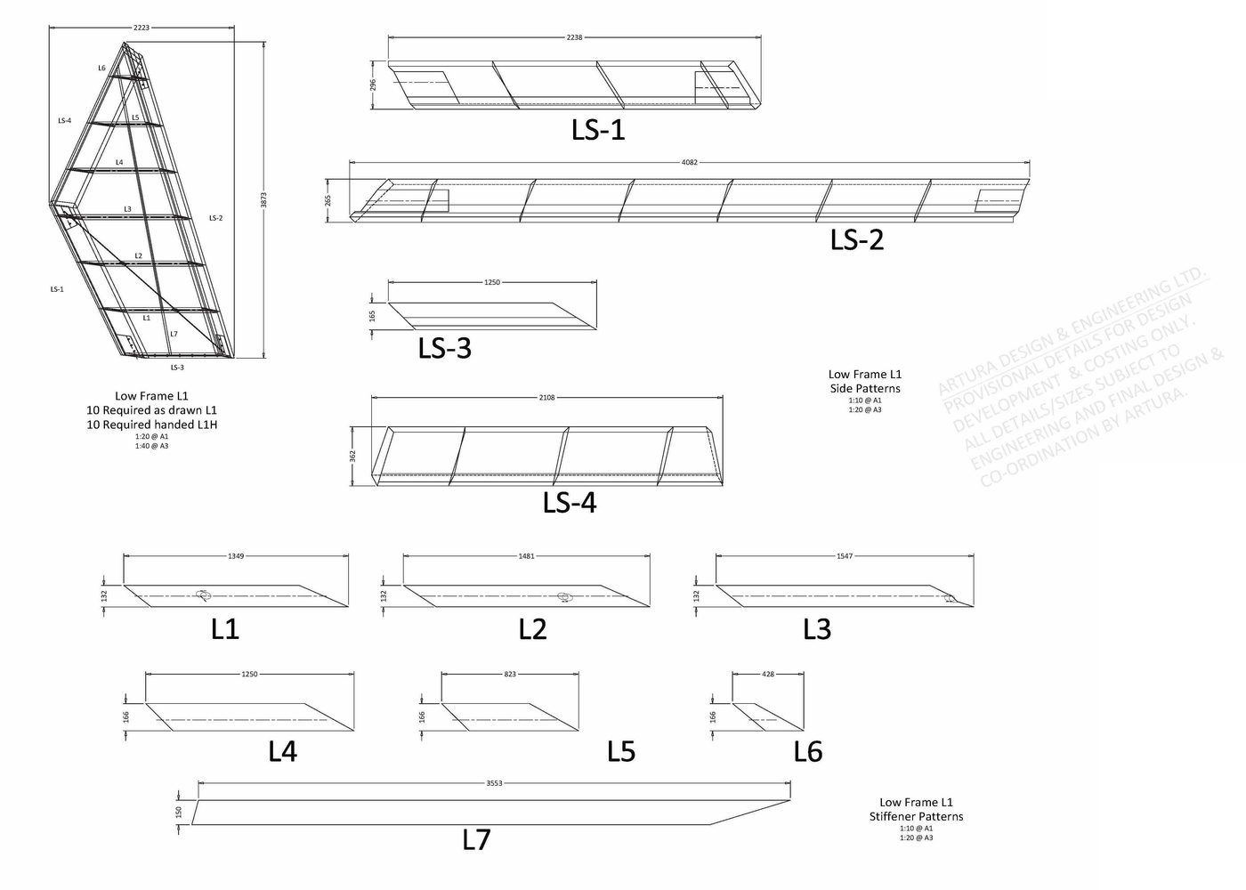
结构被分解成90帧,每个框架由一个复杂的拼图组成的数控木材片,建造在艺术家的工作室。织物被拉过来,固定在每个菱形上,然后在有围墙的花园现场组装。木质鹅卵石地板是由木材制成的,木材被切割、剥落,然后涂上油,使其具有耐候性。
The structure was broken down into 90 frames; each made up of an intricate jigsaw of cnc’d timber pieces, constructed at the artists’ studios. The fabric was pulled over and fixed to each rhomboid and then assembled on site in the walled garden. The wooden cobbled floor is made from timber which is cut, brunt and then oiled to make it weather- resistant.
Foundation Frame Assembly Details
基础框架装配细节
最后一件作品从遥远的地方看上去很坚固,很有雕塑感,但从内部看却呈现出半透明的外观。艺术家们还在展馆内创造了定制的雕塑家具,与建筑的几何形状相呼应。
The final piece looks strong and sculptural from far away, but takes on a translucent appearance from inside. The artists have also created bespoke, sculptural furniture housed inside the pavilion which echoes the geometric form of the structure.
© Ivan Morison
伊万·莫里森
既漂亮又实用,看!看看开放至2019年12月,并将容纳包括音乐和瑜伽在内的活动和活动。该项目也标志着贝林顿计划筹集资金,以研究和恢复其围墙花园回到格鲁吉亚的起源。
Both beautiful and functional, Look! Look! Look! is open to the public until December 2019 and will house a programme of events and activities including music and yoga. The project also marks the start of Berrington’s plans to raise funds to research and restore its walled garden back to its Georgian origins.
看看看是信托新艺术的一部分-国家信托基金的项目方案是与英国艺术委员会合作制定的,使既有艺术家和新兴艺术家的新作品能够在独特和历史的环境中获得。
Look! Look! Look! Is part of Trust New Art – the National Trust’s programme of projects are developed in partnership with Arts Council England, making new works by established and emerging artists available in unique and historic settings.
© Marsha Arnold
玛莎·阿诺德
Architects Studio Morison
Location Berrington Hall, Leominster, Herefordshire, United Kingdom
Category Small Scale
Lead Architect Ivan Morison
Area 100.0 m2
Project Year 2017
Photographs Ivan Morison, Marsha Arnold
Manufacturers Loading...
客服
消息
收藏
下载
最近

















