查看完整案例


收藏

下载
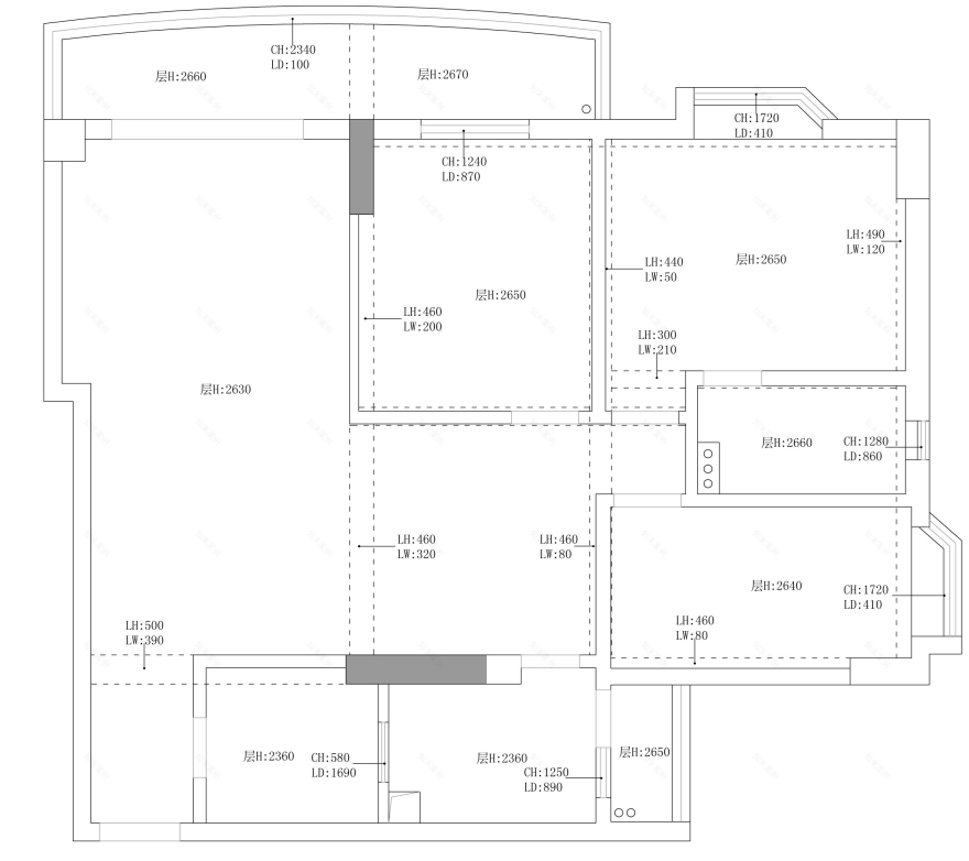
原始结构图
改造诉求:1、入户门进门就是公卫,玄关空间狭小,收纳空间不足。
2、客餐厅动线不明确,餐厅空间过大,利用率小,餐厅光线弱。
3、厨房使用空间小,要独立的西厨区。
4、主人房没有独立卫生间。
//平面方案图//
改造亮点:1、玄关空间扩大,把公卫的门进行了改动。
2、客餐厅的动线合理化,增加了吧台区,洗手间做成干湿分区,公卫使用空间也更大。
3、过长的过道设计一个休闲区,使用木质屏风,光线可直接进入,形成一个喝茶,看书,弹琴的一个惬意空间。
4、主人房的衣柜借用了长辈房的一点点空间,做了一个大衣柜进行收纳。
5、儿童房利用了主人房套卫的凹位设计了一个书桌连衣柜,满足了两个小孩的功课需求。
//| 玄 关Entrance
一侧设立了满墙的玄关柜,满足了全家玄关收纳的需求。
地面使用复古花砖铺贴分割空间,同时,增加空间趣味性。
| 客 厅Living room
业主一家喜欢的淡雅简洁的风格,因此我们在家中大量运用了原木色++ 白色家具和大面积留白,去塑造自然简约的家居氛围。浅灰色沙发,让整体空间沉静,清幽绿植,与整体空间一起生长,利用了一个凹位设计了一个整体的电视背景柜,最大限度地提升了空间储物功能。| 餐 厅
Dinningroom
餐厅靠近墙面的地方设计了一排柜体,作为吧台区域,以补充厨房的收纳。放置烤箱,咖啡机等。后期生活空间干净整洁,离不开巧妙的藏藏藏...
| 厨 房Kitchen
主人房
Master room
主人房借用了长辈房的一点空间,做了一个大衣柜进行收纳,满足了夫妻两人的日常居住需求。卧室延续外部空间的设计元素,作为休息区域,塑造的气氛更为静谧优雅。原木、棉麻、绿植也在经过纱帘过滤后的阳光下显得更加柔和。| 儿童房
Children’s room
为了满足两个小孩的写作需求,往主人房的套卫移了一点,做了一个衣柜书桌一体柜,满足了收纳,也满足了写作需求。| 卫生间
Toilet
把原有的一面墙向外扩了一部分,把洗手台外置,做了干湿分区功能。
视觉上看起来也不会觉得拥挤。
| 休闲区
Relax zone
简洁的隔断设计使整体看起来更为通透,大面积原木元素,搭配白色墙壁,为屋主提供了一个舒压的开放空间。
客服
消息
收藏
下载
最近



























