查看完整案例

收藏

下载
© Young Kim
金永
架构师提供的文本描述。该遗址位于一条小巷里,距离首尔江南区繁忙的林荫大道Dosandae-ro几个街区远。这个地区过去曾是一个低矮的住宅区,但现在正在迅速转变为一个充满商店和餐馆的商业区。现有的建筑有一个简单的矩形结构,中间有一个庭院,使用混凝土砌块和黑钢作为主要的装饰材料。设计这座建筑的主要兴趣是保持现有的重要性,但要进行足够的改造以适应新的项目。北侧的混凝土砌块墙是为了保持建筑物原有的物质性而进行的,而新造的墙体主要采用黑钢。
Text description provided by the architects. The site is located in an alley, a few blocks away from Dosandae-ro a busy boulevard in Seoul’s Gangnam district. The area used to be a low-rise residential district in the past, but now rapidly transforming into a commercial district full of shops and restaurants. The existing building had a simple rectangular structure with a courtyard in the middle, using concrete blocks and blackened steel as a major finish material. The main interest in designing the building was to keep the existing materiality, yet to make enough alteration to accommodate the new program. The concrete block wall on the north was maintained in order to preserve the original materiality of the building, and the blackened steel was mainly used for the newly built walls.
© Young Kim
金永
现有建筑为两层建筑,建筑与土地的比例为52.76%,建筑面积比为76.98%.客户要求将该建筑扩展到三层楼,并将其建筑与土地的比例最大化。建筑面积扩大401.16 m2,建筑与土地的比例为59.74%(最大:60%),建筑面积比为118.97%。由于东北角高度的限制,三楼的围场从二楼开始倾斜,在中间形成了一个三角形的阳台。
The existing building was a two-story building, with 52.76% building-to- land ratio and 76.98% Floor Area Ratio. The client has requested to extend the building to a three-story building and maximize its building-to-land ratio. The building was extended by 401.16 m 2 to make 59.74% building-to-land ratio (max: 60%) and 118.97% Floor Area Ratio. Due to the height restriction at the north-east corner, the 3rd floor massing was skewed from the 2nd floor massing, creating a triangular balcony in between.
Process Diagram
工艺图
在东面的主要外观是一个金属网窗帘,刚性但灵活的材料,沿着曲线模式由多个半圆形组成。连接两个镜像图案的金属网将创建一个过渡形式。这种皮肤在固体壁前产生一层扩散层,这需要将室内空间与外部空间完全分开。它暗示了外观的一个模糊不清的特点,它是多样化的,安装在墙面底部的彩色LED灯,强调它的曲线形式在夜间。
The main façade on the east is covered with a metal mesh curtain, rigid yet flexible material following the curvilinear pattern consisting of multiple semicircles. The metal mesh connecting the two mirrored patterns will create a transitional form. This skin produces a layer of diffusion in front of the solid wall, which needs to completely separate the interior space from outside. It suggests an ambiguous characteristic of the façade, which is diversified by the colorful LED lights installed at the bottom of the façade, emphasizing its curvilinear form during the night time.
© Kyungsub Shin
c KyungsubShin
Facade Diagram
立面图
© Kyungsub Shin
c KyungsubShin
正门被移到建筑物的北侧,而原来的东门被金属网挡住。然而,人们模糊地看到了旧的入口和金属网后面的楼梯。入口处的混凝土楼梯一直延伸到第三层,保持了原有楼梯的物质性。
The main entrance was relocated to the north side of the building, while the original east entrance was blocked by the metal mesh. However, people can vaguely see the old entrance and the stairs behind the metal mesh. The concrete stairs at the entrance extends up to the third level, keeping the materiality of the original stairs.
© Young Kim
金永
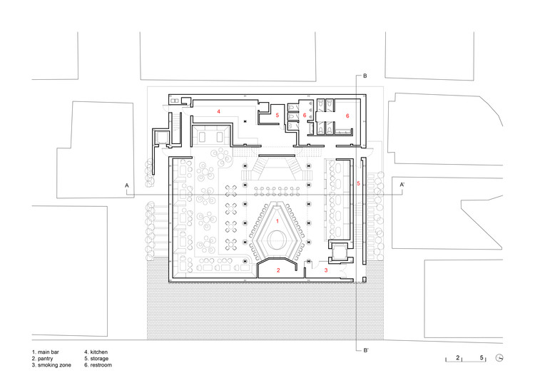
First Floor Plan
一层平面图
© Young Kim
金永
Architects Simplex Architecture
Location Seoul, South Korea
Category Hospitality Architecture
Lead Architects Greg Chung Whan Park, Sanghun Song
Space Branding & Design KMGD
Area 1263.0 m2
Project Year 2016
Photographs Kyungsub Shin, Young Kim
Manufacturers Loading...
客服
消息
收藏
下载
最近








































