查看完整案例

收藏

下载
© Francesco Mattuzzi
c.Francesco Mattuzzi
架构师提供的文本描述。在短短30天的建造期之后,由于Corriere della Sera和Tgla 7在“un Aiutisubito”倡议下组织了筹款活动,新的阿马特莱斯学校食堂已经建成。学校食堂由Stefano Boeri Architetti设计,是为Amatrice的孩子们设计的多功能空间,它将成为当地社区的一个聚集地,人们可以在那里聚会、玩耍,或许还可以停下来看一看西比里尼山脉(SiBillini),它是由大厅的宽阔窗户构成的。
Text description provided by the architects. After a construction period of only 30 days, the new school refectory for Amatrice has been realized, thanks to the fundraising organized by Corriere della Sera and TgLa7 with the initiative “Un aiuto subito”. The school refectory, designed by Stefano Boeri Architetti, has been conceived as a multifunctional space for Amatrice’s children and it will become a gathering point for the local community, where people can meet, play and, maybe, stop for a while and look at the Sibillini Mountains, framed by the wide window in the main hall.
Elevations
这仅仅是重建一个被完全摧毁的领土的第一步,也是一个有形的迹象,表明高质量和高度关注的建筑可以在一起,即使在意大利,也可以大大减少成本和时间。
It’s only a first, small, step towards the recostruction of a completely destroyed territory, but it’s also the tangible sign that building with high quality and great attention can go together, even in Italy, with a significant reduction of costs and time.
© Francesco Mattuzzi
c.Francesco Mattuzzi
一方面,在短时间内取得这样的结果是非常重要的,因为对重建紧急情况给予及时的答复是所有参与该项目的专业人员的优先事项。另一方面,对Amatrice的承诺才刚刚开始:Stefano Boeri Architetti和Innova FVG已经在进行“Amate Amatrice”项目的第二阶段工作。除了木制餐厅外,该项目还包括一个食品中心,该中心将在阿马特里切举办八家历史餐厅,被地震摧毁。这些由木制预制结构建造的餐厅,连同食堂,将再次为130多人提供一个工作场所,在去年8月的悲惨地震之前,这些人在饭馆领域工作。在食堂周围,将形成一个新的公共空间。这是阿玛特里斯的新广场,人们可以在这里相聚在一起。这是一个品尝当地特色的地方,为各地的食品旅游和经济注入新的力量。这也是一个起点,重新发现一个在几秒钟内失去了数百条生命和数百年记忆的小镇的身份,但现在它已经准备好一片地重建它自己的重生。
On one side, it’s really important that such a result has been achieved in a short period of time, because to give a prompt answer to the reconstruction emergency was a priority for all the professionals involved in the project. On the other side, the commitment with Amatrice has only just begun: Stefano Boeri Architetti, together with Innova FVG, is already working on the second stage of the project “Amate Amatrice. Besides the wooden refectory, the project includes a food hub that will host eight of the historic restaurants in Amatrice, destroyed by the earthquake. The restaurants, that will be built with wooden prefabricated structures, together with the refectory will give again, a workplace to more than 130 people that, before the tragic earthquake of last August, worked in the restaurant field. Around the refectory, a new public space will take shape. It’s a new square for Amatrice, where people can meet and stay together. It’s a place where to taste the local specialities, in order to give new force to the food tourism and to the economy of the all territory. It’s also a starting point, to re-discover the identity of a town that has lost in a few seconds hundreds of lives and centuries of memories, but that is now ready to build again, piece by piece, its own rebirth.
© Francesco Mattuzzi
c.Francesco Mattuzzi
干预行动由一套由木质预制模块组成的结构组成,将容纳一所学校食堂(摘录1)和8家餐厅,这些餐厅的容量和大小各不相同。(摘录2)。
The intervention is composed of a set of structures built with wooden prefabricated modular elements, which will accommodate a school refectory (Excerpt 1) and 8 restaurants, with different capacities and size. (Excerpt 2).
© Francesco Mattuzzi
c.Francesco Mattuzzi
该项目涉及在一个开放的公共空间周围放置模块,包括外面的行人人行道,配备座椅和照明,以及一个中央空白空间,布置成绿色,配备椅子,用于临时安装城市木制家具。这些结构将部分在车间内进行,然后按照详细设计和施工监督期间确定的最后期限和程序在现场组装。
The project involves the placement of the modules around an open public space, consisting of a pedestrian pavement outside, equipped with seating and lighting, and a central blank space, arranged to green, equipped with chairs to house a temporary installation of urban wooden furniture. The structures will be undertaken partly in the workshop and then assembled on site, according to the deadlines and the procedures defined during detailed design and construction supervision.
© Francesco Mattuzzi
c.Francesco Mattuzzi
该地区还将配备停车场、装卸区,以及一条大约6米宽的车道,供餐厅运营。
The area will also be equipped with parking lots, loading and unloading areas, and with a driveway of around 6m width serving back the modules, to supply the restaurants operations.
整个项目区还将配备基础设施,以提供设施的功能以及与现有网络的连接。
The whole project area will also be equipped with the infrastructures to provide the functionality of the facilities, as well as connections to existing networks.
© Francesco Mattuzzi
c.Francesco Mattuzzi
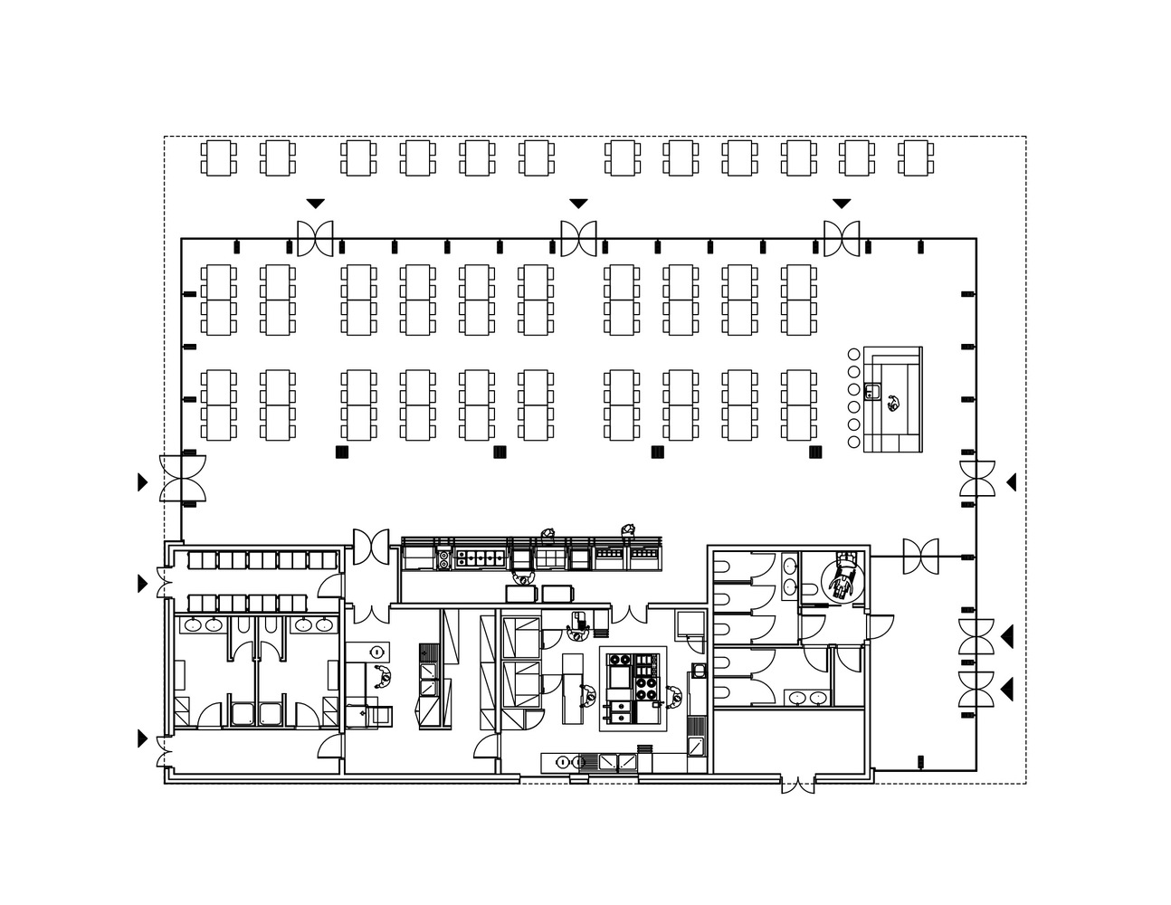
第一段:学校食堂面积约490平方米,包括开放酒吧区150个座位的餐厅,以及一些用于厨房、准备和储存、浴室、更衣室、当地洗衣和浪费、技术室的服务区。
Excerpt 1: School refectory area about 490 square meters, consisting of a dining room for 150 seats in the open bar area, and a number of service areas for galleys, preparation and storage, bathrooms, locker rooms, local washing and waste, technical rooms.
结构的实现将使用用于外壳和支撑件的木制预制构件;屋顶绝缘金属板中的模块化单元;铝和双层玻璃周边门窗;干材料的内部隔断;混凝土室内和室外地板;当地服务和厨房用GRES瓷砖。
The structure will be realized using wooden prefabricated elements for the outer casing and the supporting elements; modular elements in the insulated metal sheet for the roof; aluminum and double glazing perimeter doors and windows; interior partitions in dry materials; indoor and outdoor flooring in concrete and gres tiles for local service and kitchen.
第二部分:不同容量和大小的餐厅,从85 mq左右到500平方米左右,视不同餐厅经营者的要求而定,以预制的模块式外罩和支撑件实现;隔热金属板中的模组件用于覆盖;铝制和双层玻璃的周边门窗;室内地板在混凝土和粗糙的外部,石器完成为服务区和厨房。每家餐厅还将配备一个轻钢和木质结构,用作室外区域,供夏季室外餐桌使用。
Excerpt 2: Restaurants of different capacity and size, from about 85mq to about 500 square meters, depending on the requirements of different restaurateurs, realized with prefabricated modular elements in wood for the outer casing and the supporting elements; modular elements in insulated metal sheet for to the cover; perimeter doors and windows of aluminum and double glazing; indoor flooring in concrete and rough for the exterior, stoneware finish for the service areas and kitchen. Each restaurant will also be equipped with a lightweight steel and wood structure to use as outdoor area to accommodate tables outside during summer.
© Francesco Mattuzzi
c.Francesco Mattuzzi
该项目还包括通过模块元素建造内部、厨房和服务区。
The project also involves the construction of interiors, kitchens and service areas, through modular elements.
餐厅的布局将使餐厅多样化,为用户提供可识别和定制的服务。
The layout of the dining rooms will instead diversify the restaurants, to give recognizability and customization for users.
将有定位和沟通的图形元素,这可以保证每个餐厅的定制,同时给出一个整体的设计。
There will be graphic elements of orientation and communication, which can guarantee the customization for each restaurant, giving at the same time an overall design.
© Francesco Mattuzzi
c.Francesco Mattuzzi
Architects Stefano Boeri Architetti
Location Amatrice, Province of Rieti, Italy
Category Student Hall
Lead Architects Stefano Boeri, Corrado Longa, Marco Giorgio, Julia Gocalek, Daniele Barillari
Area 490.0 m2
Project Year 2016
Photographs Francesco Mattuzzi, Stefano Boeri Architetti
Manufacturers Loading...
客服
消息
收藏
下载
最近




























