查看完整案例

收藏

下载
主要承包商建筑风格制造商装货.。多规格少规格
Main Contractor Building Styles Manufacturers Loading... More Specs Less Specs
© Jason Taylor
(杰森·泰勒)
架构师提供的文本描述。银
Text description provided by the architects. Silver & Co has designed and converted a derelict shed into a flexible multi-functional art studio for an artist couple and their child at the bottom of a west London garden.
© Jason Taylor
(杰森·泰勒)
工作室的设计是为了满足雕刻家和画家的需求,包括工作、爱好、游戏和储藏。它还需要在需要时变成画廊或客房。考虑到这些,工作室必须尽可能灵活、开放和通风。
The studio has been designed to meet the sculptor and painter’s needs that include work, hobby, play and storage. It also needs to be turned into a gallery or guest room when needed. With these in mind, the studio has to be as flexible, open and airy as possible.
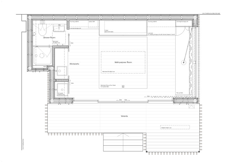
Floor Plan
© Jason Taylor
(杰森·泰勒)
Long Section
长剖面
在木地板下,隐藏着一张下沉的床,可以通过机械地抬起一段地板。厨房两边的桦木胶合板打开,露出艺术家的洗水槽和淋浴间。藏在一个全高的储物柜里的是一张折叠的乒乓球桌,其中包含了另一位客户的热情。折叠桌已被纳入允许更大的空间,当它没有被使用。
Under the timber flooring hides a sunken bed that is accessible by lifting a section of the floor mechanically. The birch plywood wall panels on both sides of the kitchenette slide open to reveal an artist’s wash-up sink and a shower room. Hidden within a full height storage cupboard stands a folded table-tennis table, where another of the clients’ passion has been included. Folding desk has been incorporated to allow for a bigger space when it is not being used.
© Jason Taylor
(杰森·泰勒)
充满光线的空间,打开天窗,窗户和玻璃推拉门通向一个加热的阳台,在那里,家庭可以欣赏他们的花园,并享受户外就餐的一切可能。工作室的位置得益于直接阳光和木材百叶窗天篷和自动辊网盲,以确保工作室和阳台获得充足的遮阳和不过热的晴天。
The light-filled space with opening skylights, windows and glazed sliding doors leads onto a heated veranda where the family gets to appreciate their garden and enjoy outdoor dining whenever possible. The location of the studio benefits from direct sunlight and timber louvered canopy and automatic roller mesh blind have been introduced to ensure that the studio and veranda get ample shading and not overheated on sunny days.
© Jason Taylor
(杰森·泰勒)
无烟煤锌和Accoya木覆层,隐藏了绝缘钢和木材结构,由于其耐用性和稳定性被选择,并与现有的砖墙后壁。
Anthracite zinc and Accoya wood cladding, concealing an insulated steel and timber structure, have been chosen for their durability and stability and they compliment with the existing brick back wall.
© Jason Taylor
(杰森·泰勒)
Architects Silver & Co.
Location London, United Kingdom
Category Extension
Lead Architect Satchel Tang
Area 42.0 m2
Project Year 2016
Photographs Jason Taylor
Manufacturers Loading...
客服
消息
收藏
下载
最近





































