知末
知末
创作上传
VIP
收藏下载
登录 | 注册有礼

万科金色华亭 黄文彬

2017/07/01 00:00:00
查看完整案例
微信扫一扫
收藏
下载
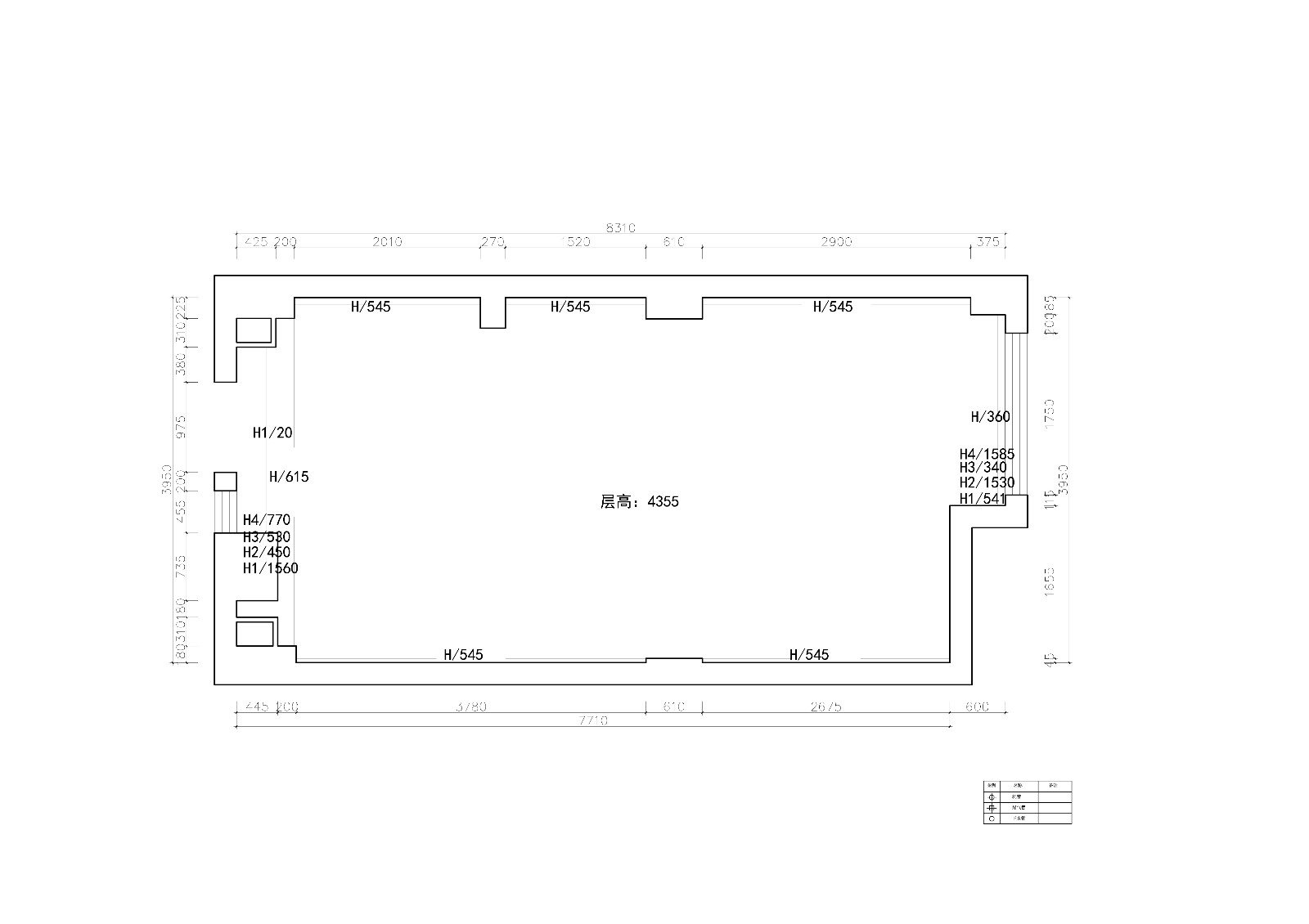
项目名称:万科金色华亭Loft公寓
项目地点:上海松江仓华路644号
设计时间:2014年6月~7月
竣工时间:2014年11月
项目概述:Loft商业空间,单层室内面积32平米,4.3M层高。
设计定位:自由、个性、展示
万科金色华亭  黄文彬-6
万科金色华亭  黄文彬-7
万科金色华亭  黄文彬-8
万科金色华亭  黄文彬-9
万科金色华亭  黄文彬-10
万科金色华亭  黄文彬-11
万科金色华亭  黄文彬-12
万科金色华亭  黄文彬-13
万科金色华亭  黄文彬-14
万科金色华亭  黄文彬-15
万科金色华亭  黄文彬-16
万科金色华亭  黄文彬-17
万科金色华亭  黄文彬-18
万科金色华亭  黄文彬-19
万科金色华亭  黄文彬-20
万科金色华亭  黄文彬-21
万科金色华亭  黄文彬-22
万科金色华亭  黄文彬-23
万科金色华亭  黄文彬-24
万科金色华亭  黄文彬-25
万科金色华亭  黄文彬-26
公寓设计 上海缤视 单身公寓
南京喵熊网络科技有限公司 苏ICP备18050492号-4知末 © 2018—2020 . All photos and trademark graphics are copyrighted by their owners.增值电信业务经营许可证(ICP)苏B2-20201444苏公网安备 32011302321234号
客服
消息
收藏
下载
最近