查看完整案例

收藏

下载
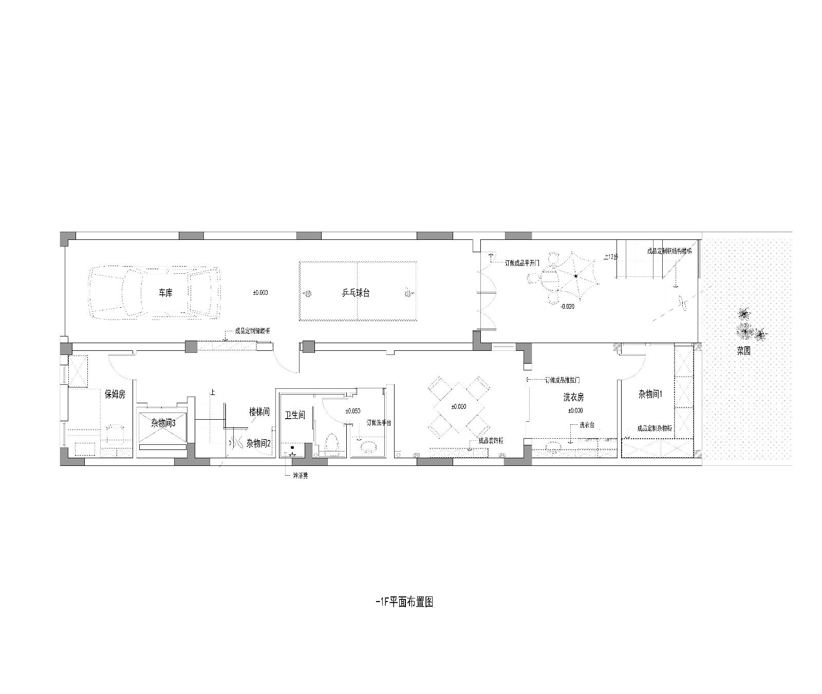
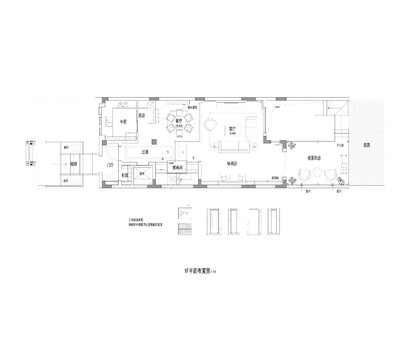
地址:成都中海国际社区峰墅
设计时间:2014年底
开放时间:2016年3月
主要材料:仿古砖,壁纸,涂料,灰色木
设计单位:ACE谢辉室内定制设计服务机构
因为人性的复杂与多变,每个人每个时期对家的理解都不相同。但在所有的变化中,有一点是恒定的,那便是对爱与美的追求与期许。投射到家宅里,可以统称为对“幸福感”的诉求。“幸福”是一种只可意会的心理感受,对私宅设计来说,它并不依赖于高调的造型与花哨的装饰,设计师必须透过空间的表象去关注生活的本质,人性的关怀,才可抵达。
在这套400平联排别墅的设计里,感觉是收敛的。总体“收敛”的设计手法背后我们对空间调性的把控,逻辑的梳理,情感的提炼,真正还空间以本质,赋予生活幸福的意义。
色彩,决定了空间的调性和灵魂。在所有色彩中,中性色是最为柔和的视觉感知色调,节制中饱含亲切感。因此,设计师在空间中大面积使用了以米白、浅灰为主的中性色调,同时搭配少许金色配饰、绿植提亮点缀,于温润中平添了骨力与温度。在这样的空间里,哪怕只是静静蜷缩于沙发靠椅,任由日光温存,微风抚触,时光也即刻变得美妙而情深。
这样的温情从客厅一直延伸至各功能空间,调性统一,浑然一体。在共性下,设计师又为独立空间加入浅绿、淡粉、浅黄或不同图案纹饰以区分不同的个性特征,或灵动或雅致,始终保持了高度的呼应度与一致性,体现出设计师极强的色彩把控与归纳能力。
相对均质的空间格局,是心理舒适的另一要点:大、空则失衡;小、满则拘谨。因此,设计师通过对空间的重新分配与归纳,配合色彩、陈设的处理引发视觉变化,让每一个小空间尽可能的匀称而方正,气韵贯通,动线流畅。
客厅的笔墨最为浓重,多样性陈设让直白的大空间充盈而从容。从Loft风演化而来的箱式茶几,带有古典意式特征的棉麻沙发,新古典主义形式的座椅等家具并置,去除个性化特征,使空间呈现出极大的包容性,令来者充分感受到主随客便的亲切与善意。
餐厅区域有较为明显的缺憾,上方挑空直达屋顶,但距窗户较远,自然采光较差,人如坐深井。然而,通过我们后期改造,这里反而成为全案一个亮眼之处:设计师将餐厅上方两个卧室的墙面各开两扇窗户,让空气流动,光线通透,同时弥补了呼吸与采光的劣势。更重要的是,同时对开的两扇窗户间呈相互顾盼之势,并与二楼走道,楼下公共空间互为呼应,成为空间中情感联系最好的落脚点。这种联系又因带着某种小小的遮蔽与阻碍,并不显直白和唐突,有一种东方式含蓄美学的韵味,不着痕迹地令人玩味和依恋。
主卧沉静简美,一侧小露台被设计师纳入其中,让空间更为开阔平稳。形式上只保留基础陈设,体现出自我、私密的态度。
儿童房的设计我们认为一般包含两个维度,一种关注其成长与生长,另一种关注其今后所处的阶层及性别特征。我们在该儿童房的处理中,明显采用了前者。空间里无明显的符号特征指向,有一种中性的克制,在时间流淌中,任其自然生长。这正是我们在这个案列中的设计思维方法。
ACE谢辉室内定制设计 成都中海国际社区峰墅 谢辉 豪宅 小美式 白色
客服
消息
收藏
下载
最近





































