查看完整案例

收藏

下载
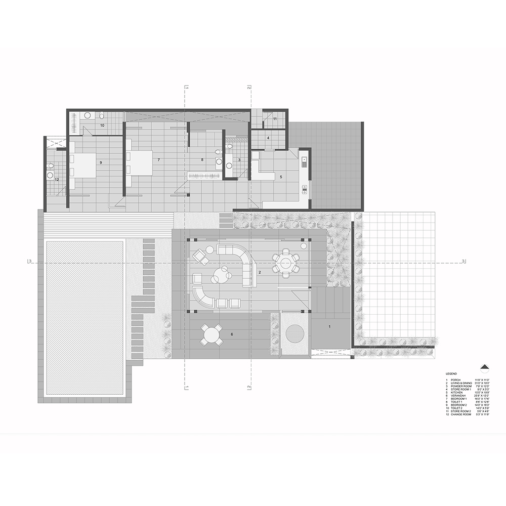
这个周末的房子是作为一个古吉拉特家庭的集合和休息的地方,该家庭位于艾哈迈达巴德西部的一个优雅的地方。业主给出的设计简介是把这个地方开发得更像一个小度假村。记住这一点,房子被设计成两个街区,由开放的天空空间隔开。这样做的目的是让自然元素流入区块,让用户参与这些元素,从而将它们与自然联系起来。
前座有居住、就餐和阳台空间,更具有公共性,由玻璃亭诠释。后面的街区有私人卧室空间和厨房,因此在表达上更加鲜明和内向。开放和流动的感觉盛行,有诱人的度假感觉。
玻璃亭子被刺眼的太阳遮挡着,南面有一个深廊,东边有一个入口门廊,西边有一个木屏风。位于西南部的游泳池使凉风吹进了起居室的空间。
这房子的性质是非正式的,消除内部空间的虚假天花板,保持暴露的碾压混凝土板。客厅和卧室空间的地板是河流冲刷的印度花岗岩,而所有厕所都有天然花岗岩、板岩和大理石。外墙有印度花岗岩的某些部分包覆和石粒灰泥。内墙无油灰的直接涂料有特色的乡土外观。在几个使用花岗岩废物制造随机模式的厕所中,也探讨了使用这些废物的问题。
Firm Modo Designs - Architect Arpan Shah
Type Residential › Private House
STATUS Built
YEAR 2016
SIZE 3000 sqft - 5000 sqft
keywords:architecture, architecture news, interiors, interior design, portfolio, spec, brands, marketplace, products The Open House
关键词:建筑,建筑新闻,室内设计,组合,规格,品牌,市场,开放的产品
客服
消息
收藏
下载
最近


















