查看完整案例

收藏

下载
这座古老的建筑,建于1925年,以前是一座废弃的托儿所,后来被改造成从一座废弃的建筑中创造出美妙的空间。它位于荷兰莱顿,荷兰南部的一个省,以其百年的建筑而闻名。
建筑师在重组过程中保留了很多原始细节,创造了充满自然光的开阔空间。这些休息室原来所在的地区现已改建成三个单独的房间。
它有很高的天花板,让空气流动,以及天窗,使自然光进入空间。
改造后的校舍还具有可持续的设计特点,如屋顶太阳能电池板、改进的建筑绝缘和中央控制照明,以及气候、遮阳和安全系统,使居住者能够控制室内空间的各个方面。
它的外墙的红砖,随着时间的老化,似乎告诉我们过去的故事,这种结构。
在内部,现代家具创造了一个鲜明的对比旧的结构和目前的风格的设计。在每一个空间,我们都有机会观察新旧和谐共处的方式。
画廊鸟瞰
老建筑画廊外景
廊内庭院及露台景观
廊内庭院及露台景观
画廊中的视图
在同一空间内的画廊客厅、餐厅和厨房中可以看到
在同一空间内的画廊客厅、餐厅和厨房中可以看到
在同一空间内的画廊客厅、餐厅和厨房中可以看到
在画廊电视区观看
在画廊电视区观看
可在画廊看到黑色和木质的厨房,并可进入露台。
可在画廊看到黑色和木质的厨房,并可进入露台。
画廊中的现代餐厅景观
在带更衣室的画廊卧室内观看
画廊浴室的视野
画廊浴室的视野
带木制天花板的画廊浴室景观
画廊中的视图
画廊中的视图
画廊中的视图
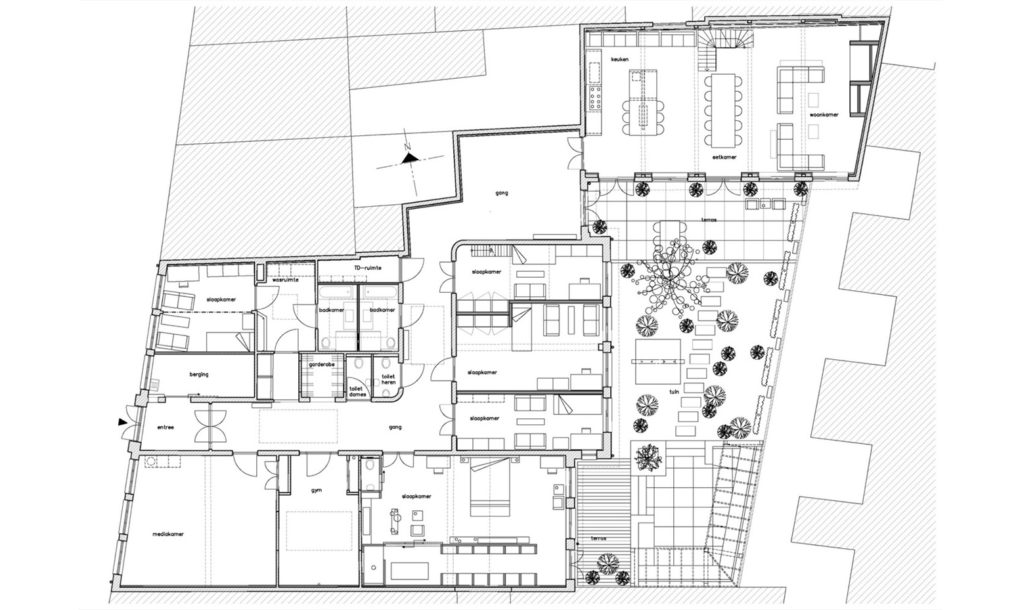
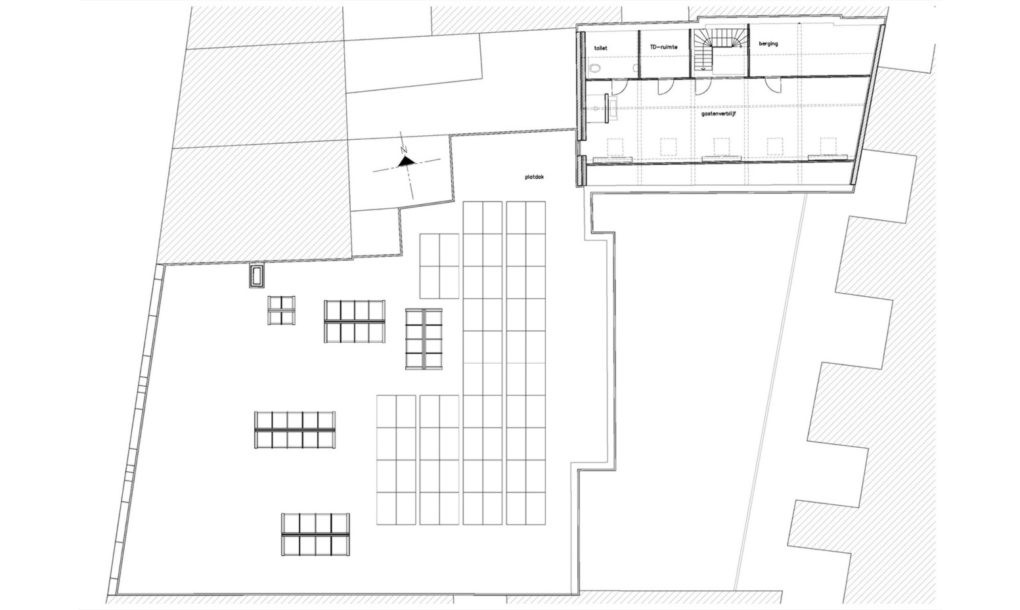
keywords:Bathroom Bedroom Bookshelf Brick Walls Concrete Walls Contemporary Interior Design Decorative Accessory Dining Room Exposed Ceiling Beams Fireplace Floor Plans Glass Walls Hall and Entrance High Ceiling Kitchen Landscaping Lighting Living Room Rug Skylights Staircase Terrace Wood Floors
关键词:浴室、卧室、书架、砖墙、混凝土墙、现代室内设计、装饰附件、餐厅、暴露天花板、梁、壁炉、平面图、玻璃墙、大厅和入口、高天花板、厨房、照明、客厅、地毯、天窗、楼梯、木地板。
客服
消息
收藏
下载
最近






















