查看完整案例

收藏

下载
Courtesy of Innauer-Matt Architekten
因诺尔-马特·阿尔奇顿(MattArchitekten)
架构师提供的文本描述。Strubobuob是一家房子和花园周围所有东西都很好和有用的商店,位于Bezau村的一个以前的修理水罐和其他金属器皿的车间里。为了把企业的两家商店,一家是园艺店,一家是餐具店,从两个不同的地点一起来,我们被委托设计了一个Gartenwerkstatt(园艺车间):这是对最初的,最近翻修的主建筑的一个补充。
Text description provided by the architects. Strubobuob is a shop for all things nice and useful around house and garden, located in a former workshop for the reparation of watering cans and other metal ware in the village of Bezau. To bring the business’s two shops, one for gardening and one for tableware, together from two different locations, we were commissioned with the planning of a Gartenwerkstatt (gardening workshop): an addition to the original, recently renovated main building.
Courtesy of Innauer-Matt Architekten
因诺尔-马特·阿尔奇顿(MattArchitekten)
主楼以前的花园里的小延伸建筑和旧的建筑现在形成了一个共用的前院。从这里,一个有盖的入口区域,有宽的商店窗户,通向商店。园艺工具和装饰在底层出售,而家庭用品和餐具则在阁楼找到了一个新家。房子两边都有两层高的山墙,参照村庄周围的建筑,在里面创造了一个实用而令人兴奋的十字形布局,并在外面形成了一个独特的特征。
The small extension building in the main house’s former garden and the old building now form a shared front yard. From here, a covered entrance area with wide shop windows leads into the shop. Gardening tools and décor are sold on the ground floor while home- and tableware have found a new home in the attic. Two-storey gables on both long sides of the house, a reference to surrounding buildings in the village, create a functional and exciting cross-shaped layout on the inside and a distinctive character on the outside.
Courtesy of Innauer-Matt Architekten
因诺尔-马特·阿尔奇顿(MattArchitekten)
Courtesy of Innauer-Matt Architekten
因诺尔-马特·阿尔奇顿(MattArchitekten)
新扩建建筑的内部空间的特点是原始表面,暴露实木建筑和简单的细节展示其建设者的工艺。少数选定的固定装置和中央楼梯是用黑钢制造的,并对所提供的货物置之不理。室内墙壁上有实心云杉和实心冷杉,经过抛光的混凝土地板加上综合供暖和灰木地板,提供了一个简单但引人注目的空间,并将建筑物的起源称为车间。
The interior space of the new extension building is characterised by raw surfaces, an exposed solid wood construction and simple details showcasing the craftsmanship of its builders. The few selected fixtures and the central staircase are made in black steel and take a back seat to the goods on offer. A solid spruce façade and solid fir on the inside walls, polished concrete floors with integrated heating and floorboards in ash wood provide a simple, yet striking space and refer to the building’s origins as a workshop.
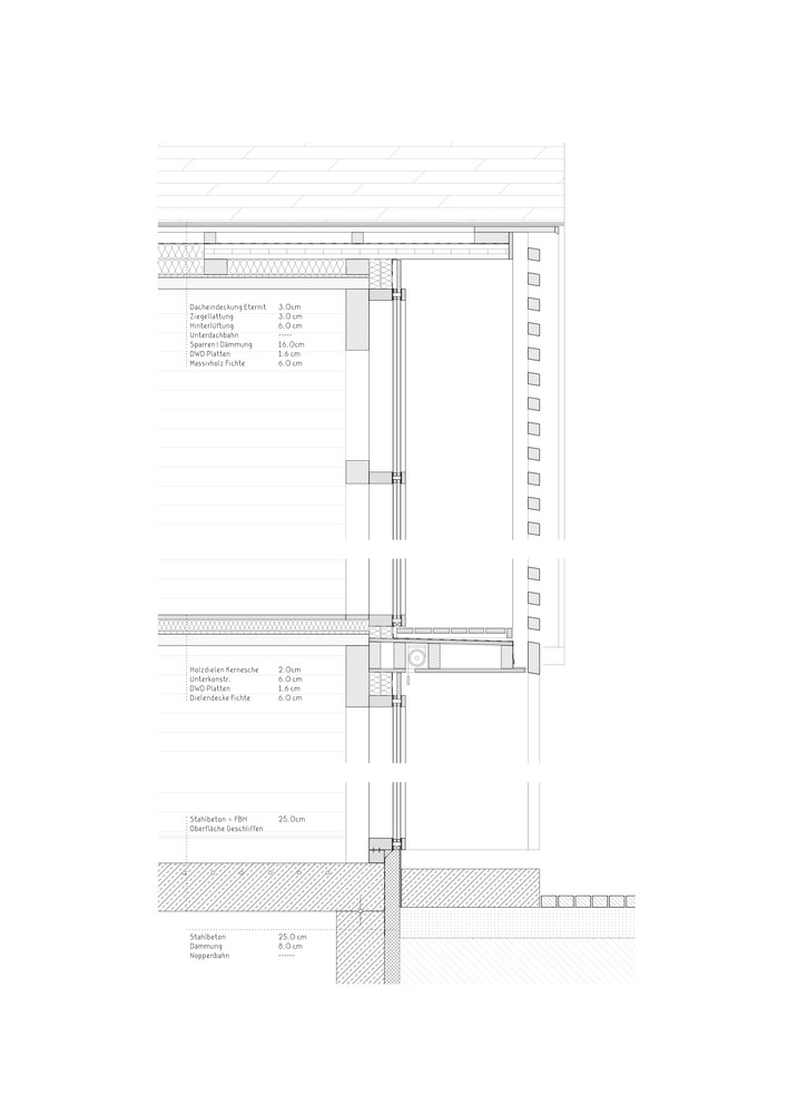
同样的想法也体现在建筑物的支撑结构中。预制木架结构由实木中的非轴承绝缘、无箔元素补充.所有的外墙和建筑的承重结构都是用实木做的。为了尽量缩短商店的营业时间,这座大楼是在附近的一家木材建筑公司预制而成的。一个高度的预制允许高质量的建筑在相当短的装配周期,在通常安静的冬季月份。由于建筑工地离木工很近,上层楼是整层预制的,现场安装了一台移动式起重机。
The same idea is represented in the building’s supporting structure. The pre-fabricated timber-frame construction is complemented by non-bearing insulated, foil-free elements in solid wood. All exterior walls and the building’s bearing construction are made from solid wood. In order to keep the disruption of the business in the shop as short as possible, the building was pre-fabricated in a nearby timber construction company. A high degree of prefabrication allows for high-quality constructions at rather short assembly periods in the usually quiet winter months. As the construction site was very close to the carpentry, the upper floor was prefabricated in its entirety and installed on-site with a mobile crane.
Courtesy of Innauer-Matt Architekten
因诺尔-马特·阿尔奇顿(MattArchitekten)
Architects Innauer-Matt Architekten
Location 6870, Austria
Category Extension
Area 155.0 m2
Project Year 2017
Manufacturers Loading...
客服
消息
收藏
下载
最近

























