查看完整案例

收藏

下载
设计单位:尚策室内设计顾问(深圳)有限公司
施工单位:深圳市瑞伟工程有限公司
主笔设计师:李奇恩、陈子俊
项目面积: 525m²
新古堡灰石、帕斯高灰石、灰麻石(斧凿面)、木饰面、仿石砖、仿木纹砖、户外木地板
蒙娜丽莎、翰姆斯特、新中源、杜拉维特、汉斯格雅、雷士照明
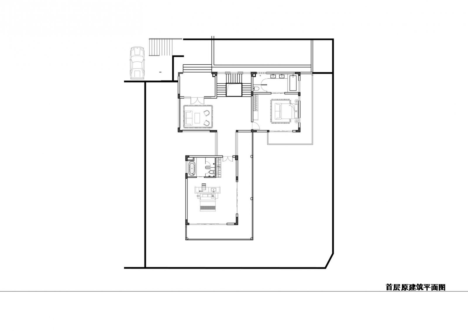
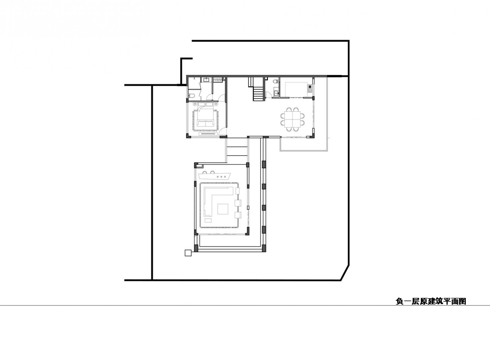
►该项目紧邻博鳌国宾馆,占据博鳌的最佳景观位置。作为博鳌最有特色的山体项目,龙潭岭俯瞰整个博鳌,这是一个集休闲度假、健康养生为一体的高端休闲别墅度假社区。整体设计风格定位为现代中式度假风,在考虑视觉因素和空间因素的基础上,将文化脉络贯穿整个设计布局,形成一个文化线索和空间线索互相交互作用的独特的人文空间,拥有浓厚的文化底蕴,让人在视觉和心理上产生共鸣。
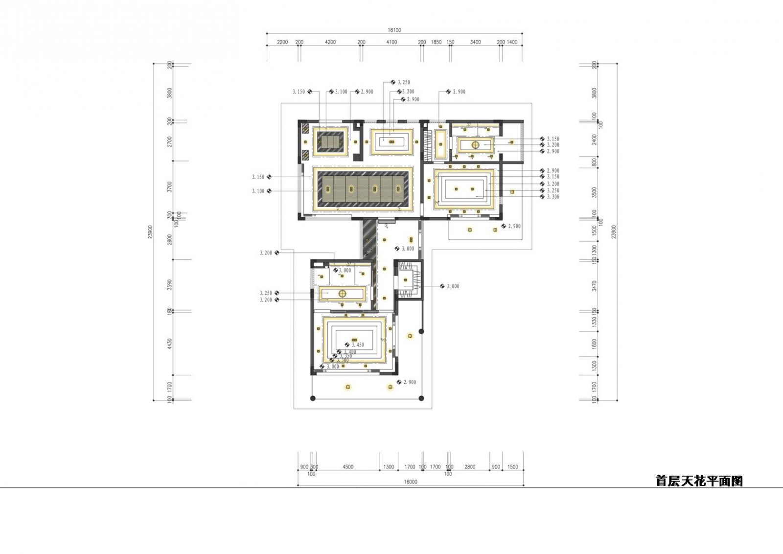
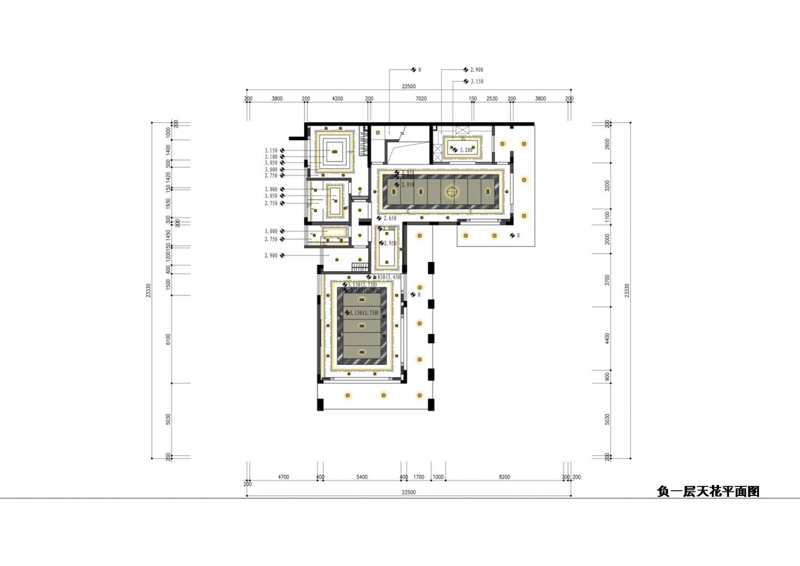
►三厅三套房,朴实精致的设计风格,整洁大气的空间布局,和谐的色彩,细腻的工法,干净利落的线条,优雅的中国元素,现代的精准气息,实木框架布艺沙发、单椅和圆几,哑光黑五金落地灯,木纹厚地毯,中式元素与现代材质的巧妙融合,让古雅与简约在同一个时空里浪漫邂逅;
►结合海南特有的气候环境,精选木、石、金属、亚麻布、藤条、不锈钢、深木色水曲柳等各类材质,将传统生活理念以符合现代生活的专业设计手法铺陈于整个居住空间之中。
尚策设计 中信•海南龙潭岭C29别墅 现代 新中式
客服
消息
收藏
下载
最近


















