查看完整案例

收藏

下载
设计团队:间外建筑工作室 , DPD设计
地址:中国广西北海涠洲岛滴水村
主持建筑师:冯国安, 林镇
占地面积:120 平方米
建筑面积:410.0 平方米
基地面积:250 平方米
如果不是一个陌生的邀请,工作室可能没有设计民宿的机会,我更不会知道原来广西有涠洲岛这个地方。在约两年前,收到一位陌生业主的邀请,是一对80后的夫妻因为旅行关系喜欢上涠洲岛,计划在这里做一个民宿。
业主在这里租了一个四层的楼的房子,总面积约四百平方米,这是当地村民自己盖的房子,谈不上设计和美感。岛上由于近年旅游业开始起步,多了许多自建的民宿,但是由于缺乏管理和低廉的投入,所以岛上的建筑质量一般,在道路和公共服务建设上,也是有待改善,除了这些,我们还要面对交通不便利,材料缺乏和人工成本高的挑战。
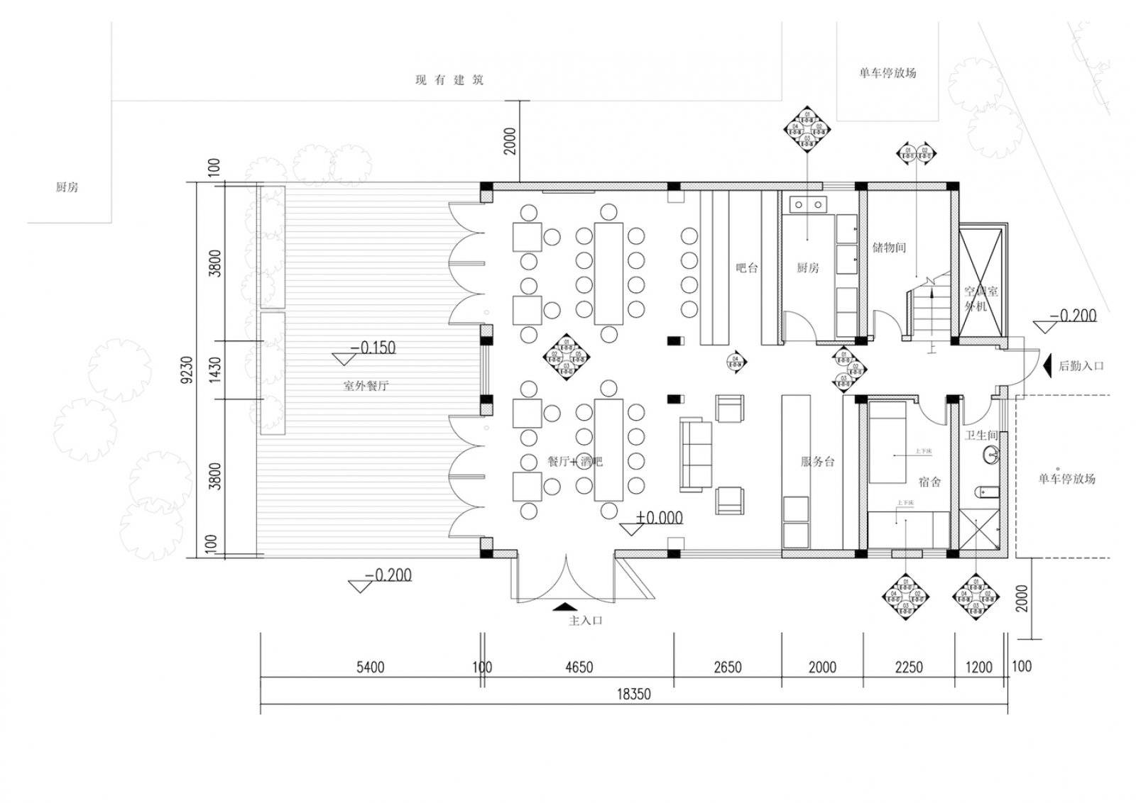
项目的基地为长方形地块,朝西的位置看海,朝东为主要道路,村民的建筑平面约为9米x12米,共4层楼。在空间上,我们重点在于如何处理人和自然的关系,如何在这个原始朴素的村里为游人带来宁静的住宿体验?
在功能分区上,一楼整层是公共空间:接待,餐厅和酒吧,这层楼我们设计成一个开放的空间,入口是落地玻璃门,在天气好或聚会活动时可以完全打开,使庭院和室内空间连为一体。
一楼主要材料为自流平的地面和木制的家具,吊顶的十字光带强调空间的分割使用。
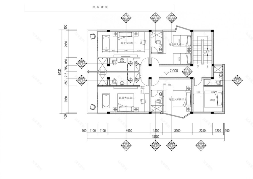
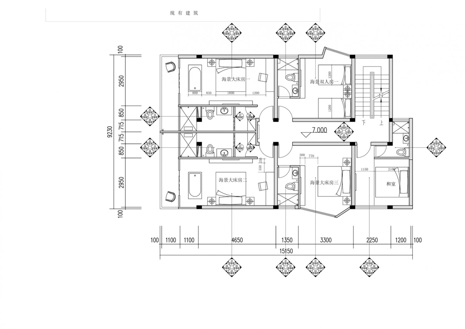
从二到四楼是客房区域,我们总共设计了13间客房,包括有大床房,标准间,亲子间和榻榻米房间,每一房型对应不同的人群。在空间处理上,我们偏向于有家感觉的设计酒店,以纯色墙身和木质家具为主,卫生间材料为黑和白色方形马赛克。
在平面布局上,也考虑到和海景的关系,例如朝海的房间卫生间变成狭长型的布局,在使用时也可以看到室外风景;建筑侧面的房间我们加建了三角形的窗台,可以有更好的视野看海景; 四楼的朝海房间设计了露天浴缸,可以享受独一无二的星空。
我们希望青骊不只是一个民宿,更是一个重新认识人与自然关系的场所。
民宿 酒店 现代 简约
客服
消息
收藏
下载
最近


















