查看完整案例

收藏

下载
位置Location: 台北市仁爱路 Taipei Ren-Ai Rd.
面积 Size: 70 坪/Pings(230平方米 sqm)
主要材料”柚木、金属、清水混凝土、磨石子、石材、磐多魔
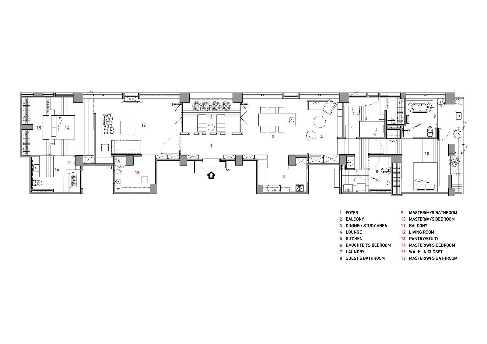
停泊林荫 - 仁爱W+E宅
一个线形的基地,有着三十三米的仁爱路窗景,
东边的女主人, 西边的男主人,
各有其独立生活起居空间, 亦有可分享之空间单元,
东边有客厅, 西边有餐厅厨房
不同的造型样式材质纹理喜好,分别呈现在各自的空间内,
却又要融入一个大空间, 形成对话关系
中间是个内缩可开閤的阳台, 是串联东西室内外的桥梁,
呼吸来自仁爱路林荫的芬多精,
何俊宏 仁愛W+E宅 现代 新中式
客服
消息
收藏
下载
最近


































































