查看完整案例

收藏

下载
© Stijn Bollaert
(Stijn Bollaert)
架构师提供的文本描述。在根特的圣利文斯波尔特照管和教育场地上,一座新哥特式修道院被翻新,重新装修,并扩建成一所新的学校,供有听力、言语和自闭症等问题的儿童就读。纪念性综合体在整个遗址形成了一种新的、清晰的循环模式中的一种元素。
Text description provided by the architects. On the site for care and education Sint-Lievenspoort in Ghent a neo-gothic cloister becomes refurbished, restaured and expanded as a new school for children with conditions concerning hearing, speech and autism. The monumental complex becomes an element in a new clear pattern of circulation throughout the site.
© Stijn Bollaert
(Stijn Bollaert)
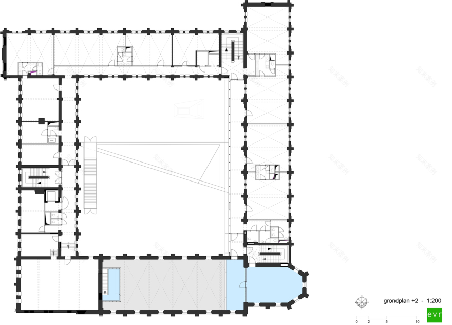
这些年来,已经失去了很多吸引力的现有建筑得到了一次新的改造,空间质量得到了恢复。又一次有了充足的光和空气。内部庭院中的一个非定性的附加物被移除,以便为孩子们腾出一个绿色会议室和一个多功能空间,上面有一个屋顶露台。新增加的内容有助于实现学校的人的规模、方向和身份。这个地区变得更加自然和绿色。
The existing building that has lost a lot of its attractiveness throughout the years gets a fresh overhaul in which the spatial qualities get restored. There’s once again an abundance of light and air. A non-qualitative addition in the inner courtyard is being removed to make place for a green meeting room and a multifunctional space with a roofterrace on top for the children. The new additions serve to realise human scale, orientation and identity for the school. The area becomes more natural and green.
© Stijn Bollaert
(Stijn Bollaert)
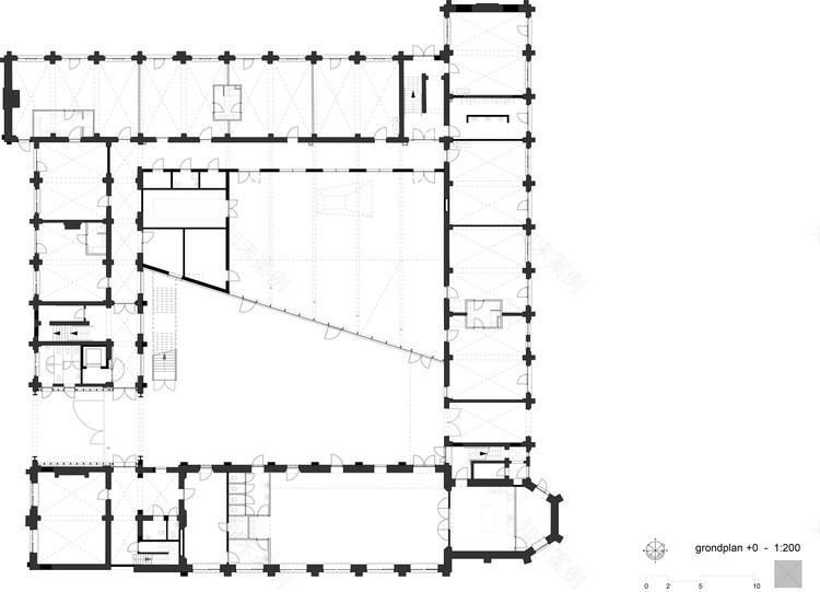
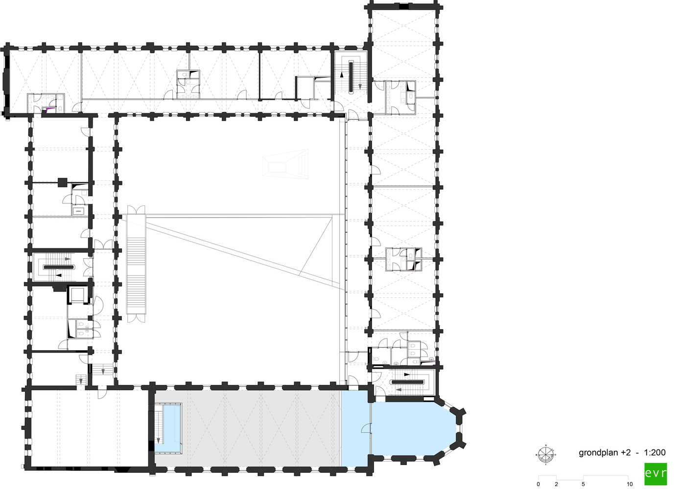
Ground Floor Plan
© Stijn Bollaert
(Stijn Bollaert)
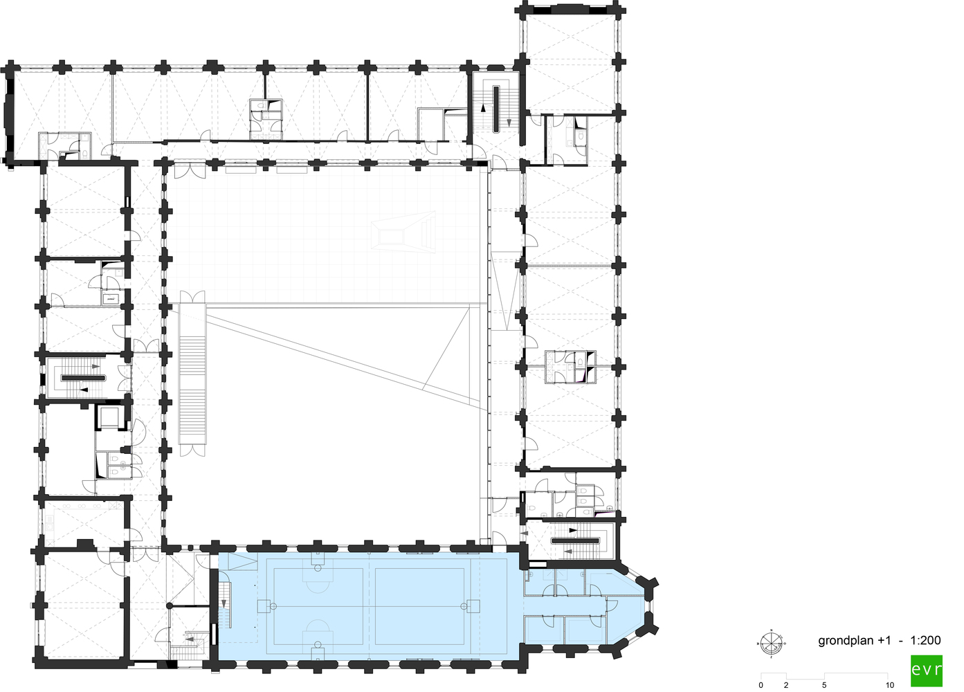
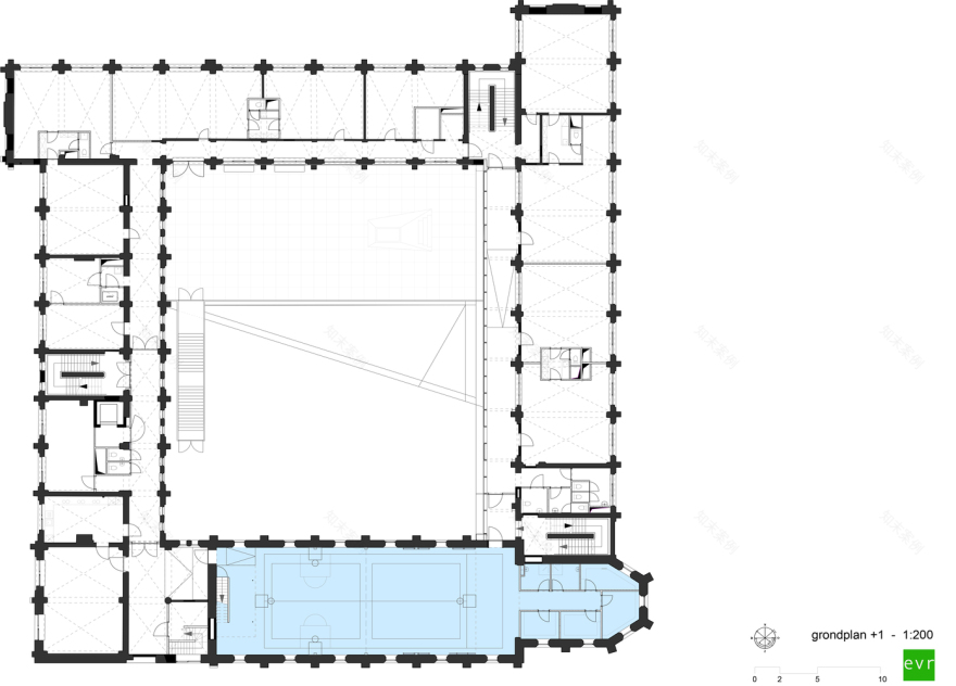
历史上的走廊被翻新了。这些走廊周围都是功能齐全、灵活和宽敞的教室。此外,第一层和第二层的一个新通道将作为一个双层皮肤在建筑物外面增加。这篇文章加强了室内和庭院之间的视觉和物理关系。这个历史悠久的礼拜堂被改建成一个健身房,有更衣室,有健身房老师的办公室,还有一个在教堂唱诗班里放松的房间。
The historical hallways get renovated. Around these hallways are functional, flexible and spacious classrooms. In addition a new passage on the first and second level gets added as a double skin outside the building. This passage reinforces the visual and physical relationship between the interiors and the courtyard. The historical chapel gets reclaimed as a gym with changing rooms, an office for the gymteachers and a room for relaxation in the choir of the church.
Isometric Site Plan
等距立地图
翻修在可持续性方面也是独一无二的。地板,窗户,屋顶都被隔热了。也有机械通风与热交换,以尽量减少热损失。在材料效率方面,尽可能多的现有材料在工程中被重复使用.大部分卫生用水是通过雨水调理而来的.
The renovation is also unique in the sense of sustainability. The floors, windows, roofs get insulated. There’s also mechanical ventilation with a heat exchange to minimize heat losses. In terms of material-efficiency, as much of the existing materials as possible got reused in the project. Most of the sanitary water comes by way of rainwater-recuperation.
© Stijn Bollaert
(Stijn Bollaert)
Architects Callebaut Architecten, evr-Architecten
Location Sint-Lievenspoortstraat, Ghent, Belgium
Category Refurbishment
Area 6000.0 m2
Project Year 2016
Photographs Stijn Bollaert
Manufacturers Loading...
客服
消息
收藏
下载
最近










































