查看完整案例

收藏

下载
项目面积:98平米
设计单位:黄译室内建筑设计工作室
主要材料:橡木木皮、城堡灰砖、灰镜、灰玻、细花白大理石、金属马赛克、实木地板等
序:“初 相”— —2010年设计,2014年业主入住四年后我回到现场,和摄影师一起还原“初相”。入住四年的家,让设计师自己喷然心动。
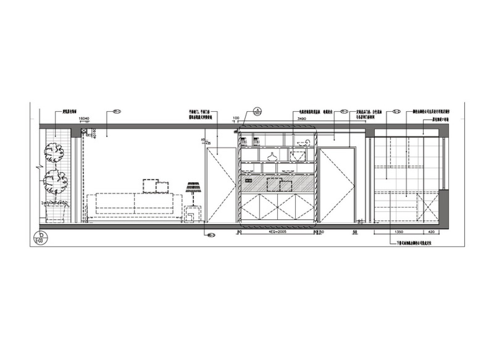
业主特别强调需注重空间舒适的感觉,低调、古朴、低彩度、重质感等需求,屋主希望回到家之后,能享受自然休闲的度假风。计师运用通透或开放的材质成就介面,让空间感得以延续,视野可以无限宽广。为了营造温馨舒适的氛围,材质及家私的色系上选购以较具暖色彩度或中性色调调性为主,以低彩度的材质呈现材料本身的表情。厅堂铺以城堡灰地砖,雾面平光的质感,立面橡木皮的自然纹理和大胆的留白视觉,让自然意象成为主景。
大开面的设计让小空间有舒适的张力,功能在配置在形体上与建筑本体充分契合,让空间的基本面充分展露。我们把空间作为业主生活的一个素材载体,以简洁俐落的直线条贯穿始终,强调穿透的层次感,使在视觉上达到一致性,再通过对中式符号优雅的处理和表达,将自然意向融入居室,繁杂的心绪不知不觉被收拢安抚,释放轻松悠然的生活节奏。
我们是为了享受豪宅而去设计,而是为了让主人享受生活。
住宅 舒适 黄译 低彩度 木质 度假 中性
客服
消息
收藏
下载
最近






















