查看完整案例

收藏

下载
© Adrien Williams
阿德里安·威廉姆斯
两姐妹
TWO SISTERS & THE RURAL LANDSCAPE Located on the shores of Lake Memphremagog in the Eastern Townships, the House of the lake is a secondary residence designed for two sisters who are native to the region, and currently oscillate between Montreal and Magog. Rapidly, the two clients who love music, nature and the land expressed their desire for a home with an open living area, where gastronomy and good dishes are prepared in direct relation to nature and the lake. At the heart of the space thus settle the three strong and unifying elements of the project: the kitchen, the dining table and the piano.
就像孟菲斯马戈奇的风景一样,这座房子是以开放为心态,没有物理界限的。建筑的起点是直接的景观,环境的美景。巨大的农田和山谷,其唯一的视觉限制是栅栏和石墙,延伸到地平线,并再次向其他山区的景观开放。
Like Memphremagog`s landscape, the house is built with openness as a mindset, without physical boundaries. The starting point for the architecture is that of the immediate landscape; the scenic beauty of the surroundings. Large agricultural lands and valleys, whose only visual limits are fences and stone walls, extending to the horizon and opening again to other mountainous landscapes.
© Adrien Williams
阿德里安·威廉姆斯
在遗址的中心,栅栏被重新定义为一个连续的木带。从地面上,木带上升和包围居住空间,通过调整房子的开口。水平洞口定义了自然和湖泊的全景。对景观的体验是多种多样的。尽管不断变化的观点,简约和体积的房子组织是基于这个简单的锚地到现场。
Located in the center of the site, the fence is redefined as a continuous wood band. From the ground, the wood band rises and envelops the living spaces by modulating the openings of the house. The horizontal openings define panoramic views of nature and the lake. Experiences with the landscape are many and varied. And despite the changing views, simplicity and volumetric organization of the house are based on this simple anchorage to the site.
© Adrien Williams
阿德里安·威廉姆斯
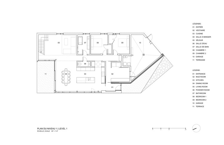
Ground Floor Plan
© Adrien Williams
阿德里安·威廉姆斯
房子很自然地就会对当地的景观产生这样的看法,除了在这里使用栅栏的界限来定义空间,通过将景观的实质集中在它的中心,从而为这个项目创造了一个地方。东乡乡土类型学、木制农舍建筑和可持续的土石建筑,被重新诠释为在景观上慷慨开放的现代房屋。
The house naturally takes up this idea of the local landscape so often panoramic, except that the limits of a fence are used here to define the space, creating a place for the program by trapping the substance of landscape in its center. Vernacular typology of the Eastern Townships, the wooden farm buildings and sustainable construction made of field stone, is reinterpreted to define the modern house that is generously opened on the landscape.
© Adrien Williams
阿德里安·威廉姆斯
该住所打算从该地点的南部接洽。到达后,从东向西延伸的重叠水平带突出了木围的概念。铁杉镶板从一个半透明的物质,隐藏在入口处的内部庭院,变成一个更传统的不透明信封。大的水平窗户反映了周围的自然和附近的湖泊。
CONTEXT The residence is intended to be approached from the south of the site. Upon arrival, the overlapping horizontal bands that extend from East to West highlight the concept of the wooden enclosure. The hemlock paneling shifts from a semi-transparent substance, hiding the inner courtyard at the entrance of the house, to a more conventional opaque envelope. Large horizontal windows reflect the surrounding nature and the nearby lake.
© Adrien Williams
阿德里安·威廉姆斯
由此产生的木质物体被固定在地面上的混凝土质量,保存铁杉的痕迹,如化石木材。在西侧,一个遮阳的门廊朝向湖上日落的景色,而东部的车库/车间则包括房子的技术空间,有助于确定室内庭院,这是避风挡雨,充当第二梯田。与轻木铁杉不同,房屋两端的石质牢固地将建筑物固定在地面上,让人联想到包裹着岩石的树根。
The resulting wooden object is solidly anchored to the ground by a concrete mass that conserves the traces of the hemlock, like fossilized wood. On the western side, a screened porch is oriented towards the view of the sunsets over the lake, while the eastern garage/workshop includes the technical spaces of the house and contributes to defining the interior courtyard, which is sheltered from the wind and acts as a secondary terrace. In contrast to the light wood hemlock, the stone mass at both ends of the house firmly anchors the building to the ground, reminiscent of tree roots that envelope rock masses.
© Adrien Williams
阿德里安·威廉姆斯
平衡,物质性和重用客户,厌倦了积累多余的商品,显示了他们的愿望回到一个平衡的生活方式,简单的技术和材料,几乎不需要维护。因此,房子的特点是减少了脚印,缺乏一个复杂的机械系统和它的乡土风格。
BALANCE, MATERIALITY AND REUSE The clients, tired of accumulating superfluous goods, demonstrated their desire to return to a balanced lifestyle, simple technologies, and materials requiring little maintenance. Thus, the house is distinguished by a reduced footprint, the absence of a complex mechanical system and its vernacular approach.
© Adrien Williams
阿德里安·威廉姆斯
住宅内没有安装传统的暖通空调系统。只有提出被动原则,以确保适当的通风和太阳能增益控制。为了减少夏季的热量增加,如果木带有时起到防晒霜的作用,有时用作结构墙或半透明的防晒霜,则在浮雕上会有变化。结合一个信封和玻璃与特殊的绝缘,自然通风通过南北和屋顶悬垂仔细定位,根据日光,确保居住者的舒适。
No traditional HVAC system is installed in the residence. Only passive principles are proposed to ensure proper ventilation and solar gain control. To minimize heat gain in the summer, variations in relief if the wood band sometimes act as a sunscreen or sometimes as a structural wall or semi-transparent screen. Combined with an envelope and glazing with exceptional insulation, natural ventilation through North-South and roof overhangs carefully oriented according to daylight ensure occupant comfort.
© Adrien Williams
阿德里安·威廉姆斯
当地的铁杉木材,是住宅的主要材料,是自然的,随着时间的推移,会长出灰色的薄片。房子将慢慢开始融入自然环境,完美地融入已经居住在该地点的树木。当地材料的使用,如构成内置家具和中央楼梯的再生谷仓板,提供了与农村建筑的直接联系,这证明了它们的寿命和耐久性。从周围的土墙中回收,抛光的石地铺路覆盖了整个地面,并起到热质量的作用。所选材料的舒适、简单和温暖,有利于营造居住者所希望的家庭氛围,并微妙地伴随着厨房里炖着的糖馅饼的香味!
The local hemlock wood which is the main material of the residence is left natural and will gain a gray patina over time. The house will slowly begin to blend in with the natural environment, fitting perfectly into the trees that already inhabit the site. The use of local materials, such as reclaimed barn boards that make up the built-in furniture and the central staircase, provide a direct link to rural buildings that are proof of longevity and durability. Recycled from the agrarian walls of the surroundings, the polished stone floor paving covers the entire ground level and acts as thermal mass. The comfort, simplicity and warmth of the materials chosen are conducive to the family atmosphere desired by the dwellers and subtly accompany the aromas of sugar tarts that simmer in the kitchen!
Architects ACDF Architecture
Location Magog, Canada
Category Houses
Lead Architects Maxime-Alexis Frappier, Martin Champagne, Christelle Montreuil Jeanpois, Clothilde Caillé-Lévesque, Maxime Boisselle, Maxime Boily
Area 360.0 m2
Project Year 2016
Photographs Adrien Williams
客服
消息
收藏
下载
最近




















