查看完整案例

收藏

下载
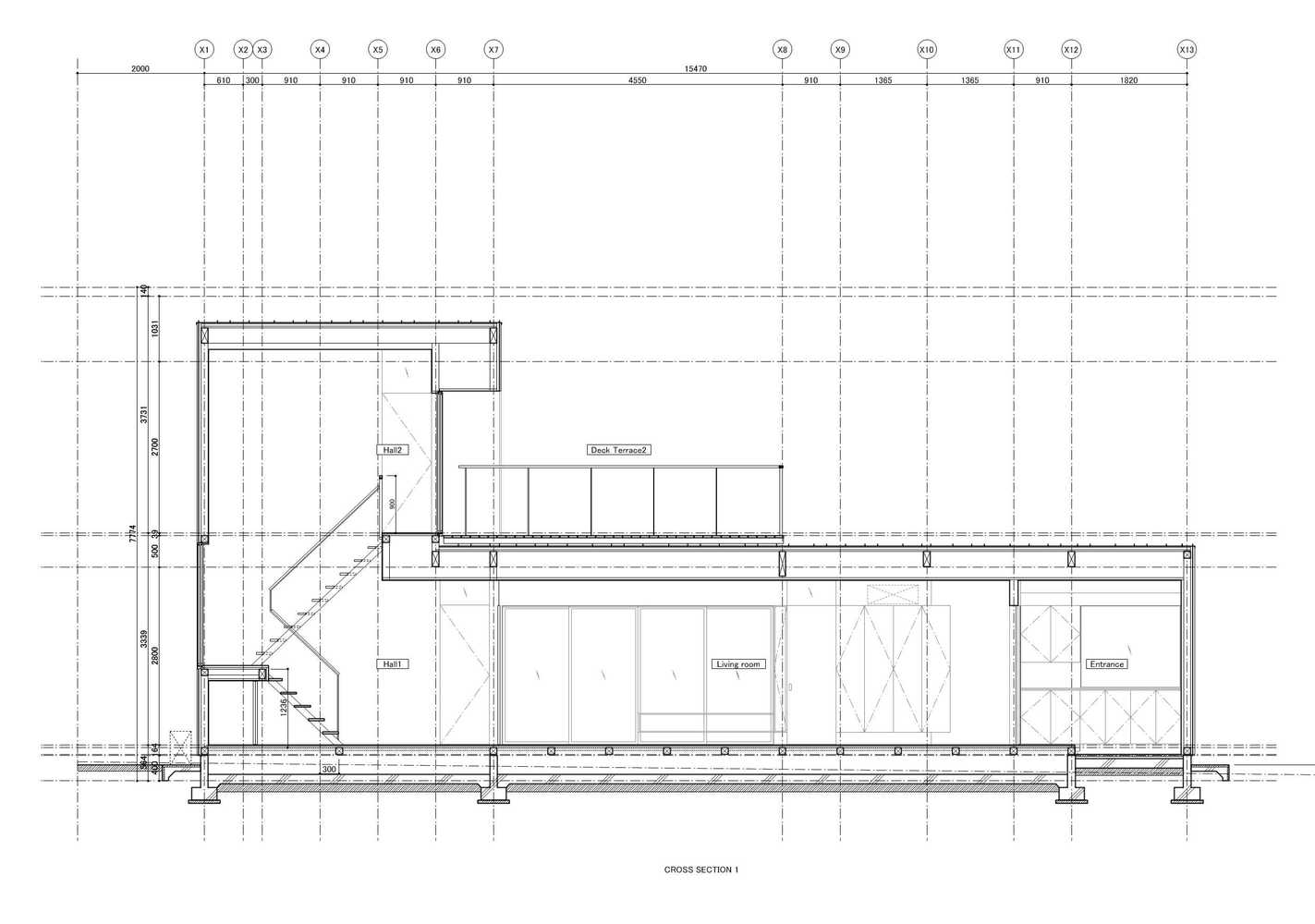
架构师提供的文本描述。这是一项针对长期居住在这一地区的家庭的重建项目。沙漏是位于日本冈马的一座房子。在这片土地的南面有一片稻田,在北方有一片树木茂密的森林。我们把重点放在风景上,目的是充分利用光和风。我们提出了一个高透明度的空间,通过夹在公共空间,如客厅与玻璃。大自然通过庭院进入,甚至在主卧室周围,北侧的水也是如此。
Text description provided by the architects. This is a rebuilding project for families who have been living in this area for a long time. Hourglass is a house located in Gunma, Japan. On the south of the site there is a rice field spreading, and in the north there is a forest with lots of trees. We put emphasis to the scenery and aimed for passing light and wind abundantly. We proposed a space with high transparency by sandwiching the public space such as living room with glass. Nature is taken in through the courtyard even around the main bedroom and the water arranged on the north side.
© Kai Nakamura
(C)中村凯
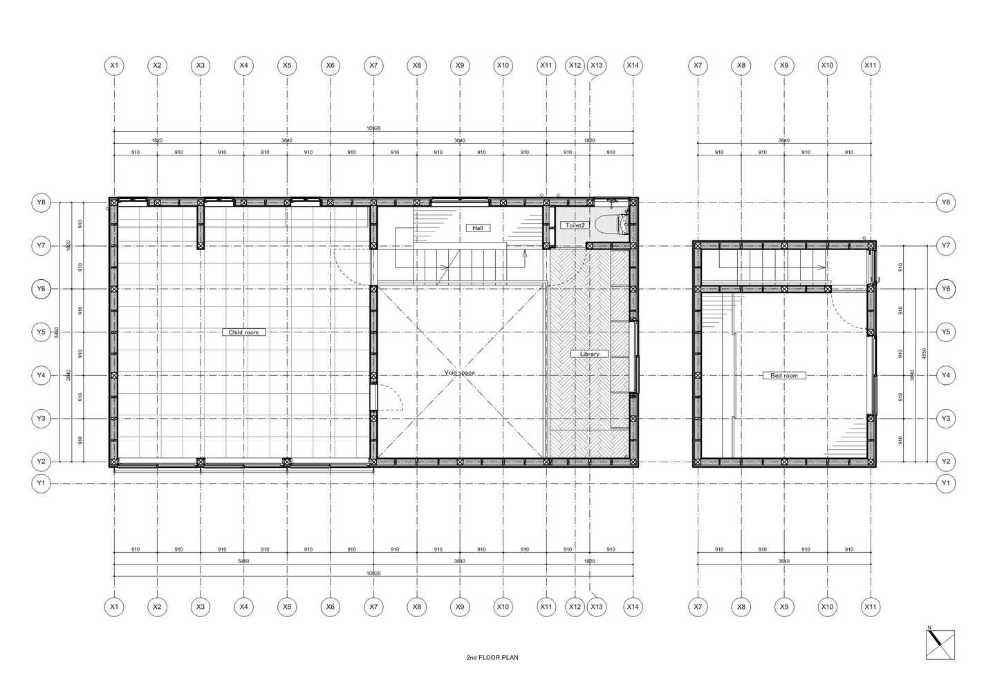
父母的生活在一楼完成,因为二楼只有两个孩子的房间,就像一个单层的房子,包括一个客房。由于表面是用玻璃或金属包裹的,它有效地将木材内部和外部的涂饰点涂上,产生了一种柔软的气氛。对于家庭来说,它已经变成了一个完全不同的住所,但也许我们可以提出一项只能在这里进行的建设。
The parent's living is completed on the 1st floor because the 2nd floor is only 2 children rooms, which is like single story house including a guest room. Because the exterior is wrapped in glass or metal, it effectively applied wood finishing spots inside and outside to produce a soft atmosphere. For the family, it has become a completely different residence, but maybe we could propose a construction that can only be done here.
© Kai Nakamura
(C)中村凯
Ground Floor Plan
© Kai Nakamura
(C)中村凯
Architects studioLOOP
Location Japan
Category Houses
Area 144.0 m2
Project Year 2014
Photographs Kai Nakamura
Manufacturers Loading...
客服
消息
收藏
下载
最近














































