查看完整案例

收藏

下载
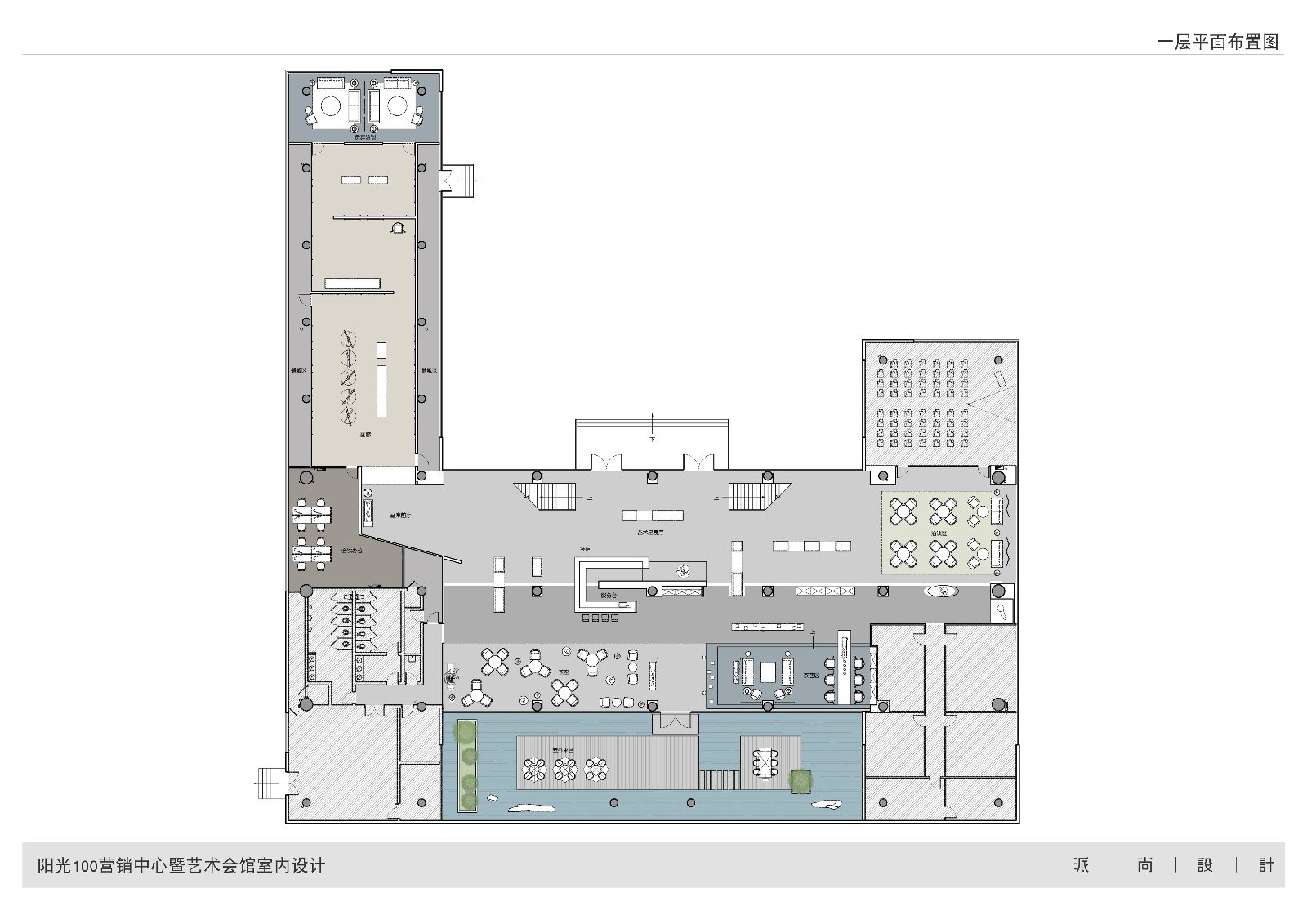
项目名称:济南阳光一百艺术馆
设计机构:深圳市派尚环境艺术设计有限公司
客户名称:济南阳光一百房地产开发有限公司
项目地址:山东. 济南
设计面积:2888 ㎡
本项目有着艺术品展出和售楼的双重功能需求,如何打造一个“艺术馆里的售楼处”是我们设计的切入点。我们希望藉由良好的艺术氛围来提升售楼处的空间内涵,给项目注入丰富的人文素养和艺术感染力,从而提升项目的整体品质,营造出符合项目发展需求的全新形象。
深圳市派尚环境艺术设计有限公司
SIID深圳市室内建筑设计行业协会 副会长
CIID深圳专业委员会委员
深圳室内设计师协会 常务理事
清华珠江投融资同学会理事
毕业于大连理工大学建筑系,米兰理工大学设计管理硕士。
建筑师出身,后专注于会所、售楼处、商业空间、别墅、样板房等专业室内设计和陈设设计领域,并带领团队执行的室内设计项目多次获得“APSDA 亚太室内设计大奖赛”,“CIID学会奖”,“CIDA中国室内设计大奖”等各类专业奖项。
新中式 水墨画 多功能空间
客服
消息
收藏
下载
最近
















