查看完整案例

收藏

下载
Courtesy of Espiral
埃斯洛
架构师提供的文本描述。该项目位于华斯科河谷的卡门。浸没在安第斯山脉中,在一个与山丘的广袤和卡门河中山谷的绿色形成鲜明对比的地区。
Text description provided by the architects. The project is located in Alto del Carmen, Huasco Valley. Immersed in the Andes chain, in an area contrasted by the arity of its hills, and the green of the valley in the Carmen River.
设计很大程度上受气候和景观的影响,这些主题使我们能够思考设计的物质性、结构、空间性和氛围。
The design was heavily influenced by the climate and the landscape; topics that allow us to think about materiality, structure, spatiality and atmospheres of the design.
Courtesy of Espiral
埃斯洛
预计将有一个明确和绝对的数量。采用当地现有的颜色和纹理。华斯科石被用作身份的元素,以适应这个地方的山地景观。
A clear and absolute volume was projected. Adopting the colors and textures existing in the place. The Huasco Stone was used as an element of identity, adapting to the mountainous landscape of the place.
这座建筑的基础是城市提供空间和景观的理念,无论是山谷还是山脉,都能创造出一种向中心传递新秩序的空间。Consistence建筑被插入到城市地块中,成为市民路线的一部分,而中庭作为城市中心的另一个公共空间被整合在这个系统中。
The building is based on the idea of an urban offer of spaces and views; both to the valley and the mountains; Capable of creates a spatiality that communicates a new order to the center. The consistorial building is inserted in the urban plot, becoming part of the citizen´s route while the atrium is integrated in this system as another public space in the urban center.
Courtesy of Espiral
埃斯洛
在新的市政厅和教堂之间的关系的照顾,使两个更重要的图标,以巩固主广场,并产生一个前所未有的地方,市民的会议。
The care in the relationship between the new town hall and the church allows the two more important icons to consolidate the main square and generate an unprecedented place for the citizen´s meeting.
Courtesy of Espiral
埃斯洛
Perspective Section
透视科
Courtesy of Espiral
埃斯洛
“墙”的思想被用作建筑的结构元素,它吸收了乡土建筑。这个想法由五个垂直墙组成,两对称,第五对构成髌骨,表达了建筑的公私关系。这一系列的墙壁,构成了一个很深的卷整个网站。由于厚度和石质的重要性而受到密封和太阳辐射的保护,阴影、光线和半影的内部被细而有控制的开口撕裂。这一系列的墙壁和空间,功能上安排了建筑的两个半球:一个是建筑程序的发展,另一个是连接着教堂和广场的三个高度的大公共中庭。
The idea of the wall was worked as the structuring element, picking up the vernacular architecture. This idea is expressed in a series of five vertical walls, arranged in two symmetrical pairs and a fifth one that constitutes a patella, which articulates the public-private relationship of the building. This series of walls, makes up a deep volume throughout the site. Hermetic and protected from solar radiation by the thickness and the stony materiality, and torn by fine and controlled openings for the shadow, the light and the penumbras towards the interior. This series of walls and spaces, functionally order the building in two hemispheres: one where the architectural program is developed and another that articulates a large public atrium of three heights, linked with the church and the square.
Courtesy of Espiral
埃斯洛
中庭组织内部的动力,同时,它实际上延伸到外部。办公大楼被开发成一个开放的空间,可以自由地修改和分配期货。中庭将建筑物的各个层次连接起来,赋予其等级和特征。建筑物的表达方式是友好、开放和参与性的;成为所有人和所有人的建筑。
The atrium organizes the inner dynamics and at the same time it extends virtually to the outside. The office block is developed as an open space with freedom for futures modifications and distributions. The atrium connects the levels to each others of the buildings; Giving it rank and character. The expression of the building is friendly, open and participatory; becoming a building of all and for all.
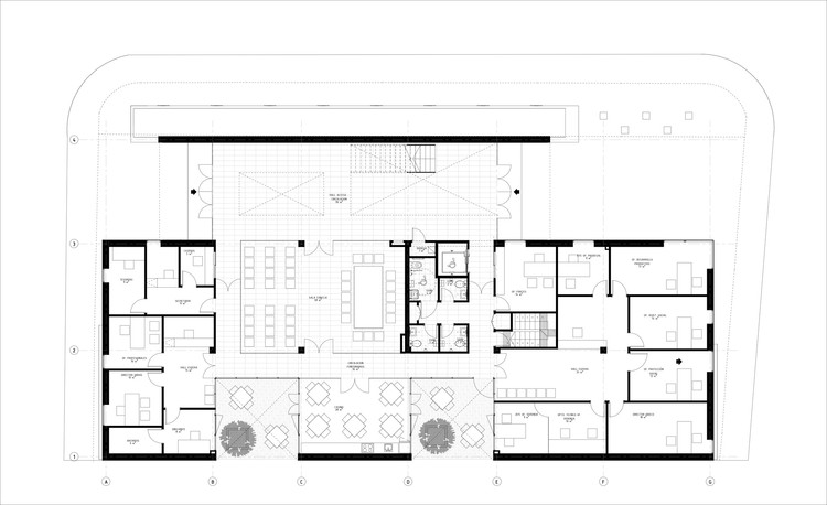
Ground Floor Plan
Courtesy of Espiral
埃斯洛
First Floor Plan
一层平面图
在功能上,循环在一个双重系统中是不同的,它管理通往中庭的公共电路和向内部的专用电路。该项目,是根据公众对各部门主要路线的关注,在每个部门的各个层次上进行排序的。会议室,在第一层,在一个可渗透的中央空间,被纳入中庭和社区。
Functionally, the circulation differs in a double system that manages the public circuit towards the atrium and the private circuit towards the inside. The program, is ordered in each level around each department according to the public attention towards the main route. The council room, on the first level, in a permeable central space, is integrated into the atrium and to the community.
Courtesy of Espiral
埃斯洛
Architects Espiral, Iglesis-Prat Arquitectos
Location Alto del Carmen, Atacama, Chile
Category Town & City Hall
Area 1417.0 m2
Project Year 2017
Manufacturers Loading...
客服
消息
收藏
下载
最近
































