查看完整案例

收藏

下载
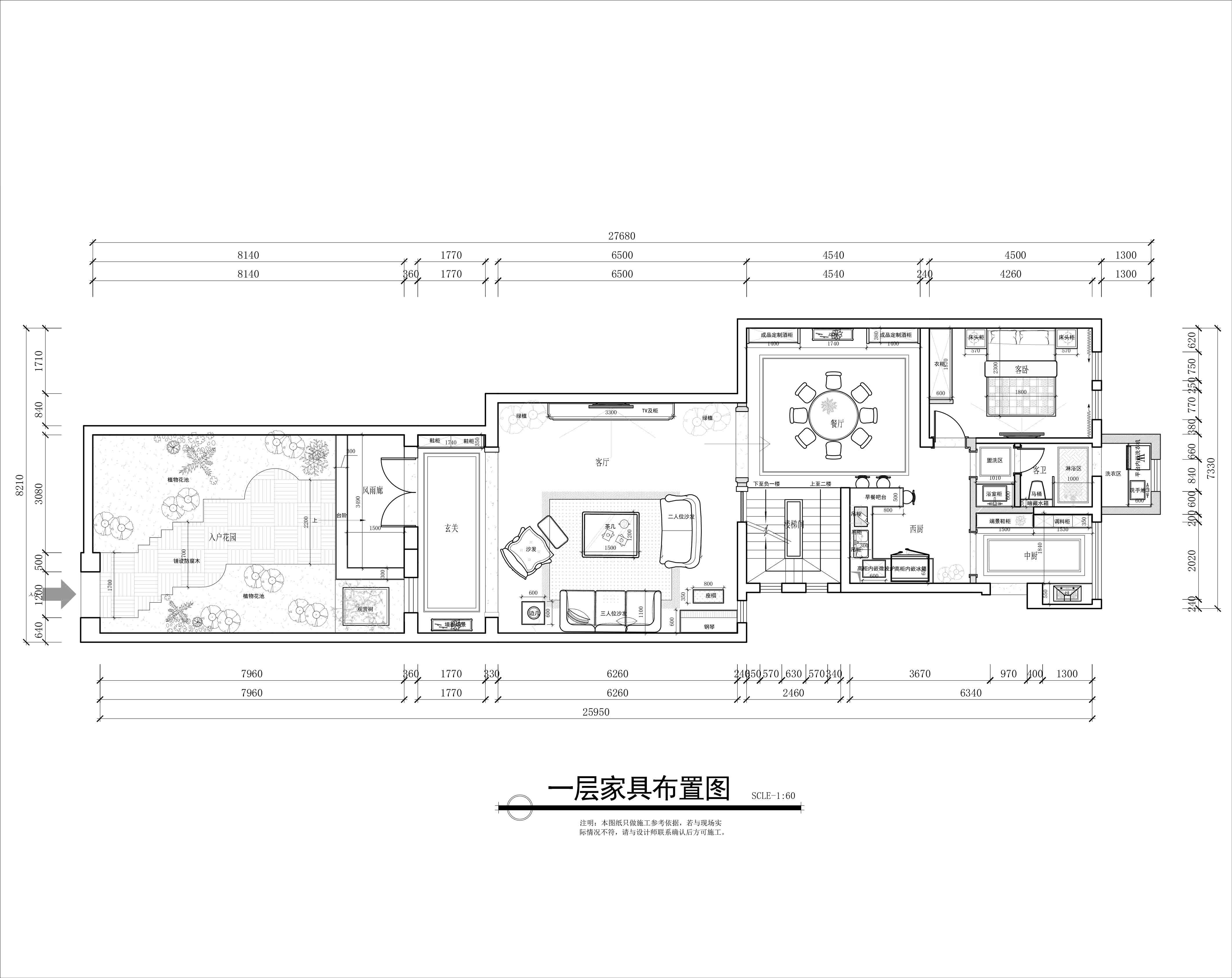
郑州天地湾别墅—美式
项目名称:女性空间
项目地点:河南省郑州市惠济区
项目面积:351
设计机构:SCD墅创国际设计机构
主创设计:朱航乐
设计团队:徐堃 秦经航 黄德宇
设计理念:品质生活。
这是一位非常知性,从容,大方的女士,她的力量散发着自信与光彩,她的力量传递着温暖的情感。这不仅包含着女性本身的力量,更包含着女性本身的力量,女性对男性以及对家庭激励的力量......韩女士(业主)给我这般印象。
此项目的设计灵感来源于韩女士(业主)对生活的精细要求,品味需求最终结合体。色彩是装扮我们空间的主要元素,丰富空间,并调节着居住着的心情
客服
消息
收藏
下载
最近

















