查看完整案例

收藏

下载
© Kyung Roh
(C)卢京生
架构师提供的文本描述。保利的房子是为一对小学适龄儿童建造的。像今天的所有家庭一样,他们有相当多的时间不在家、上学或工作。尽管如此,他们的生活空间形成了一个阶段,每天的生活模式被重复,而这种日常生活是一个不可分割的有机整体。在住宅设计中,共享时间和空间,尊重隐私是矛盾而又必不可少的规则。在这里面,我们总是寻找新的故事,期待小的快乐和偏差,就好像它们本身就是事件一样。
Text description provided by the architects. Poly house was built for a couple with elementary school-age children. Like all families today, they spend a considerable amount of their time away from home, at school or at work. Nonetheless, their living space forms a stage where everyday life patterns are repeated, and this everyday life is an inseparable, organic whole. When designing a dwelling, sharing time and space and respecting privacy are contradictory yet essential rules. Within this, we always seek new stories and look forward to small pleasures and deviations as if they were events in themselves.
保利豪斯提出了一个问题,一个固定的建筑结构如何能够对居住者不断变化的生活的模式和愿望作出反应,并提出了一个答案。这也是一个对理想家园的功能和美学进行新阐释的过程。
Poly house poses the question of how a fixed architectural structure can respond to the patterns and desires of the occupants' constantly changing lives, and suggests an answer. It is also a process that shows a new interpretation of the functions and aesthetics of the ideal home.
© Kyung Roh
(C)卢京生
保利豪斯在个人空间和家庭空间之间存在着不确定的“差距”。这些差距是个人之间和空间之间的差距,是将居住空间与居住者的生活联系起来的可能性。
Poly house has indeterminate “gaps” between personal and family space. These gaps are margins between individuals and between spaces, and are possibilities that connect living space and the lives of occupants.
Concept Diagram 1
概念图1
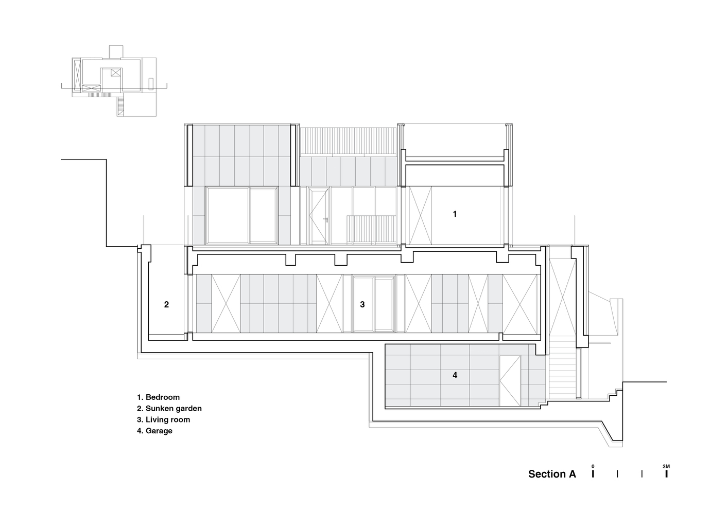
场地的复杂条件,包括入口的位置、最大高度差为6米的坡地、建筑覆盖率仅为20%,为寻找优化设计提供了线索。整个建筑的一半埋在地上,而另一半则在院子的表面上露出来。保利豪斯积极利用矛盾的空间,当内部与外部相遇,或这样的边界是倒置的。这提高了房子内的接触表面,尽量减少了内部和外部之间的视觉隔离。相对于从外部可见的形式的简单性,内部的不规则元素创造了不同的观点。空白和矛盾的空间让用户体验到的不是一个平坦的生活环境,而是一个亲密的生活空间。
© Kyung Roh
(C)卢京生
差距和边缘不仅仅是视觉线和风可以通过的经验空间;它们意味着家庭成员之间的心理距离。整个群体可以大致分为服务空间、家庭空间和个人空间。居住者的生活和家庭成员之间的关系渗透到这些单独的空间中。起居室、厨房、公用室、浴室和内庭院放置在家庭空间中,而线性核心是以走廊形式的循环开放空间。利用厨房、餐厅和客厅之间最小的界限,空间层次根据需要灵活变化。
Gaps and margins are more than spaces of experience through which sight lines and wind can pass; they signify psychological distance between members of the family. The entire mass can broadly be divided into service space, family space and personal space. The lives of the occupants and the relationships between family members permeate these individual spaces as they are. The living room, kitchen, utility room, bathroom and inner courtyard are placed in the family space, while the linear core is a circulatory, open space in the form of a corridor. Use is made of the minimized boundaries between the kitchen, dining room and living room, where spatial hierarchy changes flexibly according to need.
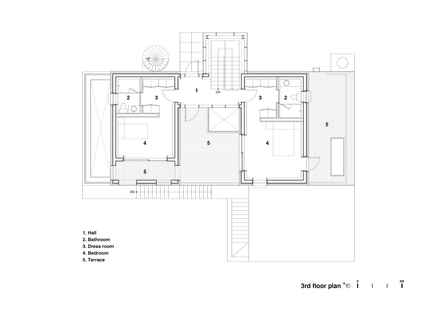
在由私人空间组成的上层空间中,父母的卧室和孩子的区域相互独立地放置,确保了相互的隐私。中间空间,如独立的墙壁和这些空间之间的装饰保持心理隐私。在这里和那里插入的甲板和凹陷空间切断了空间,从而创造,这些差距和中间的空间提供了各种用途和看法。大楼左右两侧的口袋空间和起居室中心的小庭院,使较低的楼层与地面直接接触,增加了本来可能不够的通风和照明。前面的外楼梯和后院的螺旋楼梯提供了建筑、场地和屋顶空间之间的三维连接。
© Kyung Roh
(C)卢京生
Roof Floor Plan
屋顶平面图
© Kyung Roh
(C)卢京生
从外面看,保利房屋是一个坚实的,方形的质量,但在内部,它是由薄薄的层。它的各种高度、开口和循环线就像一块海绵。光和空气畅通无阻,而多孔建筑,灵活的边界,提供了一个新的选择,单调的公寓和其他居住空间。周围的环境和生活被投射到空间中,这样房子就会堆积整齐的层层人和风景,就像一个框架。
From the outside, Poly house is a solid, square mass, but on the inside it consists of thin layers. Its various elevations, openings and lines of circulation are like a sponge. Light and air flow unimpeded, while the porous architecture, with flexible boundaries, offers a new alternative to monotonous apartments and other living spaces. The surrounding environment and lives are projected into the space, so that the house will accumulate neat layers of people and scenery like a frame.
© Kyung Roh
(C)卢京生
Architects Farming Architecture
Location Kyunggi, South Korea
Category Houses
Architects in Charge Jangwon Choi, Sunghyun Ahn, Yeongyeong Hong
Area 252.56 m2
Project Year 2017
Photographs Kyung Roh
Manufacturers Loading...
客服
消息
收藏
下载
最近
































