查看完整案例

收藏

下载
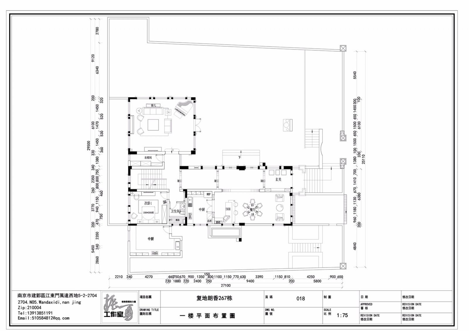
项目概况 地址:南京市江宁区复地朗香267栋 户型:独栋别墅 面积:530平米 风格:美式 总造价:450万
设计师:冯振勇 主要用材说明:美国红樱桃原木。精工玉石、圣罗兰、橙皮红、路易十三天然大理石、实木多层地板、艺术涂料、石膏线条、白色乳胶漆。
设计说明:“传承式居所”这就是我喜欢拿来定位独栋别墅的词汇之一,前几天突然出现一句流行的网络语,“主要看气质”接着大家突然疯狂造句几天。我对每一个作品的定位除了使用功能之外最重要的真的也是要看气质,“功能为首,气场为上”现在应该说“气质为上”了,这一直是我们对住宅空间的一种理解。
理念解析:本案地理位置在牛首山附近的一个别墅住宅小区,小区依山而建,基本保留了坡地的特色,内环境优美,空气质量比较好,非常适宜长期居住,所以这类房产我们一般建议业主装修时按照可以传承的固定住所来规划。既然定位为传承式居所那就自然应该有一个更为长远的规划设计理念了,在了解到业主的家庭结构后我们一起做了一系列结构改造,在满足业主使用功能的情况下,尽可能让整个空间更有情调一些。下面重点解析几个改动较大的区域。
1、原始户型入户为一个开敞式的大餐厅和厨房,经过从新组合后把两个空间规划为门厅鞋帽区、走廊、餐厅、客厅、厨房以及餐厅休闲区。
2、客厅原户型三面为多个窗户组成,主次分区不太明显。方案修改后封闭了正中间的一组窗户,改为整体的装饰电暖壁炉,作为客厅的主题墙。
3、原结构为三层,但顶楼最高处达到七米左右的高度,我们在不影响主卧室造型吊顶高度的基础上,将一部分区域做了隔层,作出了一层阁楼作为储物空间,大大解决了衣物存放问题。
独栋别墅 美式 奢华 装饰 冯振勇 南京
客服
消息
收藏
下载
最近
































