查看完整案例

收藏

下载
奥德酒店的客房是为短期住宿和假日住房而设计的.完成安装所需的努力不多,工作时间长达8个小时,而且无需任何特别许可即可安装在爱沙尼亚的任何地区。它的单价约为65,000欧元(€),包括定制的爱沙尼亚家具.
在展厅的外部景观中,可以看到反映在小屋上的景观。
在展厅的外部景观中,可以看到反映在小屋上的景观。
在展厅的外部景观中,可以看到反映在小屋上的景观。
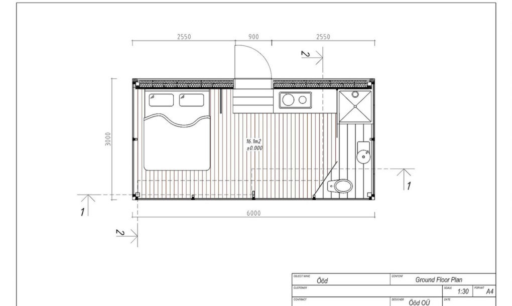
每个单元可以容纳两三人,并且非常适合城市景观和更多的乡村选择。它的内部主要由钢铁、隔热玻璃和经过热处理的木材建造,有卧室、厨房、客厅和浴室。
家庭自动化是内置在地板采暖和LED照明。通过离网解决方案安装因特网连接、水、污水和电力供应,目前正在为未来工作。该结构还设有LG热泵,以提供加热和冷却。
我们推荐这些项目,室内设计,美妙的度假别墅,在山区设计,为那些喜欢享受大自然的房子,美妙的房子,开放空间由建筑公司R79在墨西哥设计。
在展厅的外部景观中,可以看到反映在小屋上的景观。
在画廊室内观看,里面涂有木头,里面有家具。
第一个单元是去年秋天安装的,但该公司计划在接下来的几个月内将业务扩展到国际市场。
从单元内部看外部的图片库视图
廊内可观赏舒适的床景
设计的最有趣的方面是,它允许居住者享受不同的地点,他们可以从舒适和舒适的内部设置的意见。即使这样,它也保留了他们的隐私权,因为外部没有对内部的可见性。
在画廊室内观看,里面涂有木头,里面有家具。
从单元内部看外部的图片库视图
画廊中的视图
在画廊的浴室里可以看到
在画廊室内观看,里面涂有木头,里面有家具。
画廊夜景的外部景观
画廊夜景的外部景观
画廊夜景的外部景观
画廊中的视图
keywords:Bathroom Bedroom Contemporary Interior Design Decorative Accessory Glass Walls Hall and Entrance Landscaping Lighting Rug Staircase Wood Ceilings Wood Floors Wood Walls
关键词:浴室卧室,现代室内设计,装饰附件,玻璃墙,大厅和入口景观,照明,地毯,楼梯,木天花板,木地板,木墙
客服
消息
收藏
下载
最近


















