查看完整案例

收藏

下载
© Kyungsub Shin
c KyungsubShin
架构师提供的文本描述。本项目是针对位于韩国著名代表山-山口的一家餐厅和一家住宅设施相结合的复杂设施而设计的。凯龙。这个遗址位于山的中心。凯龙向四面展开,也展开到360度的韩国美丽山景。该网站的这些特色可以使韩国美丽的山景变得美丽,而这一直是如何将这些景观和它们重建成商业空间的主要设计问题。换句话说,作为一个没有偏离周围风景,而是融入自然的设计,我们打算把这座建筑作为国家公园的一个新的象征。
Text description provided by the architects. This project is designed for the complex facilities combined with a restaurant and the residential facilities which are located at the entrance of a famous Korea representative mountain – Mt. Keryong. This site is located at the heart of Mt. Keryong unfolding to 4 sides and also to be unfolded to 360 degrees of Korea’s beautiful mountain views. Such features of the site could render the beautiful sceneries of a Korea’s beautiful mountain, which has been the main design issues how to put these and rebuild them into a commercial space. In other words, as a design not deviated from the surrounding sceneries but integrated into nature, we intended to compose the architecture as a new symbol of the national park.
© Kyungsub Shin
c KyungsubShin
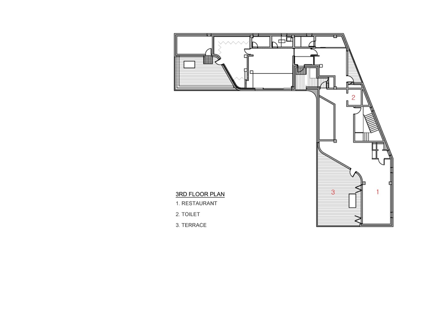
概念:餐厅由三层楼组成,可以从各自的角度单独使用露台空间,向山的每一轴开放。露台是作为一种商业空间的空间,在那里是扩大的地区,餐厅和空间享受外面的看法。餐厅和自助餐厅的区域被指定为跳台楼层类型的位置,游客通过这些区域可以体验到各种不同的景色和空间,每次参观时都会有不同的空间感觉。也就是说,不同房间分配的故事高度和露台位置可能会形成不同的动机,每次游客访问时都会感受到不同的空间。
Concepts The restaurant consisting of 3 floors can secure the terrace space separately used from respective viewpoints, opening to each axle of the mountain. The terrace is designed as a space for a sort of commercial space, where is extended areas for restaurants and the space enjoying the outside views. The areas for a restaurant and a cafeteria was assigned of their locations in type of the skip floor, through which the visitors can experience a variety of views and space feels by room, differently every time they visit. That is, the story-heights and the terrace locations differently assigned by room may form the motives differently feeling the space to the visitors every time they visit.
© Kyungsub Shin
c KyungsubShin
天窗和露台-沿着山的车轴不同设置-将再次通过灯光窗垂直划分-光的光谱,这意味着将室外的灯光吸引到室内,而在较低的区域上进行的活动可以被识别。透过这些工序,空气须由自然通风系统通风,并同时以灯光重建其面积。如果露台水平划分和连接空间,灯光窗口将垂直分割它,并导致灯和空气的流通。
Skylight and Viewing The terrace - set up differently along the axles of the mountain - will be divided again through the light windows vertically the spectrum of lights, which means to attract the outside lights into interior and the activities taking place on the upper floor could be recognized in the lower area. Through such processes, air shall be ventilated by the natural ventilation system and, at the same time, re-built of its area by lights. If the terrace horizontally divides and links the space, the light windows will vertically divide it and cause the circulation of the lights and air.
© Kyungsub Shin
c KyungsubShin
Skylight Detail Sections
天窗细节部分
© Kyungsub Shin
c KyungsubShin
面向墙壁的外部材料是由天然大理石制成的,以便在地理环境中被理解为大自然的一部分。也就是说,黄色的大理石面包被解读为一种自然的象征和岩石的一部分,通过建筑的实现。此外,我们还考虑到商业和住宅设施的特殊能源需求,试图利用地热系统解决能源供应问题。高保温系统和高效率门窗的使用,以及地热能的利用,可以保证其商业活动更加自由的不受供暖成本的影响。
Facing Wall Exterior materials are made of the natural marbles in order to be read as a part of nature in the geographical context. That is, the yellow marble loaf is to be read as a natural symbol and a part of rocks through the architectural realization. In addition, we have tried to resolve the energy supply issues by using the geothermal system in consideration of the special energy demands for the commercial and residential facilities. High thermal insulation system and the use of high efficiency windows and doors, and the geothermal energy use could ensure its commercial activities more freely from the heating costs.
© Kyungsub Shin
c KyungsubShin
Materials Details Axonometric
材料详细轴测
© Kyungsub Shin
c KyungsubShin
Architects JOHO Architecture
Location 1406, Gyeryongdae-ro, Hakbong-ri, Banpo-myeon, Gongju-si, Chungcheongnam-do, South Korea
Category Restaurant
Lead Architect Jeonghoon Lee
Design Team Gaehee Cho, Il-Sang Yoon, Bong-gwi Hong, Junhee Cho, Moonyoung Jeong
Area 1068.0 m2
Project Year 2015
Photographs Kyungsub Shin
Manufacturers Loading...
客服
消息
收藏
下载
最近























