查看完整案例

收藏

下载
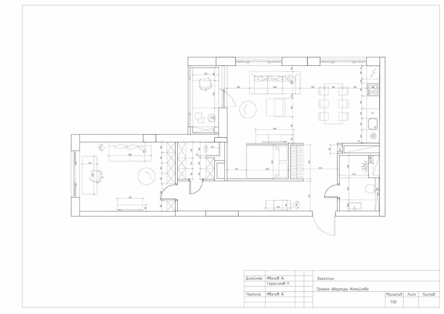
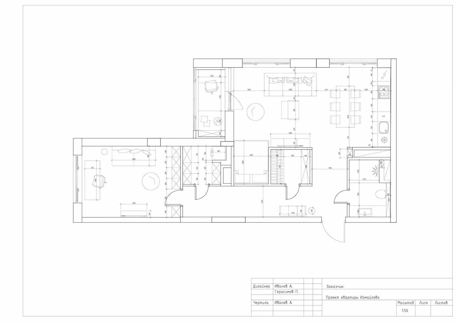
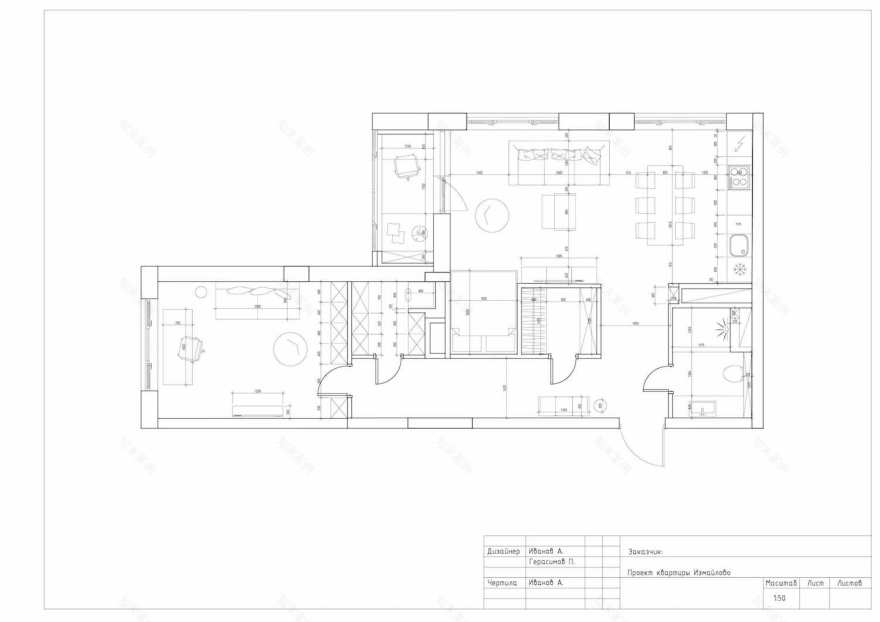
餐桌上有带有拿铁元素的吊灯。在此帮助下,我们强调了内部的地位和昂贵。
我们使用了棕色和灰色的中性复合色调。客厅里有一堵活跃的灰色墙。儿童房间看起来有点时髦,因为使用的是白砖,加上明亮的蓝色和黄色的口音。这个房间是唯一一个我们用鲜艳颜色的房间。
我们使用的是俄罗斯软家具制造商(如8 Marta沙发),以及设计师品牌复制品。独立家具的数量很少:客厅里有扶手椅和沙发,儿童房间里有书桌。主要是所有的家具都是内置的.
Décor和纺织
我们追随时尚潮流,加入拿铁元素。一般来说,所有的家具和照明都是构成室内气候的装饰。在中性单色室内游戏是由绿色植物设置的。
厨房区的墙太奇怪了。我们需要平衡一下,因为放置橱柜时没有问题。从技术上讲,放置木制车床并不容易。为了保证车床的稳定性,我们需要在地板上和天花板上放一些刀片。这个问题我们将与供应商一起解决。
内置的脚板和吊臂门也是难以下咽的药丸。这是一种开箱即用的解决方案,需要在墙壁的点点外进行详细的工作。“
谢谢你阅读这篇文章!
keywords:Geometrium DSGN Moscow Russia
关键词:俄罗斯莫斯科
客服
消息
收藏
下载
最近














