查看完整案例

收藏

下载
将独居房屋改建和翻新为度假屋。
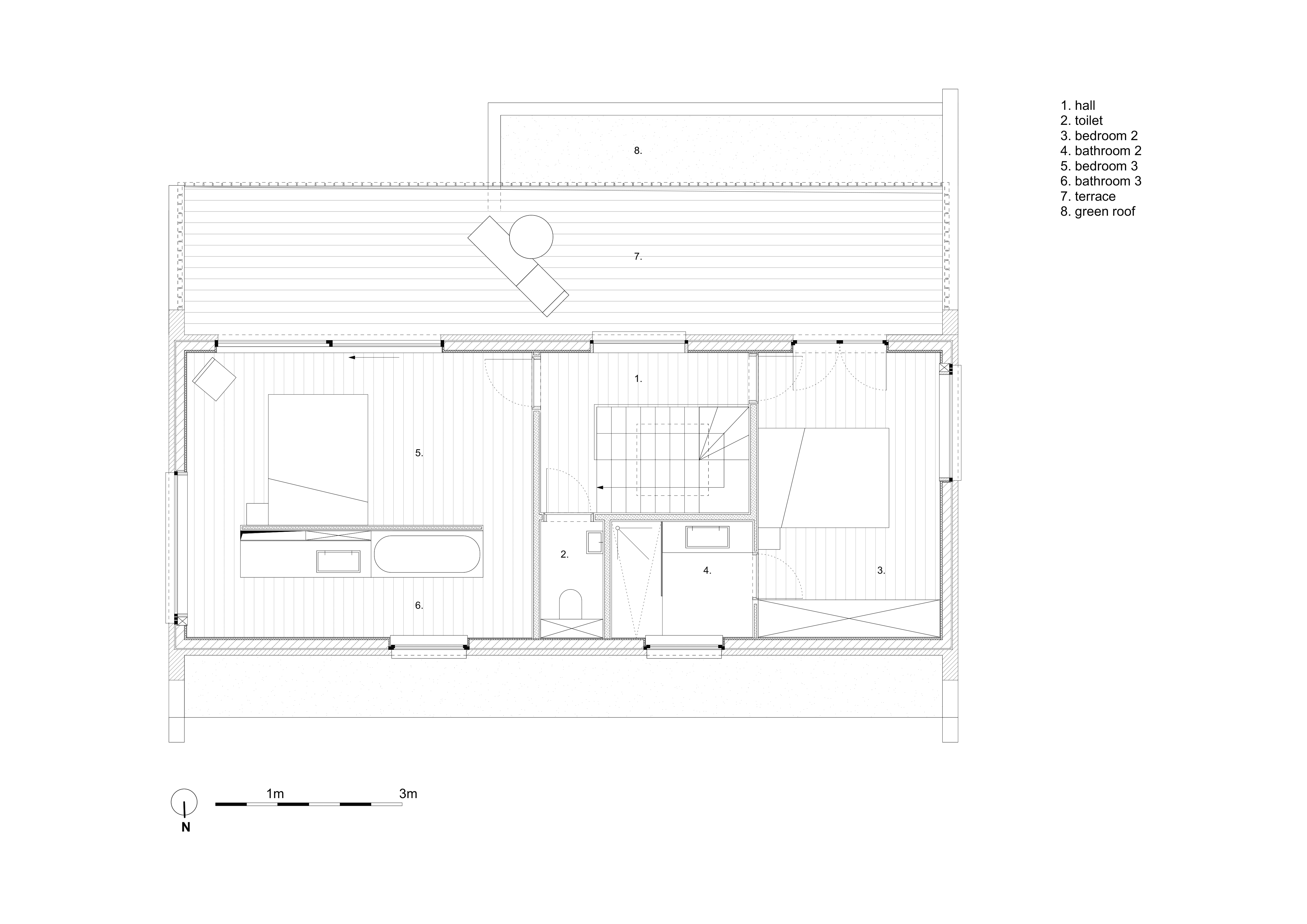
这一设计的核心是客厅和厨房的开放和扩展,同时保持房屋的比例以及建筑物与地形的比例不变。两项干预措施是关键。第一,底层由狭小、分隔和黑暗的空间组成,改造并尽量减少扩展,以扩大与花园的接触(面向南方),并将客厅和厨房改造成一个明亮、开阔的空间。第二,楼梯,作为雕塑的体积,被重新定位从房子的远端到它的心脏。这为上面的新卧室和浴室提供了充足的空间,可通过紧凑型、中央位置的走廊进入。
在细节和材料方面,我们试图唤起一种“度假氛围”:定制的水磨石地板,由白色颗粒和蓝色玻璃碎片组成,与橡木的朴实的感觉结合在一起。类似于一座南部别墅,房子的外部以及室内的大部分都被漆成白色,甚至门门槛都是用白色混凝土来实现的——唯一的例外是蓝色和绿色的色彩鲜艳的浴室。在南侧,在花园和游泳池区域,一个大的滑动窗可以在立面上“消失”,从而将窗台改造成一个座位板,成为室外家具的一部分。
Firm architectenbureau Quisquater
Type Residential › Private House
STATUS Built
YEAR 2015
SIZE 1000 sqft - 3000 sqft
BUDGET $100K - 500K
keywordsarchitecture, architecture news, interiors, interior design, portfolio, spec, brands, marketplace, products A. NPT
关键词建筑、建筑新闻、室内设计、组合、规格、品牌、市场、产品A.NPT
客服
消息
收藏
下载
最近




















