查看完整案例

收藏

下载
架构师提供的文本描述。最初的想法是允许居住者的行为将居住空间雕刻成一块完整的大理石雕塑。主部分看起来如此坚固,但又如此轻盈,它漂浮着以对抗地心引力,而外部景观空间流经中心庭院。残存的大理石碎片落在地上,成为景观特征的一部分,与世隔绝,但在视觉上却如此大胆,因为它们曾经是大理石巨石的一部分。
Text description provided by the architects. The initial idea is to allow habitant’s behavior to carve a dwelling space into a monolithic piece of marble sculpture. The main piece appears so solid, yet so light it floats to defy the gravity, while external landscape space flows underneath through the center courtyard. Residual marble pieces fell onto the ground to become part of the landscape features, isolated, yet visually related so boldly, as they use to be part of the marble boulder.
© Wison Tungthunya
.Wison Tungthunya
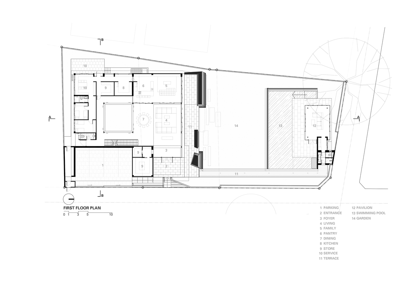
通过移动建筑物的线性和非线性平面,形成了独特的形状、形式和空间的挖掘。大理石屋位于一片长方形地块的一端,对面有一棵巨大而壮丽的雨水树。现代建筑风格的亭子增强了雨树的视觉印象。一个最简单的结构和一个成熟的,自然形成的雨树的对比,在一个反光游泳池表面创造了一个难忘的,标志性的场景为房子。
The excavation of unique shape, form and space is created by shifting the building inear and non-linear planes. The Marble House is placed on one end of a rectangular land plot with a large, magnificent Rain tree on the opposite end. The visual impression of the Rain tree is enhanced by a modern architecture style pavilion. A contrast of the simplest structure and a fully grown, natural-formed Rain tree, over a reflective swimming pool surface create a memorable, signature scene for the house.
© Wison Tungthunya
.Wison Tungthunya
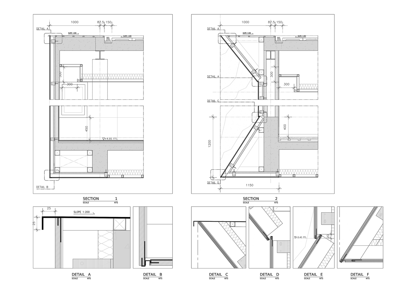
大理石饰面实际上是一种大比例尺,重量轻,墙砖上印有大理石图案.由于在一层内部砖墙上涂上了外部饰面,它还起到了天气包层的作用,遮挡了房屋的直射阳光,以及曼谷夏季的外部热,因此有助于白天的室内降温。
Marble finishes is, in fact, a large scale, light-weight, wall tiles with marble pattern print. As an external finishes applied over a layer of internal brick wall, it also acts as weather cladding, shielding the house from direct Sunlight, and external heat of Bangkok summer, and therefore help to cool down the interior during the day.
© Wison Tungthunya
.Wison Tungthunya
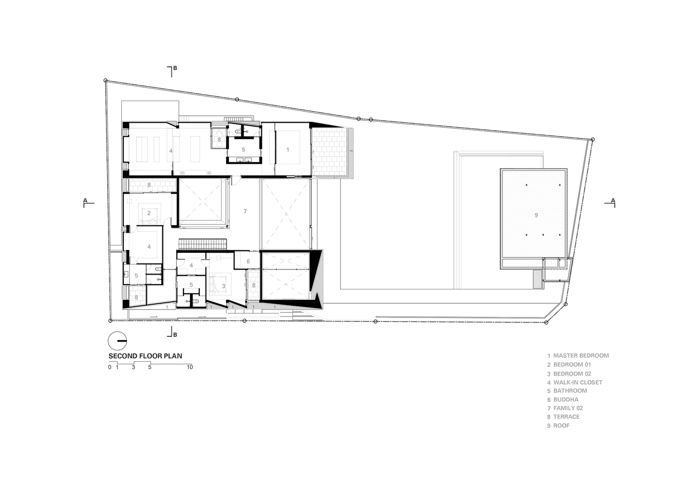
建筑与景观之间的关系在任何地方都很微妙地显示出来。整个正方形的形状围绕着中心的敞开的庭院,允许自然光和通风到达所有的拆卸角落。中心庭院里的竹子移动,并有各种方法来创造风的存在。
Relationship between architecture and landscape is subtly displayed everywhere. The overall square shaped form surrounds an open courtyard in the center, allowing natural light and ventilation to reach all remotest corners. Bamboo in the center courtyard moves and sways to create the presence of the wind.
© Wison Tungthunya
.Wison Tungthunya
© Wison Tungthunya
.Wison Tungthunya
“私人阳台”这个概念对于被邻居包围的城市住宅非常有用。封闭的开放露台的口袋创造了隐私,但仍然欢迎自然光和通风。上面的空隙成为一个伟大的特征,作为建筑师给出的术语,“私人天空”。
The concept “private balconies” are very useful for an urban residence, surrounded by neighbors. Pockets of enclosed open terraces create privacy, but still welcome natural light and ventilation. The void above such area becomes a great feature, as the terms given by the architect, “the private sky”.
© Wison Tungthunya
.Wison Tungthunya
一些窗户必须放置在邻近的一侧。窗户向更开阔的角落倾斜的概念也有助于房子的形式。毕竟,这一切都开始于有居住者的行为和看法的偏好,以自然形成这件雕塑。材料,空间和形式的发挥无缝地内外流动,在建筑、景观和内部之间建立了紧密的联系。
Some windows have to be placed on the neighboring side. The concept of tilting of windows towards more open corner of surroundings also contributes to the form of the house. After all, it all started by having the habitants behavior and view preference to naturally form this piece of sculpture. The play of materials, space and forms flows seamlessly inside-out, and outside-in making strong connections between architecture, landscape and interior.
© Wison Tungthunya
.Wison Tungthunya
Architects Openbox Architects
Location Bangkok, Thailand
Category Houses
Lead Architects Ratiwat Suwannatrai
Project Team Nattawan Supanan, Sudatip Pipatthakorn, Nonglak Boonsaeng
Area 1000.0 m2
Project Year 2017
Photographs Wison Tungthunya
Manufacturers Loading...
客服
消息
收藏
下载
最近






























