查看完整案例

收藏

下载
© Will Boase
c.威尔·博伊塞
架构师提供的文本描述。棉花基金会是一个来自澳大利亚的非政府组织,在世界各地的其他项目中,正在为乌干达南部的中小学生在2020年之前创造总共20 000个新的教育名额。为了实现这一雄心勃勃的目标,目前正在寻求几种途径,其中包括在Rakai和Lwengo两个地区的偏远村庄建造小学的COF外联村学校方案。每所学校将容纳500名学生和10名教师,后者住在现场。在可能的情况下,正在对现有建筑物进行升级,并根据需要增加新的建筑物。其中三所学校至今已落成,五所正在兴建中,另有二十所学校将於未来三年陆续落成。
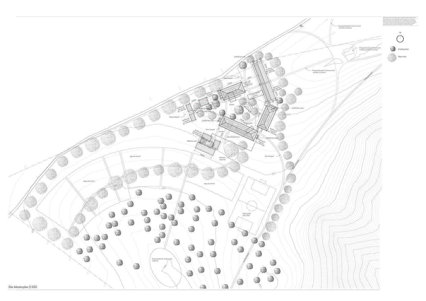
Text description provided by the architects. The Cotton On Foundation is a non-governmental organisation from Australia which, amongst other programmes around the globe, is in the process of creating a total of 20,000 new educational places for primary and secondary school children in Southern Uganda by the year 2020. To achieve this ambitious target, several avenues are being pursued, amongst them the COF Outreach Village School programme which consists of the construction of primary schools in remote villages around the two districts of Rakai and Lwengo. Each school is to accommodate 500 students and ten teachers, the latter residing on site. Wherever possible, existing buildings are being upgraded and new buildings added as required. Three of these schools have been completed to date, five are under construction, and a further twenty or so are to follow in the coming three years.
© Will Boase
c.威尔·博伊塞
2013年底,棉棉基金会与FH工作室建筑师接触,开发了一套典型的小学建筑设计,可在不同环境条件的不同场地上建造。在此之前,COF刚刚开始与澳大利亚建筑师罗斯·兰登(Ross Langdon)合作,后者于2013年9月在内罗毕西门事件中不幸去世;罗斯是FH工作室的朋友和合作者,他留下了一座典型教室的草图设计,COF希望以此作为设计开发的基础。
In late 2013, Studio FH Architects were approached by the Cotton On Foundation to develop a set of typical primary school building designs that can be constructed on various sites with differing environmental conditions. Prior to that, COF had just started to work with Australian architect Ross Langdon who, in September 2013, tragically died in the Nairobi Westgate attacks; Ross, a friend and collaborator of Studio FH, had left behind a sketch design of a typical classroom building which COF wanted to use as a basis for the design development.
© Will Boase
c.威尔·博伊塞
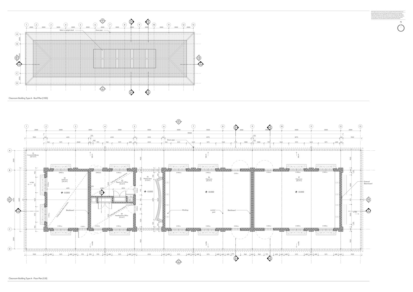
建筑对许多不同地点的适应性要求在很大程度上独立于其朝向太阳的设计。虽然热带设计原则通常会产生沿东西向延伸的建筑物,但很明显,一些地点会向我们展示一种使南北走向不可避免的地形。考虑到这一点,形成了一个教室模块,四面都有盖的走道。
The requirement of buildings that are adaptable to many different sites called for designs that are largely independent of their orientation towards the sun. Whilst tropical design principles normally generate buildings elongated along the east-west axis, it was evident that some sites would present us with a topography that made north-south alignment inevitable. This consideration led to a classroom block module with covered walkways on all four sides.
© Will Boase
c.威尔·博伊塞
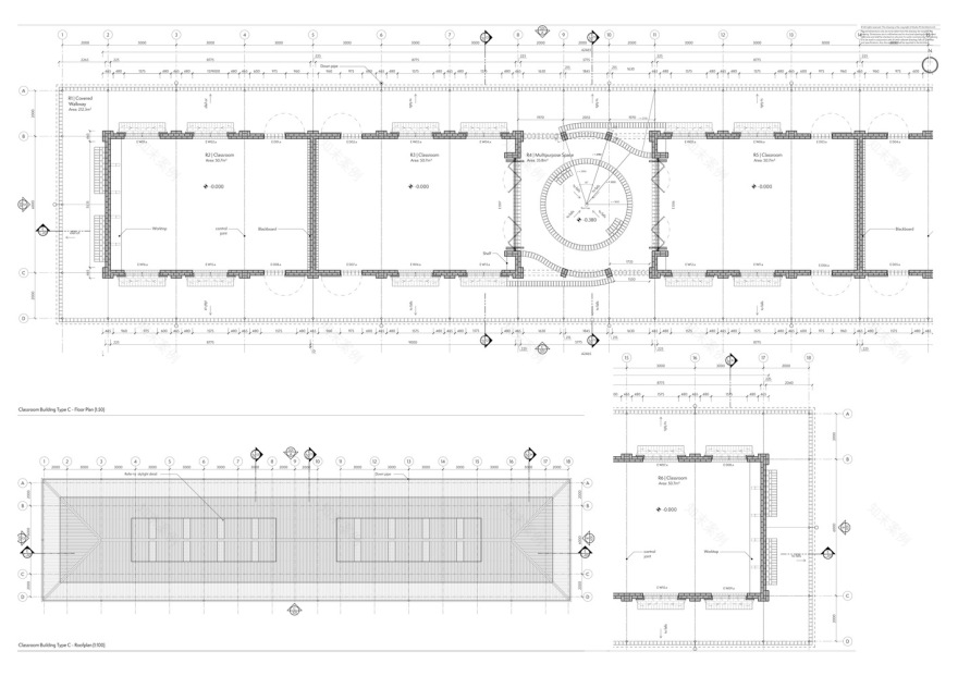
由于预算方面的考虑,在没有正式餐厅或会议厅的情况下,其中一座教室有一个多用途空间,在两间教室之间有一个较低的圆形座位区域。相邻的两个教室都有全宽度的旋转门和滑动板门,一旦打开,就为学校社区创造了一个更大的装配空间。当关闭时,这些门充当非正式的外部教学或活动空间的黑板。
In the absence of a formal dining or assembly hall due to budget considerations, one of the classroom blocks features a multipurpose space with a lowered circular seating area located in- between two classrooms. Both adjacent classrooms have full-width pivoting and sliding panel doors which, when opened, create an enlarged assembly space for the school community. When closed, the doors act as blackboards for an informal covered external teaching or activity space.
© Will Boase
c.威尔·博伊塞
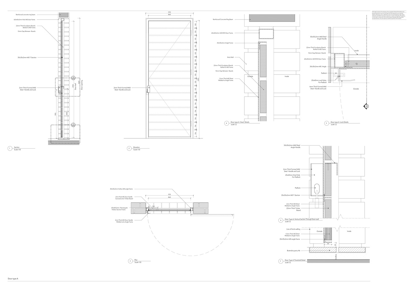
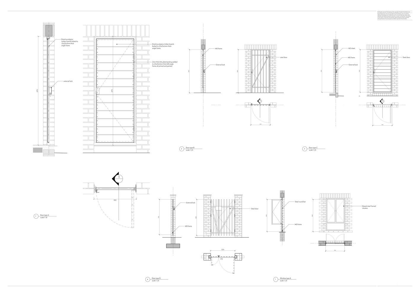
在选择材料时,主要考虑因素是学校将移交乌干达政府,因此学校的运作将由各区负责。鉴于许多地区的财政状况岌岌可危,学校要用坚固、持久、低维护的材料建造。水泥板地板、白面粘土砖和无玻璃百叶窗被选中,因为它们随着时间的推移表现突出;特别是由Masaka附近的butende brickworks制造的黄色多色粘土砖,帮助建造了几乎不老化的建筑,尽管它们发现自己身处的环境要么是尘土飞扬,要么是泥泞的环境。
When selecting materials, the key consideration was the fact that the schools were to be handed over the Government of Uganda and as such their operation would fall under the responsibility of the Districts. Given the precarious financial situation many districts find themselves in, schools were to be built of solid, long-lasting, low-maintenance materials. Cement screed floors, fair-faced clay brick and glass-less window shutters were selected for their outstanding behaviour over time; particularly the yellowish multi-coloured clay bricks, manufactured by Butende Brickworks near Masaka, help creating buildings that virtually don’t age despite the either dusty or muddy environments they find themselves in.
© Will Boase
c.威尔·博伊塞
最简单的被动设计原则构成了教室设计的基础:反射屋面材料,所有窗户的遮阳,浅建筑深度的良好交叉通风,以及由于高架通风屋顶而向上移动的空气。后者在乌干达南部和西部相当常见,主要见于历史悠久的工业建筑,如咖啡厂和磨坊。在通风口屋顶的选定区域的屋顶穿孔加强了日光供应;这一特性允许一个良好的学习环境,即使在暴风雨条件下,必须关闭钢木百叶窗作为一种保护措施,以抵御风和驾驶雨。
The simplest of passive design principles form the basis of the classroom design; reflective roofing material, shading of all windows, good cross-ventilation due to shallow building depths and upwards movement of air owing to elevated vent roofs. The latter is a typology quite common in southern and western Uganda, mostly seen on historical industrial buildings such as coffee factories and mills. Daylight provision is enhanced by roofsheet perforations in selected areas of the vent roofs; this feature allows for a well-lit learning environment even in stormy conditions when the steel-timber shutters have to be closed as a protective measure against wind and driving rain.
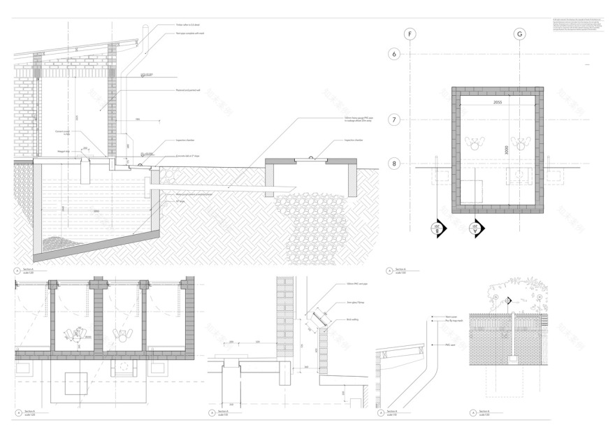
学校采用的其他适当技术包括集中雨水收集系统、沼气池厕所和混合燃料高效炉灶。
Other appropriate technologies deployed in the schools include a centralised rainwater harvesting system, biogas digester toilets and hybrid fuel-efficient cooking stoves.
© Will Boase
c.威尔·博伊塞
Architects Studio FH Architects
Location Uganda
Category Elementary & Middle School
Area 1500.0 m2
Project Year 2015
Photographs Will Boase
客服
消息
收藏
下载
最近



























































































