查看完整案例

收藏

下载
这座谷仓的改建是由Beck Oser Architekten在瑞士Hofstetten-Flüh的一座建筑上进行的。该项目于2013年完成,总面积550平方米。
房子被覆盖在一座绿色的草山上,周围是茂盛的植被和美丽的景观,这是该地区的典型,点缀着当地的动植物群,所有这些都聚集在一起,为一张梦幻的明信片创造了一个形象。
在外部,结构,其中大部分是在木材覆盖,密密麻麻的景观。
家里有巨大的露台和庭院,在那里我们可以在一个设置,是放松和休闲,朋友和家人度过快乐的时光,公司被大自然的美。我们会找到四个复式公寓已经建在那里,完全从院子里访问。他们俩喜欢花园,和其他两个更多的私人空间,仍然是开放的,新鲜的空气。
在画廊的结构观在山坡上
我们推荐这些由瑞士苏黎世市Boegli KramArchitekten House棉纺厂设计的瑞士住宅功能屋项目,使其成为一座美妙的阁楼。
浅谈木混凝土廊道结构
画廊中的景观-建筑间美丽的绿色景观
展厅正面的建筑物视图
在画廊看到建筑物的细节
在室内,混凝土墙与现代白色厨房并排,风格极简。它们被放置在巨大的玻璃墙旁边,自然光会渗透进来,填满空间。
白色现代厨房景观
白色现代厨房景观
把我们从一层到另一层的混凝土楼梯看上去很简朴,但它们对这种结构再合适不过了,给它们一种自然的触觉。
廊式混凝土楼梯视野
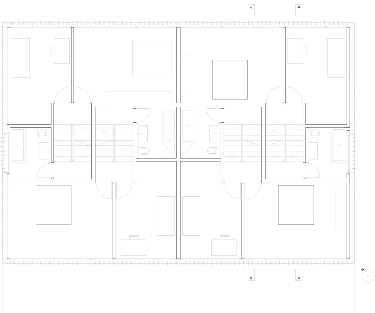
画廊中的视图
画廊中的视图
画廊中的视图
画廊中的视图
画廊中的视图
画廊中的视图
画廊中的视图
画廊中的视图
画廊中的视图
画廊中的视图
keywords:Concrete Walls Contemporary Interior Design Exposed Ceiling Beams Floor Plans Glass Walls Hall and Entrance Kitchen Landscaping Lighting Staircase Wood Walls
关键词:混凝土墙当代室内设计外露天花板梁平面图玻璃墙厅及入口厨房景观照明楼梯木墙
客服
消息
收藏
下载
最近




















