查看完整案例

收藏

下载
© French + Tye
(法语Tye)
架构师提供的文本描述。这是一座小型的、半独立的维多利亚式住宅的戏剧性转变。尽管布置在三层楼上,但深度很浅,所以比例就像平房一样。
Text description provided by the architects. This is a dramatic transformation of a small, semi-detached Victorian house. Despite being arranged over three floors, it was so shallow in depth that the proportions were cottage like.
© French + Tye
(法语Tye)
我们把地板落在较低的地面上,挖出了花园的很大一部分,为两层的延伸部分腾出了空间,主要是用玻璃做的。现有的后壁被夷为平地,并在传统的伦敦砖块中重建,与当代的玻璃形成鲜明对比。
We dropped the floor at lower ground level, and excavated a substantial portion of the garden to make space for a two-storey extension made predominantly in glass. The existing rear wall was flattened off and rebuilt in traditional London stock brick, in contrast with the contemporary glazing.
© French + Tye
(法语Tye)
在内部,我们打开了所有三层楼的空间,在传统的立面后面创建了比例相当的房间。
Internally, we opened up the space on all three levels to create generously proportioned rooms behind a traditional facade.
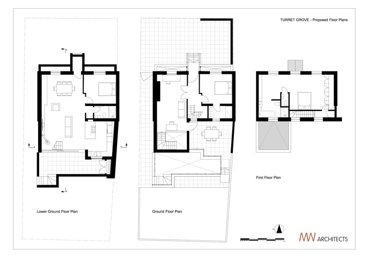
一楼,前三间房间,专门为主套房服务。我们拆除了天花板,暴露了倾斜的屋顶,该屋顶被重组,以移除任何可见的桁架。双高空间在一个传统的信封里有一种现代的感觉,里面有三个木窗。
The first floor, formerly three poky rooms, is dedicated to the master suite. We removed the ceiling, exposing the pitched roof, which was restructured to remove any visible trusses. The double-height space has a contemporary feel within a traditional envelope, complete with three timber sash windows.
© French + Tye
(法语Tye)
在一楼有一个客房和浴室以及一个接待室/书房,可以俯瞰双高度的空隙。一个巨大的无框玻璃角落窗户可以看到花园的开阔视野,从书房可以看到一个小小的平台。一个新的钢楼梯连接这一层与下面的开放式居住区域。光线从双高度的空隙中注入到这个房间,在地下,保持隐私而不会失去光彩。
On the ground floor there is a guest room and bathroom and a reception room/study which overlooks the double height void. A huge frameless glass corner window gives open views of the garden.A small upper terrace is accessible from the study. A new steel staircase connects this level with the open-plan living area below. Light pours in to this room from the double height void and, being below ground, privacy is maintained without a loss of splendour.
Proposed Floor Plans
拟议平面图
一扇大的滑动门通向较低的梯田,外楼梯又回到花园的水平。
A large sliding door leads onto the lower terrace and external stairs go back up to garden level.
© French + Tye
(法语Tye)
Architects MWArchitects
Location Greater London, United Kingdom
Category Houses
Architects in Charge Matthew Wood, Melissa Robinson
Area 175.0 m2
Project Year 2015
Photographs French + Tye
Manufacturers Loading...
客服
消息
收藏
下载
最近





























