查看完整案例

收藏

下载
架构师提供的文本描述。这座占地4英亩的山坡遗址位于纽约州北部哈德逊镇外,其总体规划包括一个新的宾馆和一个与现有现代住宅相邻的游泳池。这座20英尺宽45英尺的游泳池利用了哈德逊谷的景观,而这座宾馆几乎被一片新的草地所包围,形成了一个带有主建筑的入口庭院。
Text description provided by the architects. The master plan for this four-acre hillside site outside of the Upstate New York town of Hudson includes a new guesthouse and pool adjacent to an existing contemporary home. The 20-foot- by-45- foot pool takes advantage of the property’s Hudson Valley views, while the guesthouse, nearly surrounded by a new meadow, forms an entry court with the main structure.
© Scott Frances
(斯科特·弗朗西斯)
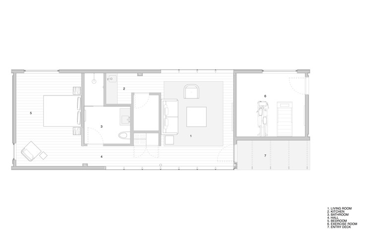
Ground Floor Plan
© Scott Frances
(斯科特·弗朗西斯)
一条有盖的风道把宾馆分成两面,一边是房主和客人的健身房,另一边是供客人居住和睡觉的地方。开放充当了双方之间的桥梁,允许隐私以及与周围景观的连接。这座建筑的结构简单,包括裸露的萝卜和混凝土地板,它采用了一堵优雅的玻璃墙,最大限度地提高了建筑物的透明度和视野。
A covered breezeway divides the guesthouse into two sides, one a gym for the homeowners and guests, the other a living-and- sleeping area for guests. The opening acts as a bridge between the sides, allowing for privacy as well as connection to the surrounding landscape. Clad in vertical wooden slats, the structure’s simple construction, including exposed rafters and concrete flooring, features an elegant glass wall that maximizes the building’s transparency and view.
© Scott Frances
(斯科特·弗朗西斯)
Architects Janson Goldstein
Location Hudson, United States
Category Houses
Architects in Charge Hal Goldstein, Stefan Kusurelis, Mark Janson, Steve Scuro
Area 1000.0 ft2
Project Year 2015
Photographs Scott Frances
客服
消息
收藏
下载
最近














