查看完整案例

收藏

下载
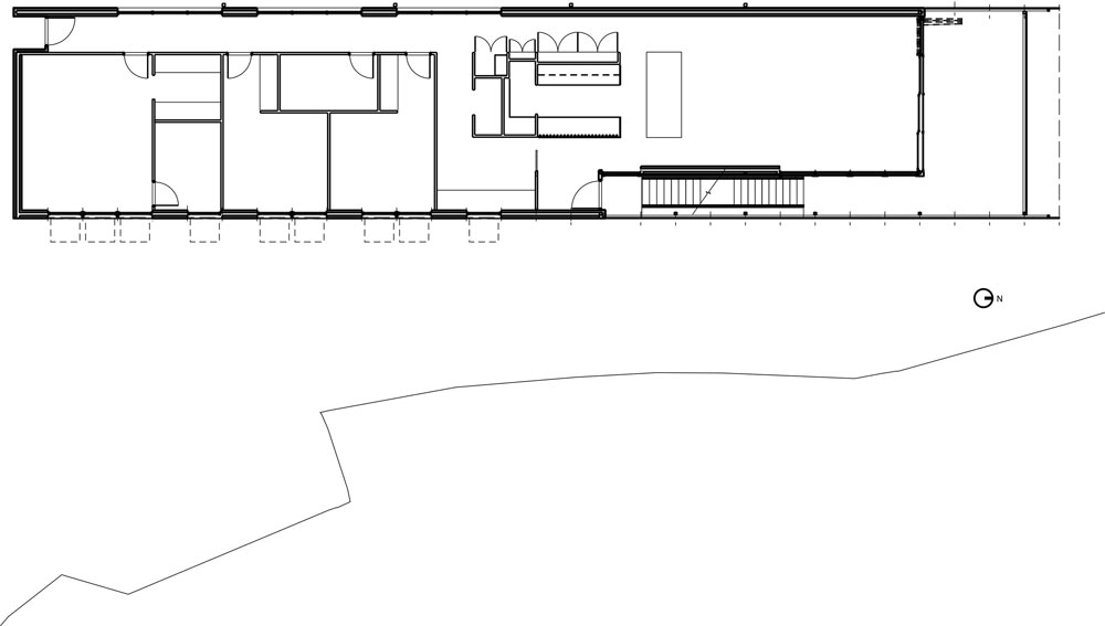
位于墨尔本西北,一个同名的小镇,马赛顿山大厦坐落在山的一侧,在一块土地上,这被证明是对外地办公建筑的挑战。随着客户的规格,有严格的规定,以防止丛林火灾。
这片狭长的土地提供了北部和东北部灌木丛的不间断景观,为房主提供了一个可以称之为家的放松的地方。
随着物业的急剧倾斜,设计要求提升结构以限制开挖量,并增加景观的景观。
外壳是用球状钢覆盖的,它能满足丛林防火的要求,并能根据需要打开和关闭窗户。结构的其余部分配备了屏蔽装置,以确保更多的隐私,这不会阻碍视图或阻止光线进入。
在房屋的后面,在钢铁覆盖的部分,卧室和学习区域居住,而公共空间则朝向更开阔的前方。
外面的楼梯通向屋顶甲板,上面有360度的景致。
作者声明:作者声明:by J.
分享这篇文章分享Tweet Pin提交
客服
消息
收藏
下载
最近


















