查看完整案例

收藏

下载
© Nacasa & Partners Inc.
© Nacasa
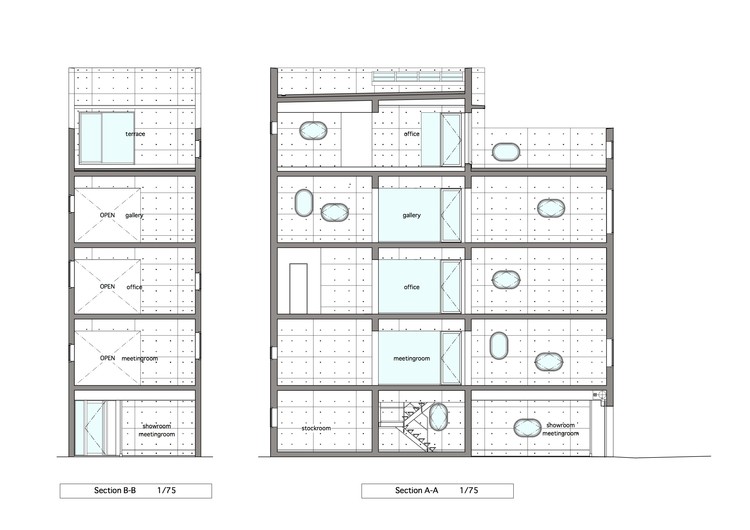
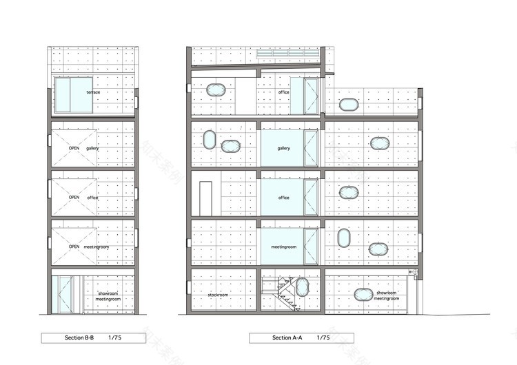
架构师提供的文本描述。位于100平方米场地上的正方形和纯白色建筑被称为TETOTE便笺。TETOTE在日语中的意思是握手,它意味着设计者、客户端和参与创建的人之间的协作。第一层到第五层被用作室内演播室,平面外表面长方形圆形窗户的简单布置令人印象深刻。
Text description provided by the architects. The square and pure white building located on a 100 square meter site is called TETOTE NOTE. TETOTE means handshake in Japanese, and it signifies the collaboration among the designers, the clients, and those involved in creating. The first to fifth floors are used as an in-house studio, and the simple arrangement of oblong circular windows in the flat outer surface is impressive.
© Nacasa & Partners Inc.
© Nacasa
Floor Plans
平面图
© Nacasa & Partners Inc.
© Nacasa
这些窗口有两种打开方式-垂直打开和水平打开。这些窗户仅附在外墙表面,从外部看就有平整度的印象,而墙的厚度则进一步强调长方形,捕捉更多随机和活跃的阴影和光线。通过这种方式,该结构具有二元性的印象,内部更加粗糙,通过空间和极小的细节表现出更强的关系,而不包含大量的设计信息。
These windows have two ways of opening—vertically and horizontally. Attached just at the surface of the outer wall, these windows give the impression of flatness viewed from the outside, while the thickness of the walls further emphasizes the oblong shape, capturing more random and active shadow and light. In this way the structure has the impression of duality, with a rougher interior, and it represents a stronger relationship through space and minimal detail, without incorporating a great deal of design information.
© Nacasa & Partners Inc.
© Nacasa
玻璃是用于连接地板的楼梯轴的屋顶,在每一层地板的墙壁上释放光线,这种光线随着时间的推移而变化。钢楼梯的台阶被长方形的洞打穿,以便有更多的光线到达底层。楼梯竖井的外露装饰以混凝土中的木纹图案为特征,给出了粗糙和不同的表达方式,并呈现出更多的光。灯光支架的概念是这个工作室的另一个重要设计。灯台上安装了三个LED手电筒,在发生紧急情况时,这些手电筒可以被移除并用作便携式手电筒。展台的设计将蜡烛架转换成LED。手电筒甚至安装在为上层地区制作的灯台上。电池是可充电和可重复使用的。这些设计纳入了减少能源消耗和考虑防灾的概念。
Glass is used for the roofs of the stairway shafts connecting the floors, shedding light on the walls of each floor, and this light changes over time. The steps of the steel staircases are punched through with oblong holes to allow more light to reach all the way to the bottom floor. The exposed finish of the stairway shafts feature a wood grain pattern in the concrete giving a rough and different expression and a presentation with more light. The concept of the lighting stands is another vital design of this studio. The lighting stands are mounted with three LED flashlights that can be removed and used as portable flashlights in the event of an emergency. The design of the stands incorporates candle stands converted into LED. Flashlights are mounted even in the lighting stands made for the upper areas. The batteries are rechargeable and reusable. These designs incorporate the concepts of reducing energy consumption and considering disaster prevention.
© Nacasa & Partners Inc.
© Nacasa
Architects Yoshihiro Kato Atelier
Location Japan, 〒453-0016 Aichi-ken, Nagoya-shi, Nakamura-ku, Takebashichō, 37−3 TETOTENOTE
Category Office Buildings
Area 74.73 m2
Project Year 2012
Photographs Nacasa & Partners Inc.
Manufacturers Loading...
客服
消息
收藏
下载
最近





















