查看完整案例

收藏

下载
© John Gollings
约翰·戈林斯
架构师提供的文本描述。阿纳达拉独特的设计代表了地球、水和天空,以南方的土质陶土色外墙来表达,而北面则是一个醒目的白色曲线特征,创造了“云彩”。北方公寓富有表现力的有机形式,是对邻近公共广场的庆祝和定义,也让人想起免费的云层和波浪,它们补充了我们的沙石海港海角。
Text description provided by the architects. Anadara’s unique design represents earth, water and sky, expressed by the earthy terracotta coloured façade to the south which is contrasted by a striking, white curvilinear feature to the north, coined ‘The Cloud.’ The expressive, organic form of the northern apartments celebrates and defines the adjacent public square and is reminiscent of the free-forms of clouds and waves that complement our sandstone harbour headlands.
© John Gollings
约翰·戈林斯
我们的方法是将这座长长的线性建筑划分为两种主要形式:一种是定义滨水区的精心调整的直线形式,另一种是更高的有机形式,以解决主要的公共开放空间。这些建筑形式与线状天篷、柔和的梯田和景观相结合,成为公共滨水区的特色。
Our approach was to articulate this long linear building into two primary forms; a carefully scaled rectilinear form that defines the waterfront, and a higher more organic form to addresses the main public open space. These architectural forms are combined with a linear canopy, gentle terracing and landscape to characterise the public waterfront.
© John Gollings
约翰·戈林斯
由于这座建筑位于巴兰加鲁南部生机勃勃的新辖区内,因此必须为面对水边和商业塔的公寓保留一种隐私感。弯曲形式的“云”是通过固定的和可操作的穿孔屏幕,可以滑动沿着柔和的曲线,同时保持同花顺皮肤的建筑物关闭。云外部的模式软化了所使用的材料,并允许通过眼睛水平最大限度地看到海港的景色,同时为公寓保留一个私人的户外空间。同样,东面的立面提供阳台的挫折和凹进的斜窗,使人们可以沿着街道的长度,而不是直接穿过马路走向商业街的正面。再一次,屏幕被用来增加隐私和进一步阐明外观。
As the building is located in the vibrant new precinct of Barangaroo South, it was imperative to preserve a sense of privacy for the apartments facing both the waters edge and the commercial towers. The curved forms of ‘The Cloud’ are created through fixed and operable perforated screens that can slide along the gentle curves while preserving a flush skin to the building when closed. The pattern to the outside of The Cloud softens the material used and allows maximum harbour views through the eye level, whilst maintaining a private outdoor realm for the apartments. Likewise, the eastern façade provides balcony setbacks and recessed oblique windows to enable views along the length of the street rather than directly across the road toward the commercial street frontage. Again, screens are used to increase privacy and further articulate the facade.
© John Gollings
约翰·戈林斯
通过设置顶层,降低了建筑围护结构沿公共领域的影响。这让公众可以仰望并越过形态,透过屋顶的百叶窗和更远的地方,与天空接触。
By setting back the top level, the impact of the building envelope along the public domain is reduced. This allows the public to look up and past the form to engage with the sky by looking through the rooftop louvres and beyond.
© John Gollings
约翰·戈林斯
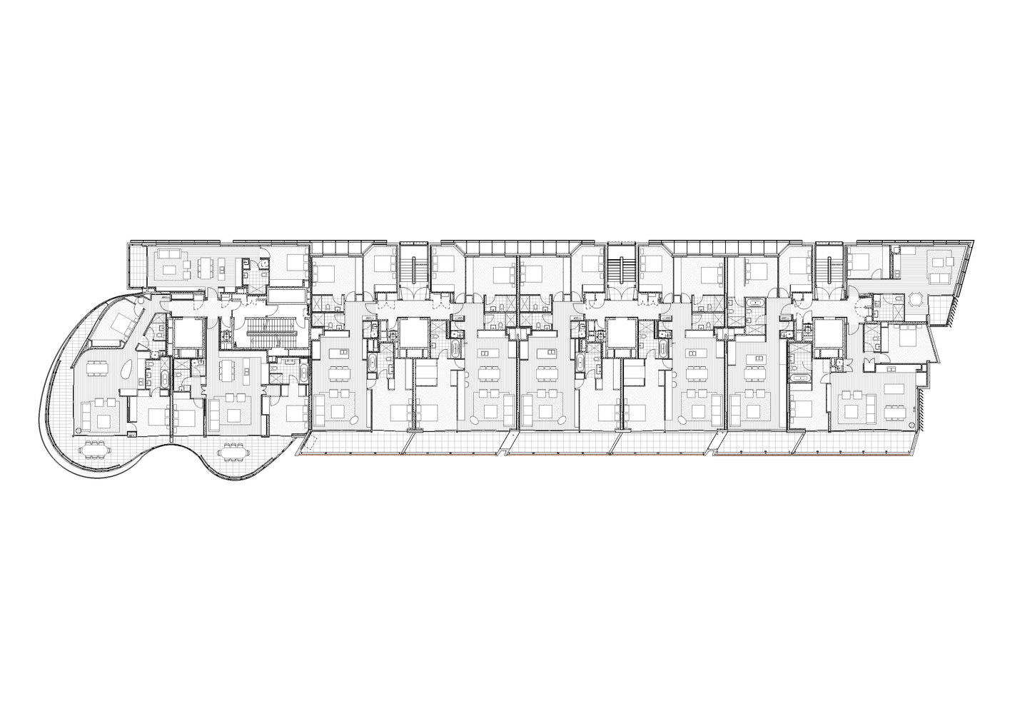
Ground Floor
© Andrew Chung
(三)郑家富
作为Barangaroo南部的一部分,最重要的fi无法选址的机会是重新连接港口和CBD的西边的能力。它位于最佳位置沿水域边缘和弯道fits从港口的不间断的看法,向西。
As part of Barangaroo South, the most significant site opportunity is the ability to reconnect the harbour to the western edge of the CBD. Its in the optimum position along the waters edge and benefits from uninterrupted views of the harbour to the west.
© John Gollings
约翰·戈林斯
邻近海旁的公众范围,亦连接回南达令海港,加强公众的连接,以及沿海港前滨的步行小径。
The public domain adjacent to the waterfront also connects back to Darling Harbour to the south reinforcing the public connectivity and walking trail along the harbour foreshore.
Anadara和活跃的地面零售店加强了这一机会,提供了一个充满活力的公共领域,而该网站的北端则开放给更广泛的Barangaroo和CBD站点一个鼓励活动的公共广场,公寓有助于小区的生动活泼,在港口边缘提供一个活跃的公共和住宅社区。
Anadara and the activated retail at ground level serves to reinforce this opportunity providing a dynamic public realm, while the northern end of the site opens to a public square encouraging activity for the broader site of Barangaroo and the CBD.The apartments contribute to the liveliness of the precinct providing an active public and residential community along the harbours edge.
© John Gollings
约翰·戈林斯
Architects fjmt
Location Barangaroo NSW 2000, Australia
Category Housing
Area 9600.0 m2
Project Year 2016
Photographs John Gollings, Brett Boardman, Andrew Chung , Rose Repetti
Manufacturers Loading...
客服
消息
收藏
下载
最近


























