查看完整案例

收藏

下载
建筑工程师IBuilders PTE有限公司结构工程师冷顾问照明设计师灯具制造商装货.多规格少规格
Builder IBuilders Pte Ltd Structure Engineer Leng Consultants Lighting Designer Light Collab Manufacturers Loading... More Specs Less Specs
© Masano Kawana
c.Masano Kawana
架构师提供的文本描述。业主是一对年轻夫妇,有两个蹒跚学步的孩子,他们喜欢经常举行家庭聚会,因此要求有宽敞的室内空间和户外花园空间,以便开展公共活动。
Text description provided by the architects. The owners are a young couple with two toddlers who love to hold frequent family gatherings and thus had requested for spacious interior space and outdoor garden space for communal activities.
© Masano Kawana
c.Masano Kawana
First Floor Plan
一层平面图
© Masano Kawana
c.Masano Kawana
我们设计的目的是创造一个家庭,使家庭和他们的孩子可以自由移动,漫游和游玩在房子内,进入花园。我们放弃了正式入口处的概念,允许一个人自由地进入房子,从全宽滑动玻璃门衬里的生活和餐饮空间。滑动玻璃门也从第二层墙壁凹陷,为白天活动提供一个遮阳的室外空间。前面和旁边的花园被草坪和园林植物繁茂的热带植物,增加了户外活动的乐趣。
Our aim of the design is to create a home where the family and their children could move, roam and play freely within the house and into the garden. We abandoned the concept of a formal entrance and allow one to enter the house freely from the full width sliding glass doors lining the living and dining space. The sliding glass doors are also recessed from the second storey wall to provide a shaded outdoor space for activities during the day. The front and side garden are turfed and landscaped with lush tropical plants that add to the enjoyment of outdoor activities.
© Masano Kawana
c.Masano Kawana
© Masano Kawana
c.Masano Kawana
这座房子是为了适应新加坡的热带气候而设计的。露台、露台等遮阳的户外空间,使居民能够享受户外活动,同时又能保护自己免受强阳和热带雨的侵袭。
The house is designed to response to the tropical climate in Singapore. The shaded outdoor spaces such as patio and the deck terrace enable the residents to enjoy the outdoor activities yet can be protected from the strong sun and tropical rain.
© Masano Kawana
c.Masano Kawana
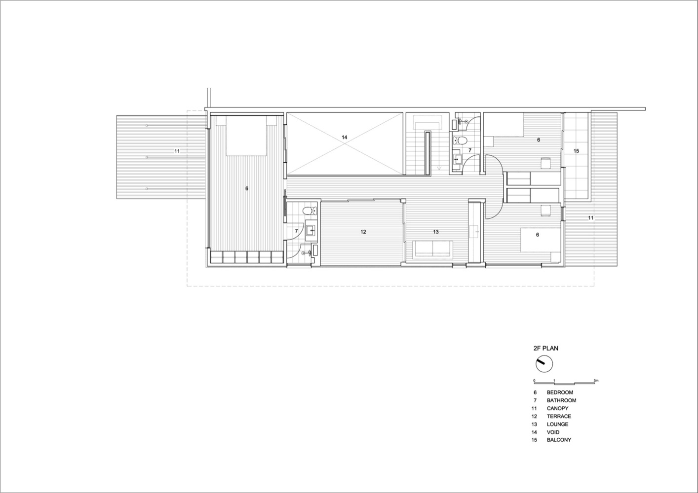
这所房子的布置很简单。居住和用餐是房子的焦点,因为业主经常举行家庭聚会。居住空间的高度是双倍的,四周都是房间,在二楼有一条类似桥的走廊。8米高的天花板空间欢迎您一进入房子,高天花板空间连接多个室内空间水平和垂直,以促进家庭之间的互动。天窗在天花板上点亮,将光线带入室内深处。二楼沿走廊的露台有助于带来阳光,同时也会带来微风和房屋的通风。
The house is organized with a simple layout. The Living and Dining are the focal points of the house as the owners hold frequent family gatherings. The Living space has a double-volume height and is surrounded by rooms and lined by a bridge-like corridor on the second storey. The eight-metre high ceiling space welcomes you upon entering the house, and the high ceiling space connects multiple interior spaces horizontally and vertically to promote interaction among the family. A skylight punctuates the ceiling and brings light into the deep interior space. The terrace on the second floor along the corridor helps to bring in light while it generates breeze and ventilation across the house.
© Masano Kawana
c.Masano Kawana
房子的外部是一个平缓倾斜的瓷砖屋顶,有一个木质的墙面.柔和的沥青屋顶保持了房子的低矮和亲密的形式,木材包层为房子增添了温暖的触感,与岛上郊区丰富的绿色植物很好地融合在一起。
The exterior of the house is characterized by a gently-pitched tile roof with a timber-cladded facade. The gentle pitch roof keeps the form of the house low and intimate, and the timber cladding adds a warm touch to the house and blends well into the abundant greenery of the suburb area of the island.
© Masano Kawana
c.Masano Kawana
Architects Atelier M+A
Location Singapore
Category Houses
Architect in Charge Masaki Harimoto, Ng Ai Hwa
Area 250.0 m2
Project Year 2017
Photographs Masano Kawana
Manufacturers Loading...
客服
消息
收藏
下载
最近



























