查看完整案例

收藏

下载
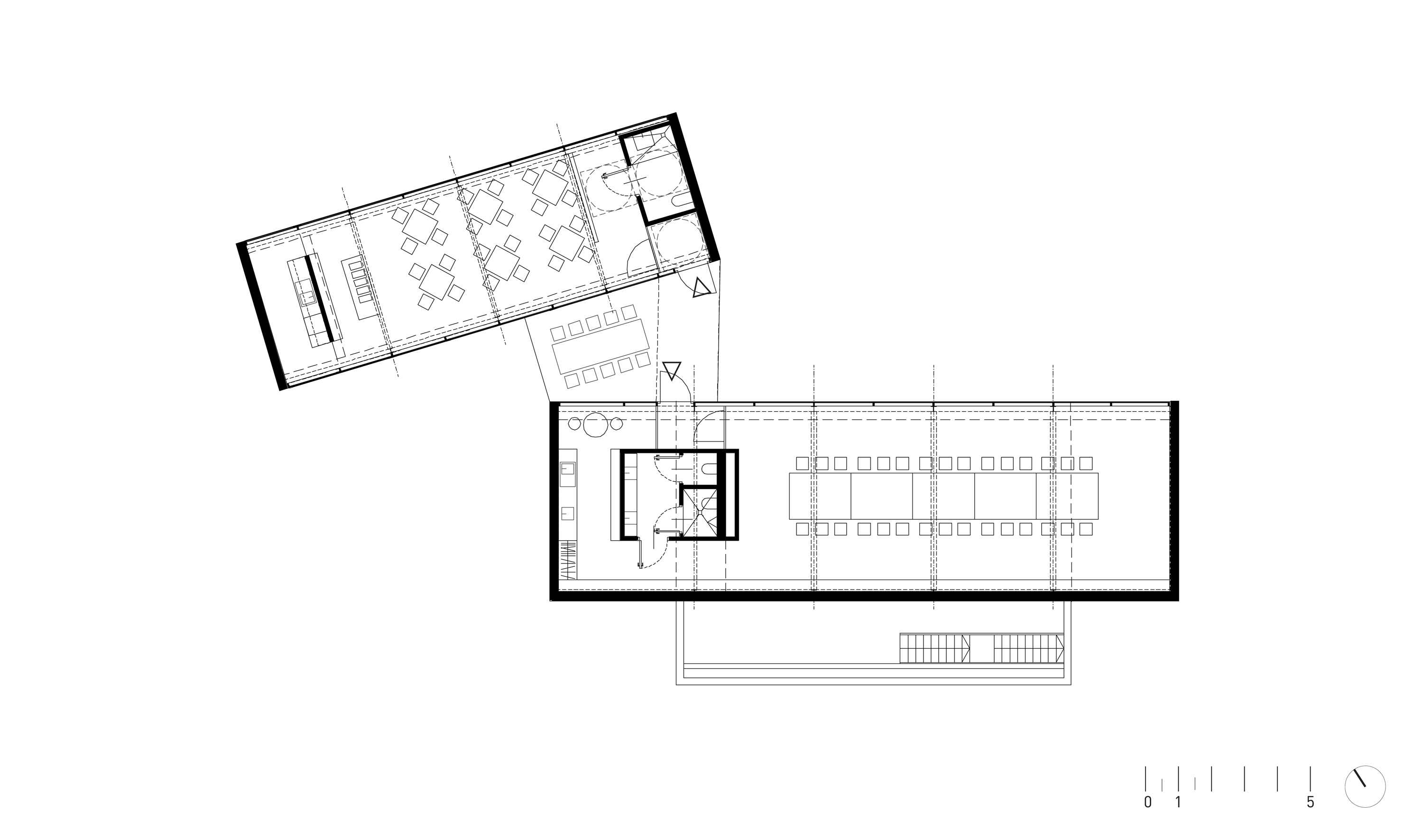
公园内设有一套小型的会议及训练大楼,以补充现有的受保育保护的办公大楼。这些设施的选址是为了避免砍伐树木,并使公园的大部分花园不受太多干扰。
团队成员:Arch_ITPaweuF群yn、GosiaPoodgRny、PawexSzyport、PiotrZyBURA(主要架构师)
Firm arch_it piotr zybura
Type Commercial › Office
STATUS Concept
YEAR 2018
keywords:architecture, architecture news, interiors, interior design, portfolio, spec, brands, marketplace, products Conference pavilion in park quarter
关键词:建筑,建筑新闻,室内设计,组合,规格,品牌,市场,产品展馆在公园区
客服
消息
收藏
下载
最近










