查看完整案例

收藏

下载
零激情
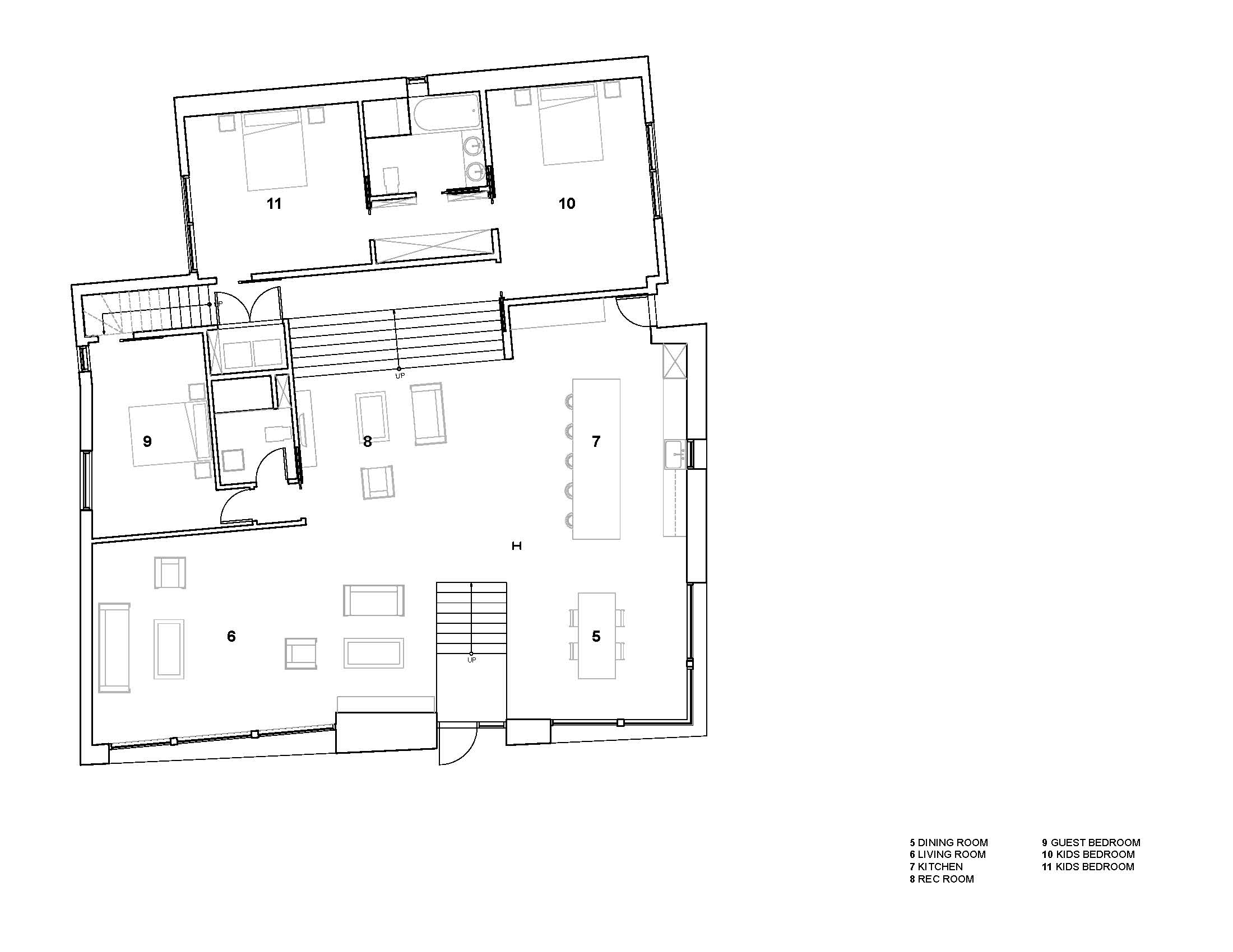
韦伯斯特露台是一座著名的现代运动房屋,分三个阶段建造。它有一个开放式的居住/用餐/厨房计划,有一个独特的倾斜天花板延伸到一个单坡悬臂屋顶。
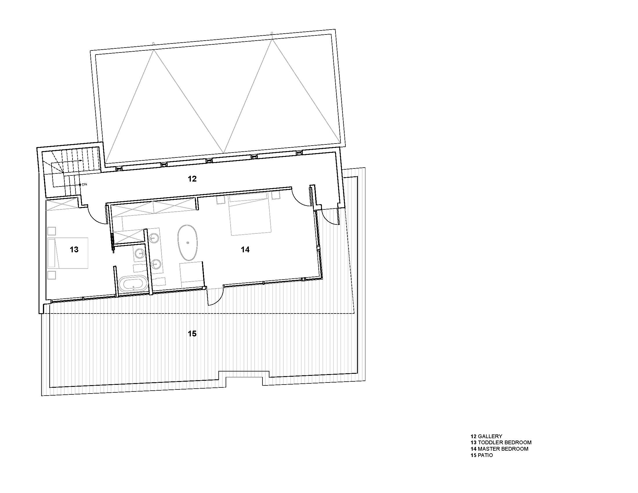
客户希望尽可能多地打开主楼层,建造一层第二层,每间卧室都有一个浴室。主要的挑战是
1.增加一层二层,同时保持房子的耐候性
2.更多地展示大倾斜天花板的空间特性
3.插入新的供暖、冷却、电力、管道、通信和娱乐系统
4.改善围护结构和系统的能量性能。
5.使用当代高性能材料,无边缘细节。
提尔对第一个挑战的反应是设计出一种“针眼”结构策略,通过屋顶上最小的开口将新的钢结构连接起来,并在同一天立即将它们密封起来。新的地板悬挂在现有的倾斜屋顶平面上,在下面创造了一个有用的存储空间。新的上层甲板也是为了在旧屋顶上盘旋。
第二个挑战是,拆除主层上的大部分墙壁,将倾斜的天花板暴露得比以前更多,并创造出一套宽楼梯,作为娱乐场所的集合座位。
现有房屋的信封被剥离内部和新旧墙壁都用高性能喷雾泡沫绝缘。所有的窗户都是新的,铝制的,带有热插拔的。零边玻璃细节在两个水平的角落显示惊人的南方的哈利法克斯的西北海湾海口的看法。外包层是一个零维护的热材和纤维水泥板的组合,没有暴露在整个房子上的紧固件。
景观是零维护河卵石,允许最大渗透性的网站。
这座房子在年轻的时候是一种大胆和现代的形式,它已经被扩展的空间恢复了活力,有了更好的视野,一种圆滑的21世纪形式,以及以最简约的方式详细描述的伴侣-里亚尔。
Firm TEAL Architects + Planners
Type Residential › Private House
STATUS Built
YEAR 2017
SIZE 3000 sqft - 5000 sqft
BUDGET $1M - 5M
keywordsarchitecture, architecture news, interiors, interior design, portfolio, spec, brands, marketplace, products Webster Terrace
关键词建筑,建筑新闻,室内设计,组合,规格,品牌,市场,产品韦伯斯特平台
客服
消息
收藏
下载
最近





















