查看完整案例

收藏

下载
这座独栋别墅位于瑞典东海岸,历史上以其旅游吸引力和派对地位而闻名,但目前无人居住。由乔纳斯林德瓦尔A建筑公司翻修
它是完全用木头建造的,从墙壁到天花板。同时,它的设计结构也受到了传统的斜顶谷仓类型的启发。
它美丽的花园,精心照料,突出了这座简单建筑的完美之处。在它的内部,我们发现了一个类似的简单的符号,其中所有的东西都被精心组织和放置。
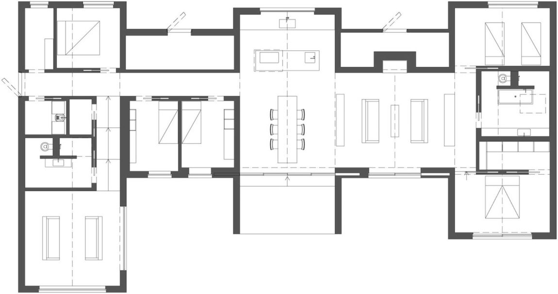
每个部分由五个模块相互连接而成,每个部分都有自己独特的空间和特征集。简单的结构让它的家具和装饰脱颖而出,见证了三个主要空间:客厅、餐厅和厨房的无缝整合,真是一种奇妙的体验。
木结构旁侧视图
我们推荐这些项目-美丽的小屋,坐落在美国西弗吉尼亚州的山区,里斯本的豪宅,有白色的内饰和明亮的空间。
在画廊的正面视图的木制模块连接在他们自己之间
画廊中的视图
从外部看卧室的画廊视图
画廊中的视图
可在画廊看到客厅-餐厅和厨房空间的全貌。
可欣赏画廊的木制厨房和白色大理石台面,并有亮点。
与外部相连的玻璃墙让周围环境的自然光线流动进来,使室内沐浴着健康的光亮。
可欣赏展厅木制餐桌,可欣赏到周围环境的景色。
画廊中的视图
画廊中的视图
在画廊的研究视角
浴室完全由美丽的白色大理石制成,给人一种非常优雅的感觉。
画廊浴室的景色由白色大理石制成。
画廊中的视图
画廊中的视图
keywords:Bathroom Bedroom Contemporary Interior Design Decorative Accessory Dining Room Fireplace Floor Plans Glass Walls Hall and Entrance Kitchen Landscaping Lighting Living Room Rug Skylights Study Room Terrace Wood Walls
关键词:浴室、卧室、现代室内设计、装饰附件、餐厅、壁炉、平面图、玻璃墙、大厅和入口厨房、景观美化、客厅、地毯、天窗、书房、露台、木墙。
客服
消息
收藏
下载
最近
















