查看完整案例

收藏

下载
© Tatiana Mestre
Tatiana Mestre
架构师提供的文本描述。建筑是我们目前生活方式的快照。它是人类在特定时期的综合。工业革命后,随着大众传媒的日益繁衍,新材料和新交通方式的引入,传统的室内空间观念转变为内部与外部的对话。这一变化也挑战了私人和公共空间的界限。(鼓掌)
Text description provided by the architects. Architecture is a snapshot of our current way of living. It is a synthesis of humanity in a time specific period. After the industrial revolution with the increasing reproduction of mass media, the introduction of new materials and new ways of transportation; the idea of a traditional interior space was transformed into a dialogue between interior and exterior. This change also challenged the boundaries of private and public spaces.
© Tatiana Mestre
Tatiana Mestre
© Tatiana Mestre
Tatiana Mestre
3:2住宅有意质疑单一家庭住宅空间的物理和视觉边界。我们假装创造了一个视觉上连续的、相连的区域,这个区域是由一个梯度边界所限制的,而不是在私人和公共区域之间的一堵墙。
3:2 House has the intention to question the physical and visual boundaries of space in single family housing. We pretend to create a visually continuous and connected area that is limited by a gradient boundary –rather than a physical wall- between the private and public areas of a house.
© Tatiana Mestre
Tatiana Mestre
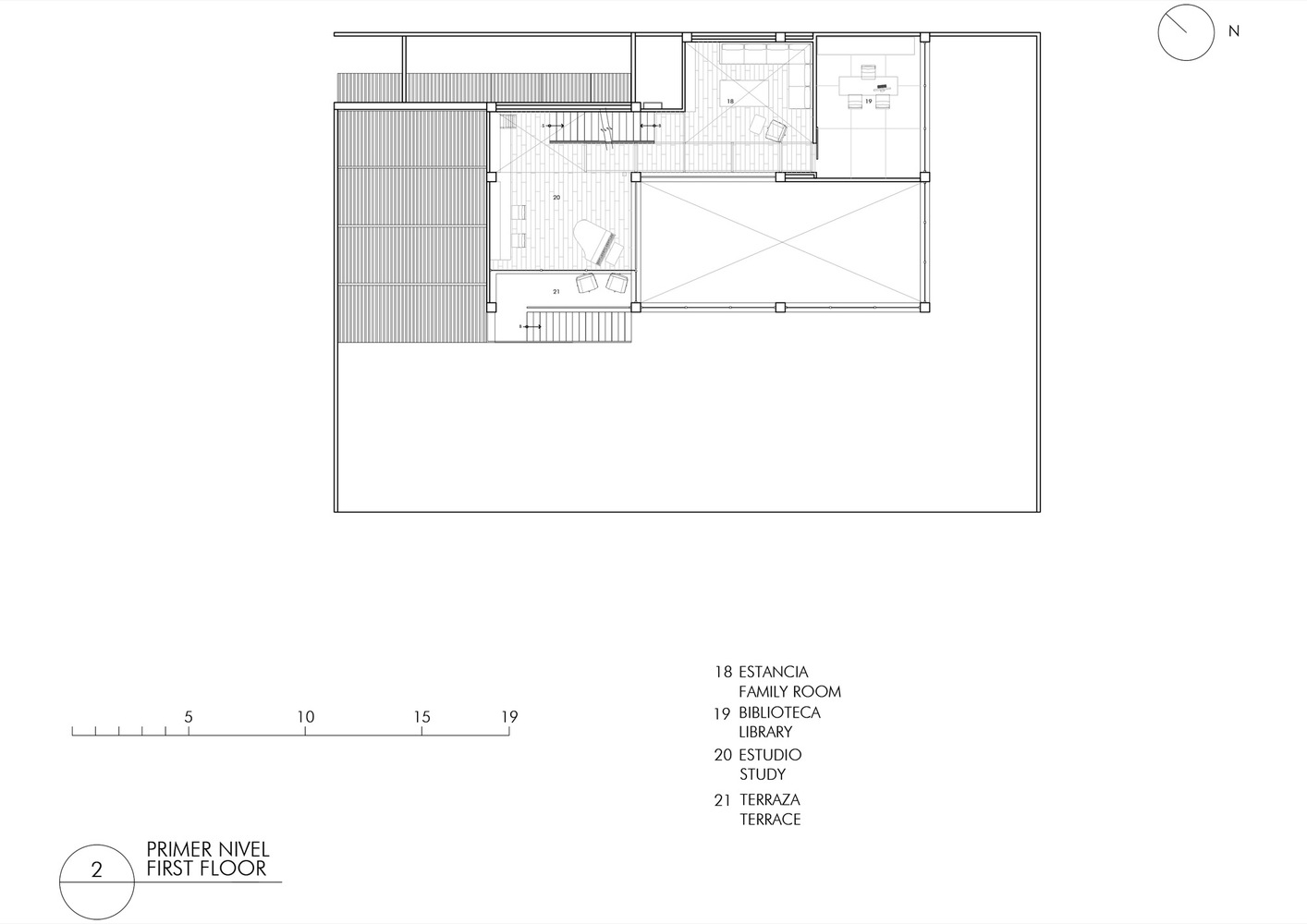
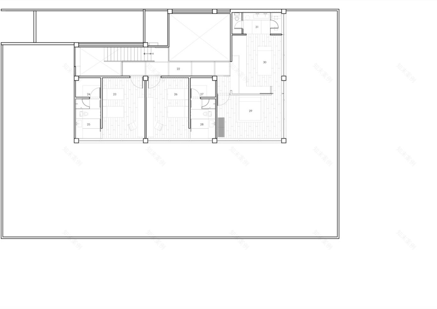
该项目分为4个区域:私人区域的卧室;半私人的图书馆和工作室;公共区域的起居室和餐厅;服务区。私有区域合并为半私有区域,半私有区域合并为公共区域.这是一种私人空间的渐变,它鼓励居民之间的互动,而不失去传统空间的本质。
The project is divided into 4 zones: bedrooms in the private zone; library and studio in the semi-private; living and dining rooms in the public area and a services area. The private area merges into the semi-private, and the semi-private merges into the public area. It is a gradient transition of private spaces that encourages interaction between its inhabitants without losing the essence of traditional spaces.
© Tatiana Mestre
Tatiana Mestre
朝南的大窗户和材料上的小多样性,使它成为一个非常舒适的房子,它的纬度,给它一种永恒的,但当代的感觉。
The great windows facing south, and the little diversity in its materials; make it a very comfortable house for its latitude, and give it a timeless yet contemporary feeling.
© Tatiana Mestre
Tatiana Mestre
Architects Método
Location Mexico City, Mexico
Category Houses
Architect in Charge Arquitecto Bernardo García
Area 470.0 m2
Year project 2014
Photography Tatiana Mestre
Manufacturers Loading...
客服
消息
收藏
下载
最近































