查看完整案例

收藏

下载
© WAATAA PHOTOGRAPHY!
WAATAA摄影!
架构师提供的文本描述。我们发现了三个空的大空间,天花板很高,窗户也很大,每个空间都有自己的卫生设施。他们的使用,直到日期是商业性的。
Text description provided by the architects. We found three empty large spaces with substantial height ceilings, large windows dimensions and each with its own sanitary facilities. Their use till the date was commercial.
© WAATAA PHOTOGRAPHY!
WAATAA摄影!
© WAATAA PHOTOGRAPHY!
WAATAA摄影!
该项目的主要目的是将这些商业空间转化为生活空间。我们很快意识到,由于先期存在的性质,要生成的住房核心不能也不应该遵循传统的模式。
The main purpose of the project focused on the conversion of these commercial spaces into living spaces. We quickly realized that, due to the nature of the pre-existence, the housing core to be generated could not and should not follow conventional patterns.
© WAATAA PHOTOGRAPHY!
WAATAA摄影!
© WAATAA PHOTOGRAPHY!
WAATAA摄影!
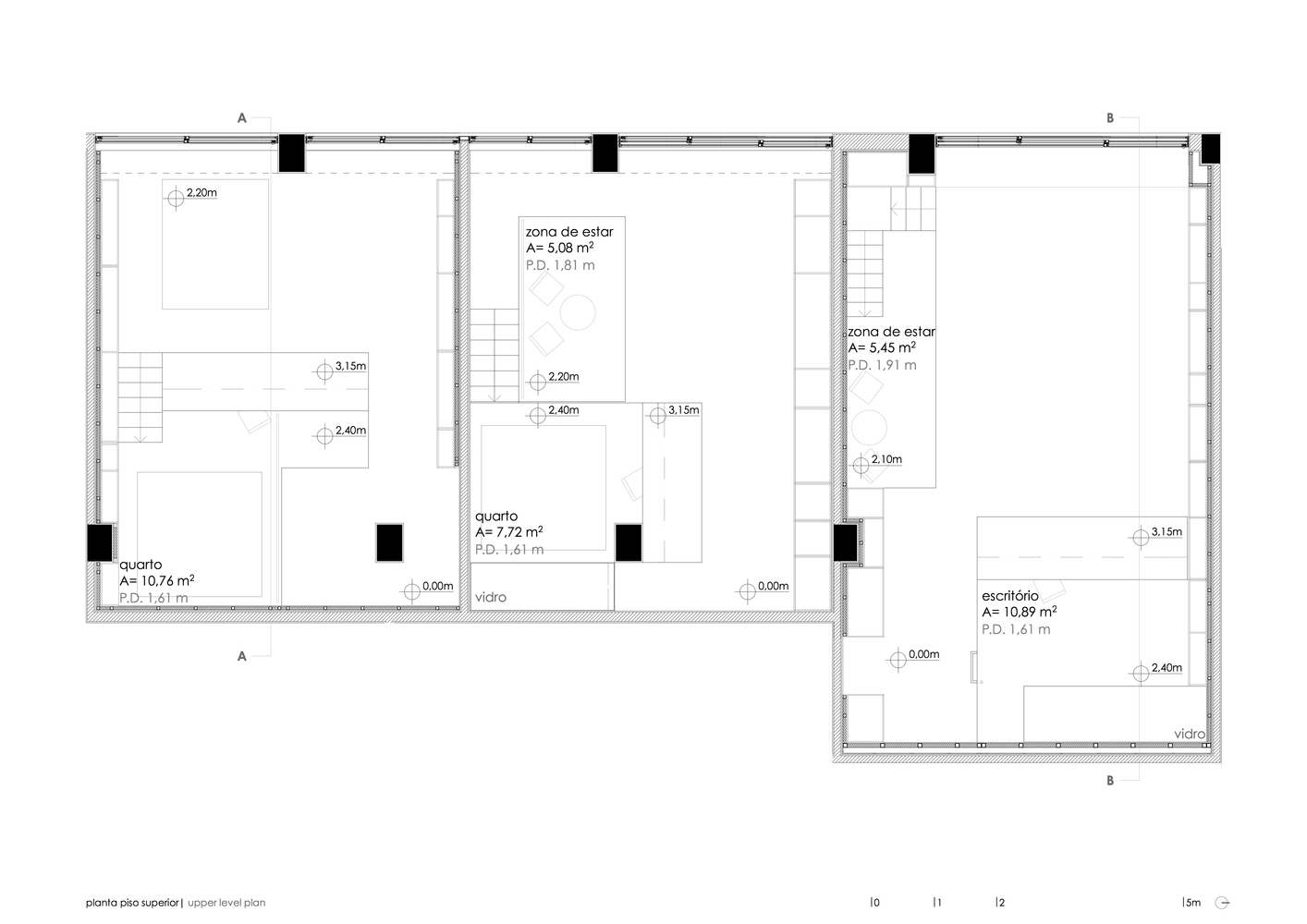
其思想是解决居住问题,创造独立的木结构,同时解决空间组织和分配所有必要的功能内容的房子。
The idea is to solve the problem of inhabiting with the creation of independent wood structures that simultaneously solve the spatial organization and distribute all the functional contents necessary to the house.
© WAATAA PHOTOGRAPHY!
WAATAA摄影!
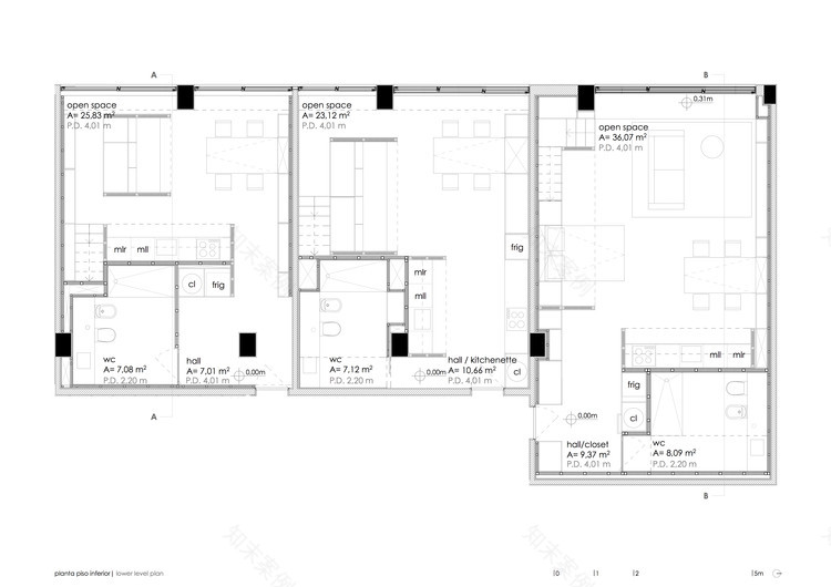
预先存在的空间墙壁被橱柜覆盖,使其成为房屋的物理极限,并具有提供存储和确保声学和热舒适性的附加功能。然后,对现有的卫生设施进行重组和重新设计,使其有可能被分配给下级和上层。最后,两个彩色模块被放置在里面。一个黄色的基础设施容器烹饪行为,一个蓝色的容器更多地与休息的行为有关。从本质上讲,正是这些容器组织了各种功能,并确定了房子的空间。可以说,在一个空心且刚开始的实体中,通过引入使空间功能重叠和相互交织的模块,可以创建一个场景。
Pre-existing space walls are covered with cabinets making it the physical limits of the house, with the additional function of providing storage and ensuring acoustic and thermal comfort. Then, there is a reorganization and reformulation of the existing sanitary facilities, making possible its appropriation of the lower and upper levels. Finally, two colored modules are placed inside. A yellow infrastructures container of the cooking act, and a blue one more related to the act of resting. It is essentially these containers that organize the functions and define the space of the house. It can be said that in a hollow and incipient solid, a scenario is created through the introduction of modules that make the overlapping and intertwining of spatial functions.
Ground Floor Plan
© WAATAA PHOTOGRAPHY!
WAATAA摄影!
正是与这些模块,居民将互动和体验他的生存空间的避难所。他将打开和关闭,上上下下,改变他的日常经验。
It is with these modules that the inhabitant will interact and experience his existential space of refuge. He will open and close, get up and down, transforming his daily experience.
© WAATAA PHOTOGRAPHY!
WAATAA摄影!
客服
消息
收藏
下载
最近



























